Bénéficiez des services de nos partenaires locaux soigneusement sélectionnés
pour vous accompagner dans votre parcours d'achat immobilier

Voir tous les partenaires locaux

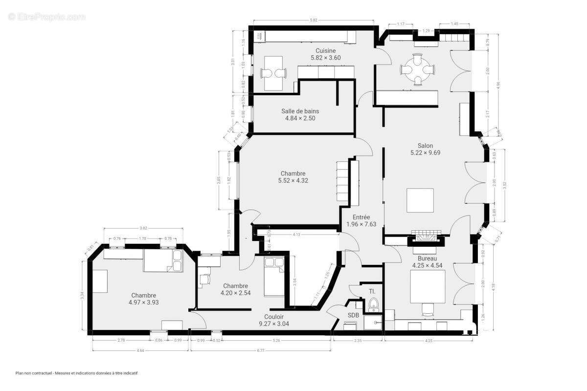
Appartement 6 pièces 3/4 chambres traversant de 166m² - Boulevard Saint-Michel, Paris

— Paris-6e 75006 —
2 450 000 €
166 m²
6 pièces
parkingascenseur

Nos partenaires locaux
Hosman vous propose cet appartement familial de 166 m² à rafraichir, idéalement situé Boulevard Saint-Michel, à proximité immédiate du Jardin du Luxembourg.

Cet appartement est le fruit de la réunification de deux lots (double accès indépendant avec ascenseur dans l'escalier de service). Au sein d'un immeuble avec ascenseur des années 1900 trés bien entretenu, il se distingue par ses volumes et son agencement.
Exposé Est/Ouest, il bénéficie d'une belle luminosité. Le double séjour sur rue offre un espace de réception confortable. L'appartement comprend également une belle galerie d'entrée, quatre chambres (Trois sur cour) et une cuisine séparée.

L'ensemble est équipé de double vitrage, avec chauffage et eau chaude collectifs.

Une cave ainsi que deux places de parking sont disponibles en sus du prix.

La copropriété dispose d'un ascenseur, d'un gardien, d'une cour et d'un local vélos/poussettes. Aucun travaux n'est à prévoir. Elle est également raccordée à la fibre.

Charges : 2 250 € / Trimestre

Hosman s'efforce de réinventer l'agence immobilière en offrant un service innovant et transparent aux acheteurs et aux vendeurs. Nos frais d'agence sont de 62500 euros au pourcentage à la charge du vendeur.

Si vous êtes un professionnel de l'immobilier (agent, mandataire ou chasseur immobilier), sachez que toutes les annonces Hosman sont ouvertes à la collaboration. N'hésitez pas à nous contacter pour en discuter.
Voir plus

Référence: 68b39a
Bien en copropriété.
DPE
A
B
C
D
E
F
G
GES
A
B
C
D
E
F
G
Appartement à PARIS-6E
Appartement à PARIS-6E
Appartement à PARIS-6E
Appartement à PARIS-6E
Appartement à PARIS-6E
Appartement à PARIS-6E
Appartement à PARIS-6E
Appartement à PARIS-6E
Appartement à PARIS-6E
Appartement à PARIS-6E
Appartement à PARIS-6E
Appartement à PARIS-6E
Appartement à PARIS-6E
Appartement à PARIS-6E
Appartement à PARIS-6E
Appartement à PARIS-6E
Géorisques

Les informations sur les risques auxquels ce bien est exposé sont disponibles sur le site Géorisques : www.georisques.gouv.fr

Ce site est protégé par hCaptcha Politique de confidentialité et Conditions d’utilisation s’appliquent.

En poursuivant votre navigation sans modifier vos paramètres, vous acceptez l'utilisation de cookies susceptibles de réaliser des statistiques de visite. Cliquez ici pour plus d'informations