Bénéficiez des services de nos partenaires locaux soigneusement sélectionnés
pour vous accompagner dans votre parcours d'achat immobilier

Maison à rénover

— Thorigne-Fouillard 35235 —
260 000 €
94 m² / 393 m²
4 pièces
parkingbalcon/terrassejardin

Nos partenaires locaux
35235 – THORIGNÉ-FOUILLARD – QUARTIER du BOCAGE- 4 PIÈCES - 3 CHAMBRES - 94 M² - MAISON AVEC TERRASSE ET SOUS-SOL AMÉNAGEABLE - BEAU POTENTIEL - A RENOVER

effiCity, l'agence qui estime votre bien en ligne, vous propose cette charmante maison située dans le quartier prisé de Chateaubriand à Thorigné-Fouillard.

Agencement intérieur :

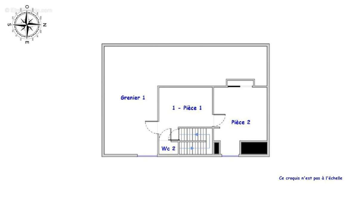
- Maison sur 3 niveaux offrant une surface habitable de 94 m²
- 3 chambres
- Séjour 25 m² lumineux avec cheminée insert
- Cuisine équipée à rénover
- Sous-sol aménageable de 80 m² offrant de nombreuses possibilités d'aménagement
- Combles aménageables de 30 m² pour créer un espace supplémentaire selon vos besoins

Extérieurs et stationnement :

- Agréable terrasse de 25 m² avec barbecue en dur
- Exposition Ouest offrant une luminosité naturelle
- Terrain de 393 m² offrant un bel espace extérieur sans aucun vis-à-vis
- Parking facile dans une impasse rès calme

Informations complémentaires :

- Construction de 1973
- Emplacement recherché et paisible, proche place du Bocage
- Proximité des commerces, écoles et transports en commun
- Idéal pour une famille en quête de confort et de tranquillité

Cette maison pleine de charme et au fort potentiel saura vous séduire par ses beaux volumes et son environnement agréable. N'hésitez pas à nous contacter pour plus d'informations ou pour organiser une visite.
Les informations sur les risques auxquels ce bien est exposé sont disponibles sur le site Georisque : georisques. gouv. fr
Patrick Nouaux - EI - est Agent Commercial mandataire en immobilier, immatriculé au Registre Spécial des Agents Commerciaux du Tribunal de Commerce de Rennes sous le n°880862339.
Siège social du mandant : effiCity, 48 avenue de Villiers - 75017 PARIS - Société par Actions Simplifiée, société au capital de 132 373,05 euros, immatriculée au RCS Paris 497 617 746 et titulaire de la Carte professionnelle CPI 75[Coordonnées masquées]02 025 - CCI Paris IDF - Caisse de Garantie : GALIAN Assurances 89 rue de la Boétie 75008 Paris
Voir plus

Référence: 212604
Honoraires d'agence de 4% à la charge de l'acquéreur
Barème des honoraires
DPE
A
B
C
D
E
F
G
GES
A
B
C
D
E
F
G
Maison à THORIGNE-FOUILLARD
Maison à THORIGNE-FOUILLARD
Maison à THORIGNE-FOUILLARD
Maison à THORIGNE-FOUILLARD
Maison à THORIGNE-FOUILLARD
Maison à THORIGNE-FOUILLARD
Maison à THORIGNE-FOUILLARD
Maison à THORIGNE-FOUILLARD
Maison à THORIGNE-FOUILLARD
Maison à THORIGNE-FOUILLARD
Maison à THORIGNE-FOUILLARD
Géorisques

Les informations sur les risques auxquels ce bien est exposé sont disponibles sur le site Géorisques : www.georisques.gouv.fr

Ce site est protégé par hCaptcha Politique de confidentialité et Conditions d’utilisation s’appliquent.

En poursuivant votre navigation sans modifier vos paramètres, vous acceptez l'utilisation de cookies susceptibles de réaliser des statistiques de visite. Cliquez ici pour plus d'informations