Bénéficiez des services de nos partenaires locaux soigneusement sélectionnés
pour vous accompagner dans votre parcours d'achat immobilier

***GAINNEVILLE***maison non mitoyenne de 126m² avec vie de plain pied composée de 4 chambres, 2 salles de bains, jardin et garag

— Gainneville 76700 —
310 000 €
126 m² / 537 m²
6 pièces
parkingbalcon/terrassejardin

Nos partenaires locaux
***GAINNEVILLE***maison non mitoyenne de 126m² avec vie de plain pied composée de 4 chambres, 2 salles de bains, jardin et garage

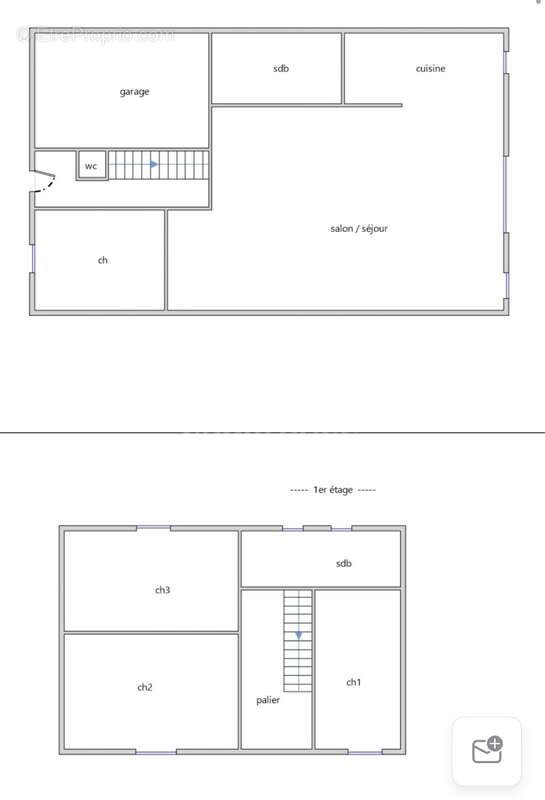
Découvrez cette perle rare à Gainneville, nichée dans un quartier pavillonnaire paisible et préservé. Cette maison non mitoyenne de 126 m², baignée de lumière et exposée plein sud, offre un cadre de vie idéal pour les familles ou les amateurs de tranquillité.

Au rez-de-chaussée, une vaste pièce de vie de 52 m², agrémentée de baies vitrées, vous invite à profiter d'un espace convivial et lumineux, comprenant un séjour, un salon et une cuisine aménagée équipée. Une première chambre de 12 m² environ, une salle de bain et un WC séparé complètent ce niveau.

À l'étage, un palier dessert trois autres chambres spacieuses ainsi qu'une deuxième salle de bain avec WC, offrant à chacun son espace de vie privilégié. Avec ses nombreux rangements, cette maison saura répondre à toutes vos attentes en termes de confort et de praticité.

À l'extérieur, un jardin de 500 m² agrémenté d'une terrasse de 30 m² et d'un cabanon vous permettra de profiter pleinement des beaux jours en toute intimité. De plus, un garage communicant peut accueillir une voiture, tandis qu'une cour fermée offre un espace de stationnement pour jusqu'à cinq véhicules.

Les équipements de qualité, tels que les fenêtres en double vitrage, les volets roulants électriques, le chauffage au gaz de ville de 2024, et la toiture en tuile révisée, garantissent un confort optimal au quotidien. Proche de toutes les commodités, incluant les transports en commun, les commerces, les écoles et les services de santé, cette maison représente un véritable havre de paix à découvrir sans plus tarder. Contactez-moi dès maintenant pour organiser une visite au [Coordonnées masquées] et/ou me suivre sur les réseaux et sur www.capifrance.fr/en/agents/sophie.amri
Les honoraires sont à la charge du vendeur.
Les informations sur les risques auxquels ce bien est exposé sont disponibles sur le site Géorisques : www. georisques. gouv. fr.

Réseau Immobilier CAPIFRANCE - Votre agent commercial (RSAC N°498 787 571 - Greffe de LE HAVRE) Sophie AMRI Entrepreneur Individuel [Coordonnées masquées] - Réf.950159
Voir plus

Référence: 340938889522
Honoraires à la charge du vendeur.
DPE
A
B
C
D
E
F
G
GES
A
B
C
D
E
F
G
Maison à GAINNEVILLE
Maison à GAINNEVILLE
Maison à GAINNEVILLE
Maison à GAINNEVILLE
Maison à GAINNEVILLE
Maison à GAINNEVILLE
Maison à GAINNEVILLE
Maison à GAINNEVILLE
Maison à GAINNEVILLE
Maison à GAINNEVILLE
Maison à GAINNEVILLE
Maison à GAINNEVILLE
Maison à GAINNEVILLE
Maison à GAINNEVILLE
Maison à GAINNEVILLE
Maison à GAINNEVILLE
Géorisques

Les informations sur les risques auxquels ce bien est exposé sont disponibles sur le site Géorisques : www.georisques.gouv.fr

Ce site est protégé par hCaptcha Politique de confidentialité et Conditions d’utilisation s’appliquent.

En poursuivant votre navigation sans modifier vos paramètres, vous acceptez l'utilisation de cookies susceptibles de réaliser des statistiques de visite. Cliquez ici pour plus d'informations