Appartement F2 - Balcon SUD + Parking

— Saint-Brice-Sous-Foret 95350 —
185 000 €
49 m²
2 pièces
parkingbalcon/terrasse

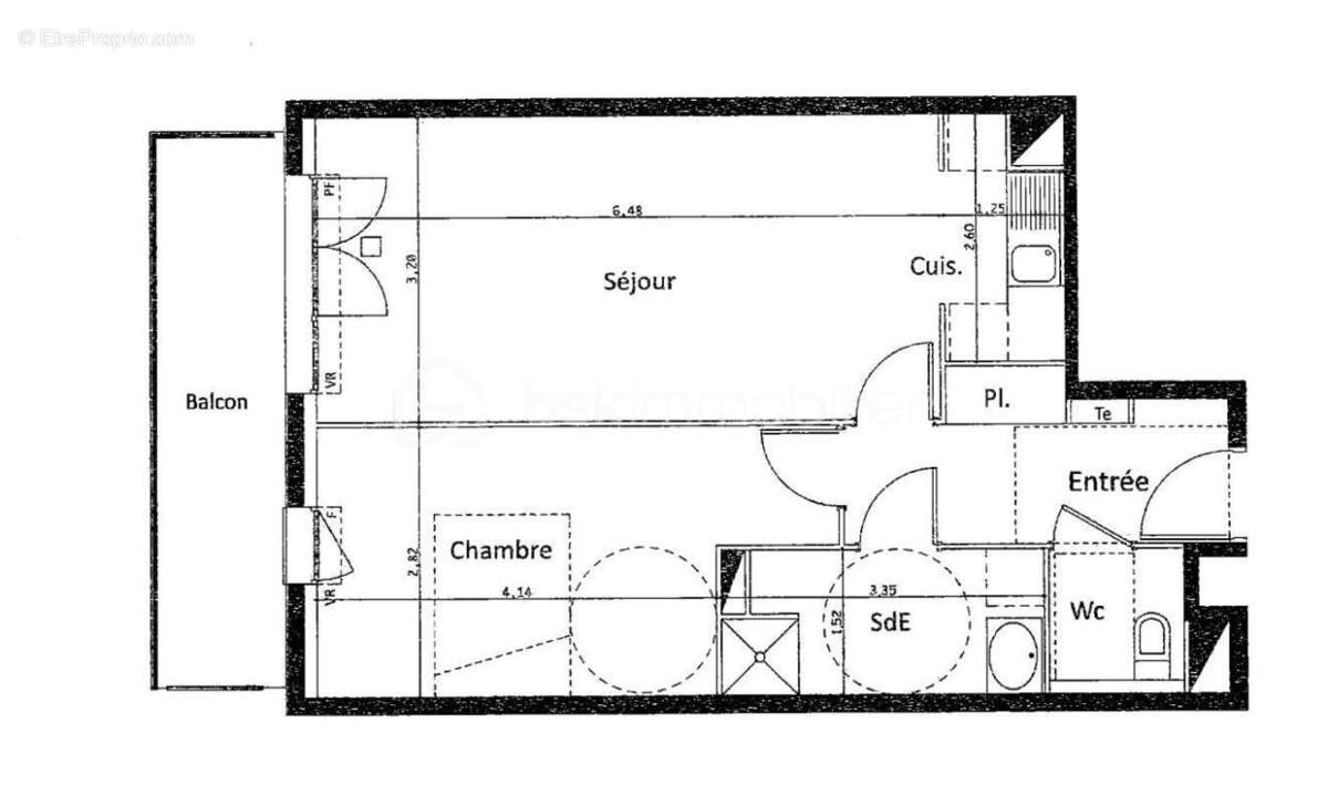
Proche du centre-ville situé dans la Résidence LES JARDINS D'OPALE, venez découvrir cet appartement de 2014. Il est composé d'une entrée avec placard, une salle d'eau, un WC indépendant, une belle chambre de 13m² environ, un séjour avec cuisine de 23m² environ donnant sur un balcon de près de 9m² exposé SUD.
Une place de parking en sous-sol vient compléter le bien.

Sa localisation idéale vous permet d'accéder à la gare de Sarcelles- Saint Brice en 7 minutes à pied.

Cette annonce référence 329416 vous est présentée par votre agent commercial BSK Immobilier ROSAYA CAZAU (EI) immatriculé au RSAC de NANTEUIL-LES-MEAUX (77100) sous le numéro 88392779000013.

Prix du bien : 185 000,00 €
Les honoraires d'agence sont à la charge du vendeur.

A propos de la copropriété :
Pas de procédure en cours.
Nombre de lots : 2
Charges prévisionnelles annuelles : 2 240,00 €

A propos des performances énergétiques :
Date de réalisation du diagnostic énergétique : 04/02/2026
Score DPE : 88 kWhEP/m²/an
Score GES : 17 kgepCO2/m²/an
Montant estimé des dépenses annuelles d'énergie pour un usage standard : entre 350.00 € et 530.00 € par an. Prix moyens des énergies indexés sur l'année 2023 (abonnements compris).

Les informations sur les risques auxquels ce bien est exposé sont disponibles sur le site Géorisques : www.georisques.gouv.fr
Voir plus

Référence: 329416
Bien en copropriété. Nombre de lots : 2. Charges de copropriété : 186 €.
Honoraires à la charge du vendeur.
DPE
A
B
C
D
E
F
G
GES
A
B
C
D
E
F
G
Appartement à SAINT-BRICE-SOUS-FORET
Appartement à SAINT-BRICE-SOUS-FORET
Appartement à SAINT-BRICE-SOUS-FORET
Appartement à SAINT-BRICE-SOUS-FORET
Appartement à SAINT-BRICE-SOUS-FORET
Appartement à SAINT-BRICE-SOUS-FORET
Appartement à SAINT-BRICE-SOUS-FORET
Appartement à SAINT-BRICE-SOUS-FORET
Appartement à SAINT-BRICE-SOUS-FORET
Appartement à SAINT-BRICE-SOUS-FORET
Appartement à SAINT-BRICE-SOUS-FORET
Appartement à SAINT-BRICE-SOUS-FORET
Appartement à SAINT-BRICE-SOUS-FORET
Appartement à SAINT-BRICE-SOUS-FORET
Appartement à SAINT-BRICE-SOUS-FORET
Appartement à SAINT-BRICE-SOUS-FORET
Appartement à SAINT-BRICE-SOUS-FORET
Géorisques

Les informations sur les risques auxquels ce bien est exposé sont disponibles sur le site Géorisques : www.georisques.gouv.fr

Ce site est protégé par hCaptcha Politique de confidentialité et Conditions d’utilisation s’appliquent.

En poursuivant votre navigation sans modifier vos paramètres, vous acceptez l'utilisation de cookies susceptibles de réaliser des statistiques de visite. Cliquez ici pour plus d'informations