Appartement t4 - 78 m² puteaux - éco-quartier des bergères - modulable + terrasses sud

— Puteaux 92800 —
610 000 €
78 m²
4 pièces
balcon/terrasseascenseur

Découvrez cet appartement d'exception de 78 m² au cœur de l'éco-quartier des Bergères, à 7 minutes à pied de La Défense.
Résidence récente de 2021 offrant un excellent rapport qualité-prix dans un cadre de vie privilégié avec vue sur un parc arboré et un point d'eau.

Situé au 2ème étage d'un immeuble de 9 niveaux, cet appartement lumineux propose une distribution intelligente et une configuration modulable unique.

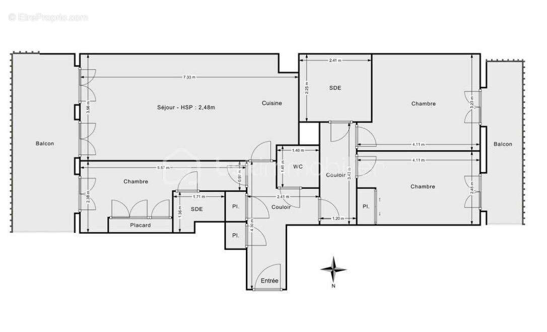
Distribution intérieure :

L'entrée avec placard encastré dessert un spacieux séjour de 26 m² ouvert sur une cuisine entièrement équipée (laissée lors de la vente).
Cet espace de vie baigné de lumière donne accès à une magnifique terrasse de 11 m² exposée sud avec vue sur le jardin intérieur.
Attenant au séjour se trouve une suite parentale dotée d'une salle d'eau.

Cette disposition offre une opportunité d'aménagement remarquable : la possibilité de supprimer la cloison entre le séjour et la suite parentale pour créer un exceptionnel double séjour de 38 m², transformant ainsi l'appartement en grand T3 avec volumes généreux.

De l'autre côté de l'appartement, l'espace nuit se compose de deux chambres indépendantes desservies par une seconde salle d'eau. Ces deux chambres bénéficient d'un balcon traversant de 6 m² les reliant.

Espaces extérieurs et annexes :

Deux espaces extérieurs privatifs agrémentent ce bien : la terrasse principale de 11 m² accessible depuis le séjour, et le balcon de 6 m² côté chambres.

Le bien est complété par une place de parking équipée d'une borne de recharge électrique ainsi qu'une cave, proposés tous deux en supplément du prix.

Environnement et commodités :

L'éco-quartier des Bergères offre un cadre de vie familial exceptionnel. Le parc paysager, le marché des Bergères, les commerces de proximité, une grande surface et une salle de sport répondent à tous les besoins du quotidien. Les écoles maternelle et primaire sont accessibles à 2 minutes à pied. La gare du T2 de Puteaux se trouve à quelques minutes également, facilitant vos déplacements. La proximité immédiate de La Défense (7 minutes à pied) garantit un excellent potentiel locatif.

Caractéristiques :

- 78 m² - T4 modulable en grand T3 (77,71 m2 loi carrez)
- 3 chambres (dont suite parentale) + 2 salles d'eau
- Terrasse 11 m² + balcon 6 m²
- Vue parc et point d'eau
- Cuisine équipée laissée
- Parking + borne électrique (en sus)
- Cave (en sus)
- Résidence Novembre 2021 - Charges 200 €/mois
- Espaces verts communaux

Prix : 610 000€ FAI

Rare : appartement récent, modulable, excellent rapport qualité-prix, proximité immédiate La Défense.
Réactivité garantie pour répondre à vos demandes.

Cette annonce référence 329422 vous est présentée par votre agent commercial BSK Immobilier NASSIMA BOUAZIZ (EI) immatriculé au RSAC de NANTERRE (92000) sous le numéro 99389415300010.

Prix du bien : 610 000,00 €
Les honoraires d'agence sont à la charge du vendeur.

Les informations sur les risques auxquels ce bien est exposé sont disponibles sur le site Géorisques : www.georisques.gouv.fr
Voir plus

Référence: 329422
Honoraires à la charge du vendeur.
Appartement à PUTEAUX
Appartement à PUTEAUX
Appartement à PUTEAUX
Appartement à PUTEAUX
Appartement à PUTEAUX
Appartement à PUTEAUX
Appartement à PUTEAUX
Appartement à PUTEAUX
Appartement à PUTEAUX
Appartement à PUTEAUX
Appartement à PUTEAUX
Appartement à PUTEAUX
Appartement à PUTEAUX
Appartement à PUTEAUX
Appartement à PUTEAUX
Appartement à PUTEAUX
Appartement à PUTEAUX
Appartement à PUTEAUX
Appartement à PUTEAUX
Appartement à PUTEAUX
Géorisques

Les informations sur les risques auxquels ce bien est exposé sont disponibles sur le site Géorisques : www.georisques.gouv.fr

Ce site est protégé par hCaptcha Politique de confidentialité et Conditions d’utilisation s’appliquent.

En poursuivant votre navigation sans modifier vos paramètres, vous acceptez l'utilisation de cookies susceptibles de réaliser des statistiques de visite. Cliquez ici pour plus d'informations