Bénéficiez des services de nos partenaires locaux soigneusement sélectionnés
pour vous accompagner dans votre parcours d'achat immobilier

Paris 18ème Proche Batignolles 3 pièces 2 chambres.

— Paris-17e 75017 —
665 000 €
62 m²
3 pièces

Nos partenaires locaux
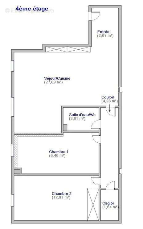
Le Groupe Saint Ferdinand Immobilier vous propose au 4ème étage d'un bel immeuble en pierre de taille, un magnifique appartement en excellent état de 3 pièces composé de : entrée, grand séjour avec cuisine ouverte équipée, 2 chambres, salle d'eau-wc, buanderie et cave. Nombreux rangements. Plan optimisé, sans perte d'espace. Calme et très lumineux. Idéalement situé, proche des transports et des commerces. Charges annuelles : 2.040 €. Estimation des couts annuels d'énergie entre : 1.020 € et 1.410 €. Commission incluse de 3.91 % à la charge de l'acquéreur. Aucune procédure dans la copropriété. Nombre de lots : 14. Les informations sur les risques auxquels ce bien est exposé sont disponibles sur le site Géorisques https://www.georisques.gouv.fr
Voir plus

Référence: 86820177
Barème des honoraires
DPE
A
B
C
D
E
F
G
GES
A
B
C
D
E
F
G
Appartement à PARIS-17E
Appartement à PARIS-17E
Appartement à PARIS-17E
Appartement à PARIS-17E
Appartement à PARIS-17E
Appartement à PARIS-17E
Appartement à PARIS-17E
Appartement à PARIS-17E
Appartement à PARIS-17E
Géorisques

Les informations sur les risques auxquels ce bien est exposé sont disponibles sur le site Géorisques : www.georisques.gouv.fr

Ce site est protégé par hCaptcha Politique de confidentialité et Conditions d’utilisation s’appliquent.

En poursuivant votre navigation sans modifier vos paramètres, vous acceptez l'utilisation de cookies susceptibles de réaliser des statistiques de visite. Cliquez ici pour plus d'informations