Bénéficiez des services de nos partenaires locaux soigneusement sélectionnés
pour vous accompagner dans votre parcours d'achat immobilier

Clos d'Orléans / 7min du RER A Fontenay. Charmante maison de 162m2 au sol (115m2 Carrez) en excellent état.

— Fontenay-Sous-Bois 94120 —
799 000 €
115 m²
5 pièces
parkingbalcon/terrassejardin

Nos partenaires locaux
Exclusivité. Clos d’Orléans – À 7 min du RER A Fontenay-sous-Bois

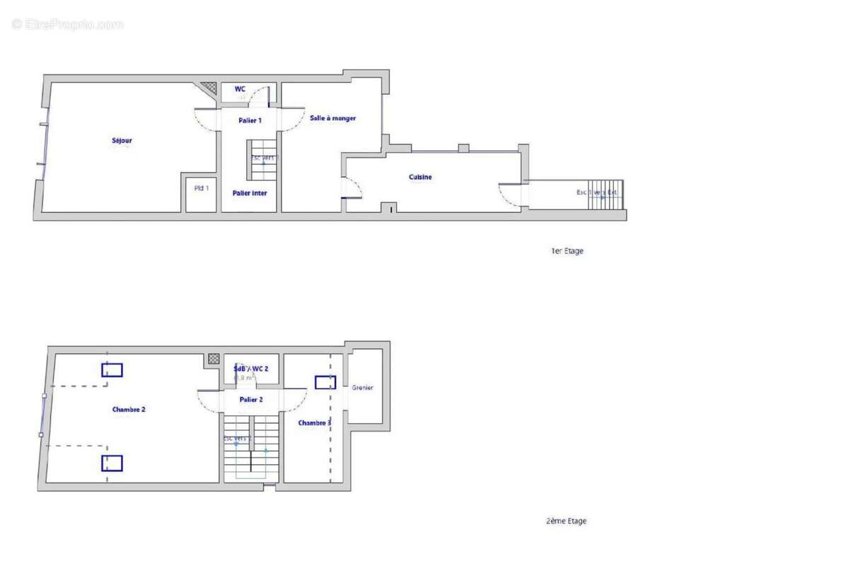
Dans le quartier recherché du Clos d’Orléans, à seulement 7 minutes du RER A et à proximité immédiate des commerces, des écoles et du bois, découvrez cette charmante maison familiale traversante de 162 m² au sol (115 m² Carrez/habitable), en excellent état.

Lumineuse et agréable à vivre, elle offre un cadre idéal pour une vie de famille.
Elle se compose d’un séjour, d’une cuisine, d'une salle à manger, de trois chambres, d’un bureau (parfait pour le télétravail ou pour une 4ème chambre), d’une salle d’eau avec WC et buanderie, d’une salle de bains avec WC, d’un WC séparé, avec un grand nombre de rangements.

Un grand sous-sol vient compléter ce bien, offrant de nombreuses possibilités.

À l’extérieur, vous profiterez d’un jardin plat avec espace potager, parfait pour les moments en famille ou entre amis.

Vous serez séduits par la belle hauteur sous plafond, le charme de l’ancien et la vue dégagée, qui apportent à cette maison une atmosphère chaleureuse et apaisante.

Maison très bien entretenue, avec une chaudière à condensation récente (2023).

Croquis à la fin des photos.

Prix ​​net vendeur : 768.300€
Honoraires à la charge de l'acquéreur : 30.700 € TTC soit 4% TTC.
Prix ​​honoraires d'agence inclus : 799.000 €
Contact : + 33 6 47 42 42 83
Voir plus

Référence: 86905760
Barème des honoraires
DPE
A
B
C
D
E
F
G
GES
A
B
C
D
E
F
G
Maison à FONTENAY-SOUS-BOIS
Maison à FONTENAY-SOUS-BOIS
Maison à FONTENAY-SOUS-BOIS
Maison à FONTENAY-SOUS-BOIS
Maison à FONTENAY-SOUS-BOIS
Maison à FONTENAY-SOUS-BOIS
Maison à FONTENAY-SOUS-BOIS
Maison à FONTENAY-SOUS-BOIS
Maison à FONTENAY-SOUS-BOIS
Maison à FONTENAY-SOUS-BOIS
Maison à FONTENAY-SOUS-BOIS
Maison à FONTENAY-SOUS-BOIS
Maison à FONTENAY-SOUS-BOIS
Maison à FONTENAY-SOUS-BOIS
Maison à FONTENAY-SOUS-BOIS
Géorisques

Les informations sur les risques auxquels ce bien est exposé sont disponibles sur le site Géorisques : www.georisques.gouv.fr

Ce site est protégé par hCaptcha Politique de confidentialité et Conditions d’utilisation s’appliquent.

En poursuivant votre navigation sans modifier vos paramètres, vous acceptez l'utilisation de cookies susceptibles de réaliser des statistiques de visite. Cliquez ici pour plus d'informations