Bénéficiez des services de nos partenaires locaux soigneusement sélectionnés
pour vous accompagner dans votre parcours d'achat immobilier

Appartement 42 m² à Villiers-Sur-Marne

— Villiers-Sur-Marne 94350 —
189 000 €
42 m²
2 pièces
parkingascenseur

Nos partenaires locaux
EXCLUSIVITE Agence IMMO-E

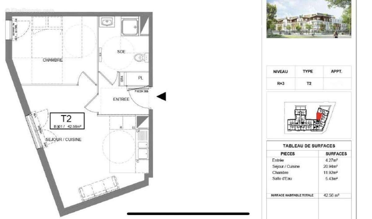
*Dans un secteur avec toutes commodités (transports / commerces/ accès A4 simple) nous vous proposons cet appartement de Type F2 dans une copropriété sous garantie décennale de 2018, au 3ème et dernier étage avec ascenseur.

*Agencement suivant :
-Surface du bien : 42.56 m²
-Entrée avec placard 4.27 m²
-Salle d'eau avec WC : 5.43 m²
-Salon / Séjour / Cuisine :20.94 m²
-Chambre : 11.92 m²

*Bon état général, espace de vie et chambre coté jardin au calme, copropriété sécurisée 'Vigik X2 + digicode', ascenseur, local vélos /poussettes, place de parking en sous-sol.

*Ideal 1er achat et investissement locatif : 'possibilité de rentabilité +5% avec Loyer de 900 €'.

*Charges mensuelles de 152 € environ comprenant chauffage central au gaz / eau chaude / entretien copropriété + ascenseur...

*Pour plus renseignements contactez nous.

*Vidéo immersive et rétrospective du bien en ligne

*Information d'affichage énergétique sur ce bien : classe ÉNERGIE 'C' indice 108 kWh/m².an et classe CLIMAT 'C' indice 21kg CO²/m².an.
*Estimation des couts annuels des dépenses énergétiques : 390€ / 570€an

*PRIX 189 000 € honoraires charge vendeur barème





Agent commercial immobilier.

. Les informations sur les risques auxquels ce bien est exposé sont disponibles sur le site Géorisques : www.georisques.gouv.fr
Voir plus

Référence: IME1812H
Honoraires à la charge du vendeur.
DPE
A
B
C
D
E
F
G
GES
A
B
C
D
E
F
G
Appartement à VILLIERS-SUR-MARNE
Appartement à VILLIERS-SUR-MARNE
Appartement à VILLIERS-SUR-MARNE
Appartement à VILLIERS-SUR-MARNE
Appartement à VILLIERS-SUR-MARNE
Géorisques

Les informations sur les risques auxquels ce bien est exposé sont disponibles sur le site Géorisques : www.georisques.gouv.fr

Ce site est protégé par hCaptcha Politique de confidentialité et Conditions d’utilisation s’appliquent.

En poursuivant votre navigation sans modifier vos paramètres, vous acceptez l'utilisation de cookies susceptibles de réaliser des statistiques de visite. Cliquez ici pour plus d'informations