Bénéficiez des services de nos partenaires locaux soigneusement sélectionnés
pour vous accompagner dans votre parcours d'achat immobilier

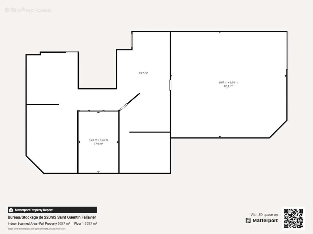
Commerce 220 m² à Saint-Quentin-Fallavier

— Saint-Quentin-Fallavier 38070 —
330 000 €
220 m² / 6 338 m²
1 pièce
parking

Nos partenaires locaux
Local d'Activité de 220 m² Saint-Quentin-Fallavier (38)

Emplacement stratégique : Situé dans le parc des Chênes, au sein du parc d'activités 'Pointe d'Abeau', ce local bénéficie d'une excellente accessibilité et d'un environnement économique dynamique, parfait pour le développement de votre entreprise.

Caractéristiques du bien :
? Surface totale : 220 m²
? Libre d'occupation – Aménagement selon vos besoins
? Environnement attractif avec de nombreuses entreprises et services à proximité
? Facilité d'accès aux axes autoroutiers et à Lyon

Les atouts de ce local :
? Emplacement stratégique en Isère, proche des infrastructures majeures
? Surface fonctionnelle et adaptable à différentes activités
? Opportunité idéale pour une société cherchant à s'implanter ou à s'agrandir

Besoin d'un espace pour votre activité ? Contactez-moi dès maintenant pour organiser une visite et découvrir tout le potentiel de ce local !

Les informations sur les risques auxquels ce bien est exposé sont disponibles sur le site Géorisques : www.georisques.gouv.fr
Prix de vente honoraires d'agence inclus : 330 000 ¤ HT + 66 000 ¤ TVA, soit 396 000 ¤ TTC
Prix de vente hors honoraires d'agence : 316 800 ¤ HT + 63 360 ¤ TVA, soit 380 160 ¤ TTC
Honoraires d'agence : 13 200 ¤ HT + 2 640 ¤ TVA, soit 15 840 ¤ TTC (4.17 % TTC du prix de vente hors honoraires d'agence)
Honoraires charge acquéreur

Contactez votre conseiller SAFTI : Damien VALAIRE, Tél. : [Coordonnées masquées], E-mail : [Coordonnées masquées] - EI - Agent commercial immatriculé au RSAC de VIENNE sous le numéro 850 951 609.Informations LOI ALUR : Honoraires : 4.17 % TTC charge acquéreur. Prix hors honoraires : 316 800 ¤. (gedeon_26118_33062961)
Voir plus

Référence: 676110
Honoraires d'agence de 4.17% à la charge de l'acquéreur
Barème des honoraires
Photo 1 - Commerce à SAINT-QUENTIN-FALLAVIER
Photo 1
Photo 2 - Commerce à SAINT-QUENTIN-FALLAVIER
Photo 2
Photo 3 - Commerce à SAINT-QUENTIN-FALLAVIER
Photo 3
Photo 4 - Commerce à SAINT-QUENTIN-FALLAVIER
Photo 4
Photo 5 - Commerce à SAINT-QUENTIN-FALLAVIER
Photo 5
Photo 6 - Commerce à SAINT-QUENTIN-FALLAVIER
Photo 6
Photo 7 - Commerce à SAINT-QUENTIN-FALLAVIER
Photo 7
Photo 8 - Commerce à SAINT-QUENTIN-FALLAVIER
Photo 8
Photo 9 - Commerce à SAINT-QUENTIN-FALLAVIER
Photo 9
Géorisques

Les informations sur les risques auxquels ce bien est exposé sont disponibles sur le site Géorisques : www.georisques.gouv.fr

Ce site est protégé par hCaptcha Politique de confidentialité et Conditions d’utilisation s’appliquent.

En poursuivant votre navigation sans modifier vos paramètres, vous acceptez l'utilisation de cookies susceptibles de réaliser des statistiques de visite. Cliquez ici pour plus d'informations