Bénéficiez des services de nos partenaires locaux soigneusement sélectionnés
pour vous accompagner dans votre parcours d'achat immobilier

Appartement Plaisir 3 pièces 71 m2 + 1 garage en sous-sol

— Plaisir 78370 —
231 000 €
71 m²
3 pièces
parkingbalcon/terrasse

Nos partenaires locaux
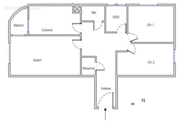
Situé dans une petite copropriété des années 1992, à deux pas des écoles, transports et commodités, venez découvrir cet appartement 3 pièces de 71 m² au 3ème et dernier étage sans ascenseur et qui comprend : une entrée, un débarras, un séjour lumineux de presque 21 m² exposé SUD-OUEST avec accès à un balcon, une cuisine aménagée et équipée HYGIENA avec accès au balcon (possibilité de casser le mur entre le séjour et la cuisine), 2 chambres de plus de 11 m² avec rangements, une salle d'eau refaite en 2025 et un WC séparé. Un garage en sous-sol vient compléter ce bien. 138 euros de charges par mois incluant l'eau froide, Parquet de l'appartement neuf, Porte blindée 2023, Chauffage individuel au gaz 2017, Fenêtres en doubles vitrages avec volets électriques 2018 Nombreux rangements, Réfection parties communes refaites en 2024, Réfection totale d'étanchéité toiture terrasse en 2019, Visite virtuelle à disposition et disponible ! (5.00 % honoraires TTC à la charge de l'acquéreur.) Copropriété de 20 lots - dont 15 lots habitation. Charges annuelles : 1658 euros.
Voir plus

Référence: 9120
Bien en copropriété. Nombre de lots : 20. Charges de copropriété : 1658 €.
Honoraires d'agence de 5% à la charge de l'acquéreur
Barème des honoraires
DPE
A
B
C
D
E
F
G
GES
A
B
C
D
E
F
G
Appartement à PLAISIR
Appartement à PLAISIR
Appartement à PLAISIR
Appartement à PLAISIR
Appartement à PLAISIR
Appartement à PLAISIR
Appartement à PLAISIR
Appartement à PLAISIR
Appartement à PLAISIR
Appartement à PLAISIR
Appartement à PLAISIR
Appartement à PLAISIR
Appartement à PLAISIR
Appartement à PLAISIR
Appartement à PLAISIR
Appartement à PLAISIR
Appartement à PLAISIR
Appartement à PLAISIR
Géorisques

Les informations sur les risques auxquels ce bien est exposé sont disponibles sur le site Géorisques : www.georisques.gouv.fr

Ce site est protégé par hCaptcha Politique de confidentialité et Conditions d’utilisation s’appliquent.

En poursuivant votre navigation sans modifier vos paramètres, vous acceptez l'utilisation de cookies susceptibles de réaliser des statistiques de visite. Cliquez ici pour plus d'informations