Bénéficiez des services de nos partenaires locaux soigneusement sélectionnés
pour vous accompagner dans votre parcours d'achat immobilier

Boulogne Centre - Marcel Sembat - Appartement 2 pièce(s) 52 m2

— Boulogne-Billancourt 92100 —
469 000 €
52 m²
2 pièces
ascenseur

Nos partenaires locaux
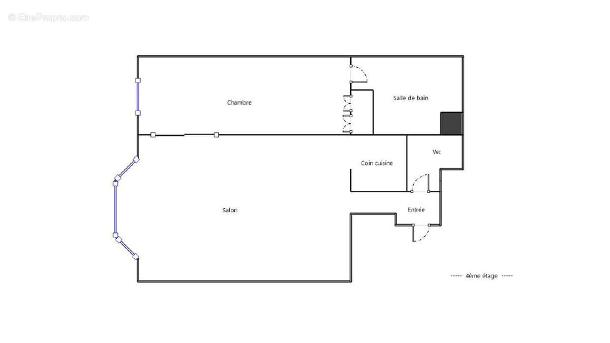
Boulogne Centre - Marcel Sembat Trés beau 2 pièces, sans perte de place, en étage élevé - Parfait état - Lumineux - à 2 pas du métro Marcel Sembat. Immeuble récent 1990 avec gardien, appartement 2 pièces de 52m, comprenant : une entrée, un séjour de 30 m² avec une cuisine équipée et aménagée, une chambre avec dressing, une grande salle de douche, et un WC séparé. Une cave complète ce bien. Aucun travaux à prévoir !! (3.08 % honoraires TTC à la charge de l'acquéreur.) Copropriété de 60 lots - dont 17 lots habitation. Charges annuelles : 1368 euros. Maxence Andrieu (EI) Agent Commercial - Numéro RSAC : 538844002 - Nanterre.
Voir plus

Référence: 1193
Bien en copropriété. Nombre de lots : 60. Charges de copropriété : 1368 €.
Honoraires d'agence de 3.08% à la charge de l'acquéreur
Barème des honoraires
DPE
A
B
C
D
E
F
G
GES
A
B
C
D
E
F
G
Appartement à BOULOGNE-BILLANCOURT
Appartement à BOULOGNE-BILLANCOURT
Appartement à BOULOGNE-BILLANCOURT
Géorisques

Les informations sur les risques auxquels ce bien est exposé sont disponibles sur le site Géorisques : www.georisques.gouv.fr

Ce site est protégé par hCaptcha Politique de confidentialité et Conditions d’utilisation s’appliquent.

En poursuivant votre navigation sans modifier vos paramètres, vous acceptez l'utilisation de cookies susceptibles de réaliser des statistiques de visite. Cliquez ici pour plus d'informations