Bénéficiez des services de nos partenaires locaux soigneusement sélectionnés
pour vous accompagner dans votre parcours d'achat immobilier

Commerce 200 m² à Besancon

— Besancon 25000 —
368 000 €
200 m²
8 pièces
parkingaccès handicapé

Nos partenaires locaux
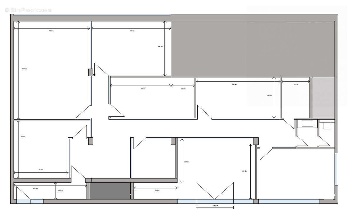
Eve VERNIER Immobilier eXp vous propose à la vente ce local professionnel de 200m2 de 8 bureaux rue de Vesoul à Besançon.
Implantez votre activité là où tout converge.
À deux pas de la Gare Viotte, sur la très stratégique rue de Vesoul à Besançon, ce local professionnel rénové de 200 m² coche les cases des dirigeants exigeants et des investisseurs avisés.
Derrière une façade facilement identifiable, venez découvrir 8 bureaux modulables, modernes et parfaitement agencés, dont un espace d'accueil/secrétariat et une grande salle adaptable : multi bureaux, salle de réunion ou salle de pause (avec sa cuisine murale).
Les cloisons vitrées amovibles permettent de redessiner les volumes au gré de votre croissance ou de celle de vos locataires. Ici, la configuration s'adapte à votre stratégie, pas l'inverse.
Côté technique : climatisation, PAC, câblage professionnel, etc.
Et aussi, un stationnement au pied et une belle façade avec double visibilité : un détail qui change tout pour vos collaborateurs et votre clientèle.
Concrètement :
• Emplacement premium, environnement tertiaire établi, accessibilité immédiate (gare, bus, axes routiers principaux et autoroute), proche de toutes les commodités et commerces et centre-ville
• Des locaux modernes, avec une devanture professionnelle cohérente avec votre ambition, et un stationnement aisé
• Un espace contemporain et modulable, entièrement rénové, avec une circulation fluide
• Un fort potentiel locatif dans un secteur en pleine dynamique
Un bien opérationnel sans travaux, idéal pour un cabinet , des professions libérales, bureaux d'études, formation, start-up, siège régional, coworking, salle multi activité, et même stockage.
Vous cherchez un chouette local pro et pratique, ou un levier stratégique pour votre développement ?
Échangeons sur votre projet et organisons une visite.

Honoraires à la charge du vendeur. Dans une copropriété de 15 lots. Quote-part moyenne du budget prévisionnel 1 800 €/an. Aucune procédure n'est en cours. Classe énergie C, Classe climat A. Les informations sur les risques auxquels ce bien est exposé sont disponibles sur le site Géorisques : georisques.gouv.fr.

Votre conseiller eXp Realty : Eve VERNIER
Agent commercial (Entreprise individuelle)
RSAC 450 162 615
RCP BESANCON
Voir plus

Référence: VP559-EXPFRANCE
Bien en copropriété. Nombre de lots : 15. Charges de copropriété : 1800 €.
Honoraires à la charge du vendeur.
Barème des honoraires
DPE
A
B
C
D
E
F
G
GES
A
B
C
D
E
F
G
Commerce à BESANCON
Commerce à BESANCON
Commerce à BESANCON
Commerce à BESANCON
Commerce à BESANCON
Commerce à BESANCON
Commerce à BESANCON
Commerce à BESANCON
Commerce à BESANCON
Géorisques

Les informations sur les risques auxquels ce bien est exposé sont disponibles sur le site Géorisques : www.georisques.gouv.fr

Ce site est protégé par hCaptcha Politique de confidentialité et Conditions d’utilisation s’appliquent.