Bénéficiez des services de nos partenaires locaux soigneusement sélectionnés
pour vous accompagner dans votre parcours d'achat immobilier

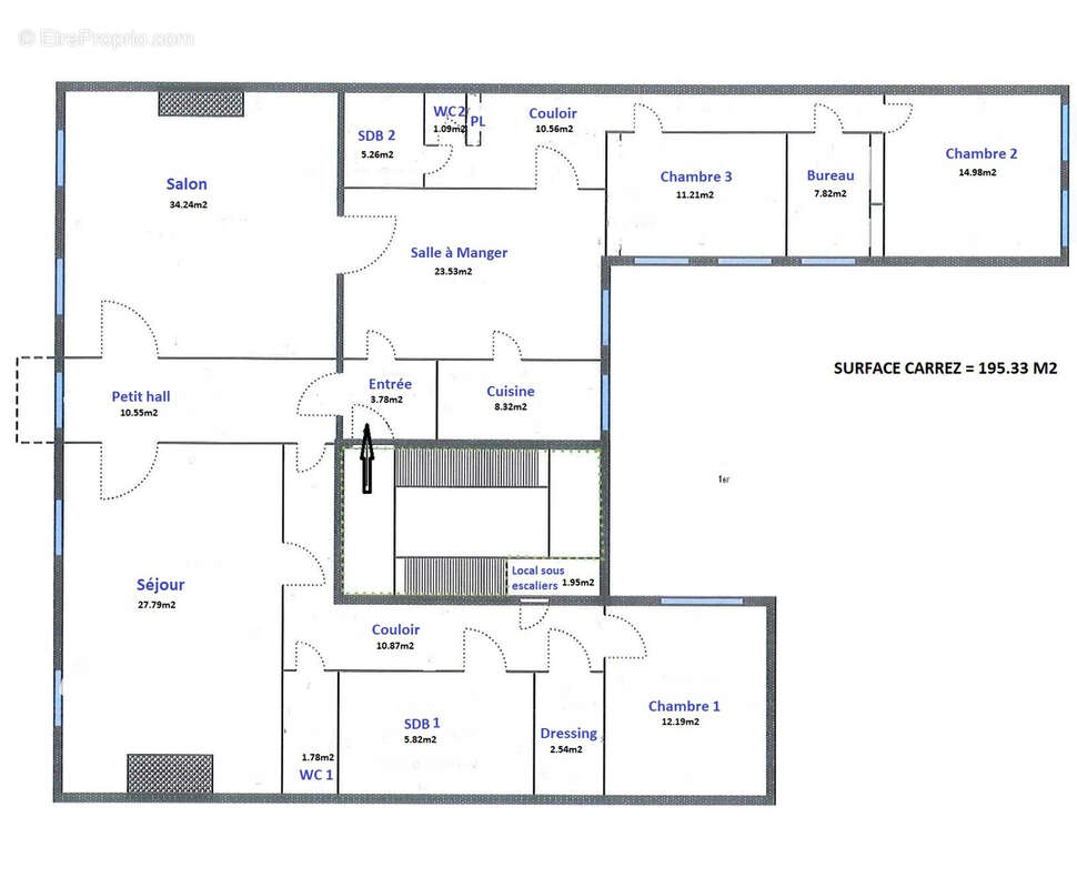
ARENES !!! Haussmannien - T7 - 195m2 - Possibilité garages.

— Nimes 30000 —
475 000 €
195 m²
7 pièces
balcon/terrasse

Nos partenaires locaux
Rare !!! A seulement quelques mètres des Arènes et du Musée de la Romanité, grand T7 de 195m2 situé au 1er étage d'un bel immeuble Haussmannien.
Ce bel appartement familial en U tournant autour d'un patio intèrieur est composé de: Deux grands salons, d'une salle à manger avec cuisine attenante, 4 chambres, 2 salles de bains, 2 WC, un dressing...
Possibilité de division en 2 lots, un T4 et un T2.
Le chauffage est central gaz, les menuiseries sont en double vitrage, diagnostics techniques C - C.
Les charges de copropriété annuelles sont de 2951 Euros incluant l'eau et l'entretien de la copropriété.
Taxe foncière: 2557 Euros.
Une grande cave est aussi vendu avec l'appartement, ainsi que cerises sur le gateau...Possibilité d'acquisition d'un ou deux garage dans la résidence 'Les jardins de l'Esplanade'', très proche de l'appartement.
Ne tardez pas à venir visiter ce spacieux appartement idalement situé au centre ville de NIMES, sur un excellent secteur, il dispose de nombreux atouts...
Voir plus

Référence: 2707
Bien en copropriété. Nombre de lots : 40. Charges de copropriété : 2951 €.
Honoraires d'agence de 5.56% à la charge de l'acquéreur
Barème des honoraires
DPE
A
B
C
D
E
F
G
GES
A
B
C
D
E
F
G
Appartement à NIMES
Appartement à NIMES
Appartement à NIMES
Appartement à NIMES
Appartement à NIMES
Appartement à NIMES
Appartement à NIMES
Appartement à NIMES
Appartement à NIMES
Appartement à NIMES
Appartement à NIMES
Appartement à NIMES
Géorisques

Les informations sur les risques auxquels ce bien est exposé sont disponibles sur le site Géorisques : www.georisques.gouv.fr

Ce site est protégé par hCaptcha Politique de confidentialité et Conditions d’utilisation s’appliquent.

En poursuivant votre navigation sans modifier vos paramètres, vous acceptez l'utilisation de cookies susceptibles de réaliser des statistiques de visite. Cliquez ici pour plus d'informations