Bénéficiez des services de nos partenaires locaux soigneusement sélectionnés
pour vous accompagner dans votre parcours d'achat immobilier

Dernier étage, Sud, grande terrasse, parkings

— Toulon 83000 —
315 000 €
65 m²
3 pièces
parkingbalcon/terrasse

Nos partenaires locaux
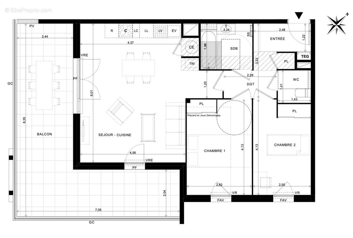
83000, TOULON, Pont du Suve - Bus et commerces à pied, accés direct autoroute. Argent Group Immo vend un appartement 3 pièces de 65 m2 avec terrasse plein Sud de 29 m2 et deux places de parkings en sous-sol. Dernier étage (ascenseur), entrée avec placard, pièce à vivre de 30 m2 avec cuisine ouverte, deux chambres avec placards, salle de bains et wc séparés. Prestations de qualité. Résidence moderne et sécurisée. Prix : 315000 euros (parkings inclus)

Référence: 116
DPE
A
B
C
D
E
F
G
GES
A
B
C
D
E
F
G
Appartement à TOULON
Appartement à TOULON
Appartement à TOULON
Appartement à TOULON
Appartement à TOULON
Appartement à TOULON
Géorisques

Les informations sur les risques auxquels ce bien est exposé sont disponibles sur le site Géorisques : www.georisques.gouv.fr

Ce site est protégé par hCaptcha Politique de confidentialité et Conditions d’utilisation s’appliquent.

En poursuivant votre navigation sans modifier vos paramètres, vous acceptez l'utilisation de cookies susceptibles de réaliser des statistiques de visite. Cliquez ici pour plus d'informations