Bénéficiez des services de nos partenaires locaux soigneusement sélectionnés
pour vous accompagner dans votre parcours d'achat immobilier

Charmant 3 pièces au cœur de Meudon Bellevue

— Meudon 92190 —
355 300 €
48 m²
3 pièces

Nos partenaires locaux
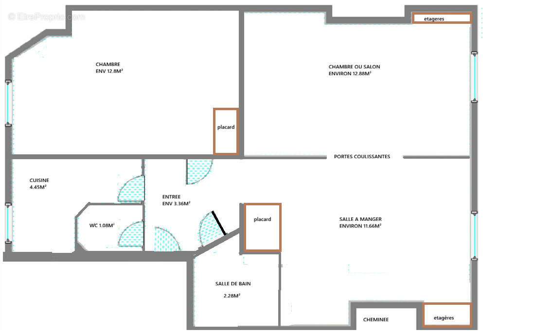
Idéalement situé en plein cœur de Meudon Bellevue, à proximité immédiate des commerces et des commodités, découvrez ce superbe appartement 3 pièces alliant charme de l’ancien et confort moderne.
Situé dans un bel immeuble en meulière, cet appartement traversant, lumineux et entièrement rénové, se compose d’un double séjour chaleureux (possibilité d’aménager une seconde chambre), d’une cuisine équipée moderne, d’une chambre confortable, d’une salle de bains ainsi que de WC séparés.
Vous serez séduit par le cachet authentique de ce bien : parquet ancien, moulures élégantes, cheminées et belles hauteurs sous plafond, offrant une ambiance cosy et raffinée.
Une cave de plus de 6 m2 sur dalle complète ce bien.
Voir plus

Référence: 5320
Honoraires à la charge du vendeur.
Barème des honoraires
DPE
A
B
C
D
E
F
G
GES
A
B
C
D
E
F
G
Appartement à MEUDON
Appartement à MEUDON
Appartement à MEUDON
Appartement à MEUDON
Géorisques

Les informations sur les risques auxquels ce bien est exposé sont disponibles sur le site Géorisques : www.georisques.gouv.fr

Ce site est protégé par hCaptcha Politique de confidentialité et Conditions d’utilisation s’appliquent.

En poursuivant votre navigation sans modifier vos paramètres, vous acceptez l'utilisation de cookies susceptibles de réaliser des statistiques de visite. Cliquez ici pour plus d'informations