Bénéficiez des services de nos partenaires locaux soigneusement sélectionnés
pour vous accompagner dans votre parcours d'achat immobilier

Charmante maison de 123m2 au sol 1 sur un terrain de 730 m2 a Pontault-Combault

— Pontault-Combault 77340 —
350 000 €
123 m² / 730 m²
4 pièces
parkingjardin

Nos partenaires locaux
Située dans le prestigieux et paisible quartier du vieux Pontault-Combault,
cette maison construite en 1961 repose sur un magnifique terrain arboré de 730 m2, un cadre rare et privilégié.
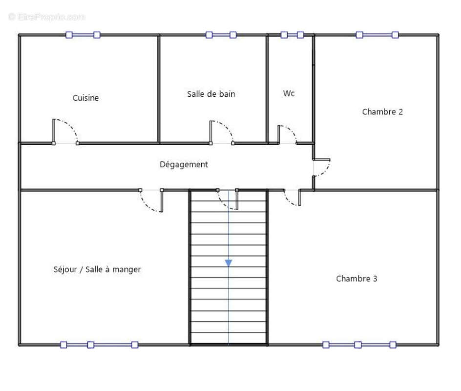
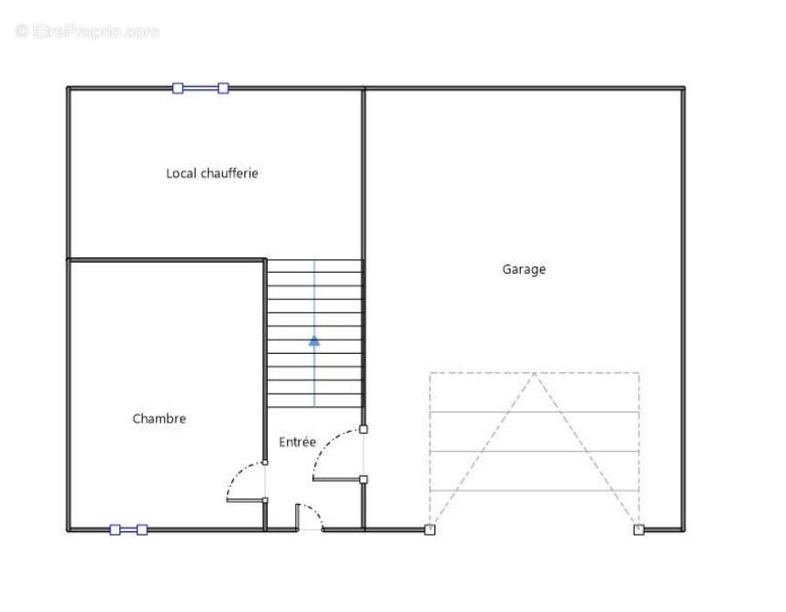
En parfait état d’entretien, cette maison offre 76 m2 (loi Carrez) habitables, avec une surface au sol de 123 m2, complétée par des combles aménageables vous gagner encore 64M2 au sol et 22M2 loie carrez en plus.
Vous trouverez trois chambres spacieuses, une salle de bains en parfait état, ainsi qu’une cuisine à moderniser.
La décoration, bien qu’inspirée des années 50-70, peut être transformée avec des travaux pour s’adapter à vos goûts contemporains.
De plus, la maison se trouve à moins de 5 minutes des hypermarchés et de toutes commodités, ainsi qu’à moins de 10 minutes des écoles primaires.
Un puits sur place permet le raccordement pour un arrosage automatique ou l’alimentation des sanitaires.
Le chauffage actuel est au gaz, mais une pompe à chaleur est envisageable, avec une isolation à refaire, bénéficiant d'aides de l'État.
Je reste à votre disposition pour un rendez-vous ou pour vous transmettre la vidéo.
Beaucoup de travaux sont à prévoir, mais c’est une opportunité rare avec une construction comme on n’en fait plus actuellement
Voir plus

Référence: 207
Honoraires à la charge du vendeur.
Barème des honoraires
DPE
A
B
C
D
E
F
G
GES
A
B
C
D
E
F
G
Maison à PONTAULT-COMBAULT
Maison à PONTAULT-COMBAULT
Maison à PONTAULT-COMBAULT
Maison à PONTAULT-COMBAULT
Maison à PONTAULT-COMBAULT
Maison à PONTAULT-COMBAULT
Maison à PONTAULT-COMBAULT
Maison à PONTAULT-COMBAULT
Maison à PONTAULT-COMBAULT
Maison à PONTAULT-COMBAULT
Maison à PONTAULT-COMBAULT
Maison à PONTAULT-COMBAULT
Maison à PONTAULT-COMBAULT
Maison à PONTAULT-COMBAULT
Maison à PONTAULT-COMBAULT
Maison à PONTAULT-COMBAULT
Maison à PONTAULT-COMBAULT
Maison à PONTAULT-COMBAULT
Maison à PONTAULT-COMBAULT
Maison à PONTAULT-COMBAULT
Maison à PONTAULT-COMBAULT
Maison à PONTAULT-COMBAULT
Maison à PONTAULT-COMBAULT
Géorisques

Les informations sur les risques auxquels ce bien est exposé sont disponibles sur le site Géorisques : www.georisques.gouv.fr

Ce site est protégé par hCaptcha Politique de confidentialité et Conditions d’utilisation s’appliquent.

En poursuivant votre navigation sans modifier vos paramètres, vous acceptez l'utilisation de cookies susceptibles de réaliser des statistiques de visite. Cliquez ici pour plus d'informations