Bénéficiez des services de nos partenaires locaux soigneusement sélectionnés
pour vous accompagner dans votre parcours d'achat immobilier

Appartement 3 pièces lumineux avec balcon, vue dégagée - cave et parking - Silly-Galliéni Boulogne-Billancourt

— Boulogne-Billancourt 92100 —
598 000 €
80 m²
3 pièces
parkingbalcon/terrasseascenseur

Nos partenaires locaux
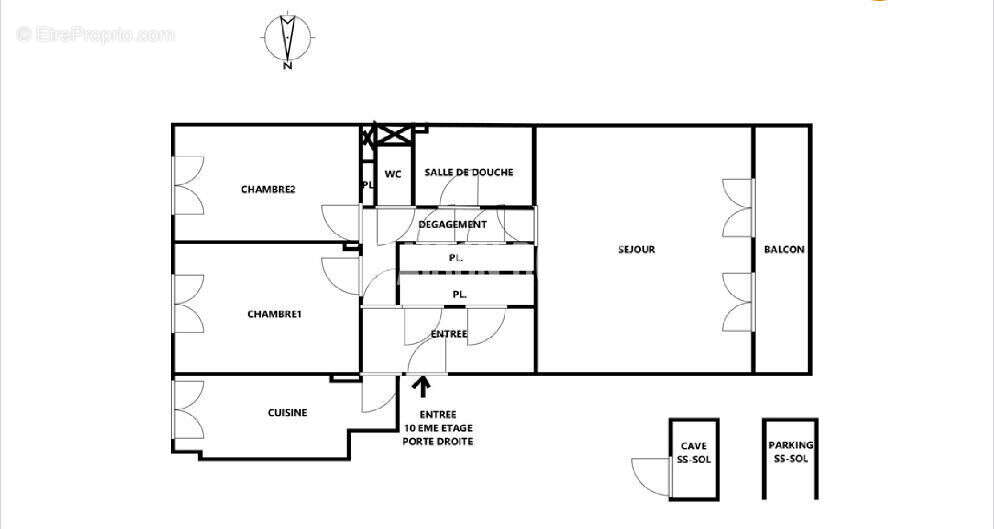
L'agence Maison Rouge de Boulogne-Billancourt vous propose à la vente ce grand 3 pièces situé dans le quartier recherché de Silly-Galliéni. Au sein d'une copropriété des années 60 bien entretenue par une gardienne, cet appartement offre un cadre de vie calme tout en restant à proximité immédiate des commerces, des établissements scolaires et des transports en commun, notamment le métro Pont de Sèvres ligne 9 et la future ligne 15. Situé au 10e étage avec ascenseur, cet appartement d'une surface de 80 m² (79.78m² Carrez) se compose d'un séjour de 30m², spacieux et baigné de lumière grâce à de grandes baies vitrées, ouvrant sur un balcon de 6.90 m² exposé sud-ouest et d'une cuisine séparée. La partie nuit se compose de deux chambres à la vue dégagée sur la Tour Eiffel, d'une salle d'eau et de WC séparés. L'agencement est optimisé par une entrée avec placards et un couloir également équipé de rangements. Une cave complète ce bien et possibilité d'une place de parking en sus du prix (25000 euros). Des travaux de rafraîchissement sont à prévoir, beau potentiel en perspective. Prix FAI : 598 000 euros dont 4.80 % honoraires TTC à la charge de l'acquéreur. Copropriété de 685 lots - dont 245 lots habitation. Charges annuelles : 2326.6 euros. Sabine HADDAD (EI) Agent Commercial - Numéro RSAC : - .
Voir plus

Bien en copropriété. Nombre de lots : 685. Charges de copropriété : 2326 €.
Honoraires d'agence de 4.8% à la charge de l'acquéreur
Barème des honoraires
DPE
A
B
C
D
E
F
G
GES
A
B
C
D
E
F
G
Appartement à BOULOGNE-BILLANCOURT
Appartement à BOULOGNE-BILLANCOURT
Appartement à BOULOGNE-BILLANCOURT
Appartement à BOULOGNE-BILLANCOURT
Appartement à BOULOGNE-BILLANCOURT
Appartement à BOULOGNE-BILLANCOURT
Appartement à BOULOGNE-BILLANCOURT
Appartement à BOULOGNE-BILLANCOURT
Appartement à BOULOGNE-BILLANCOURT
Appartement à BOULOGNE-BILLANCOURT
Appartement à BOULOGNE-BILLANCOURT
Appartement à BOULOGNE-BILLANCOURT
Géorisques

Les informations sur les risques auxquels ce bien est exposé sont disponibles sur le site Géorisques : www.georisques.gouv.fr

Ce site est protégé par hCaptcha Politique de confidentialité et Conditions d’utilisation s’appliquent.

En poursuivant votre navigation sans modifier vos paramètres, vous acceptez l'utilisation de cookies susceptibles de réaliser des statistiques de visite. Cliquez ici pour plus d'informations