Maison 96 m² à Coueron

— Coueron 44220 —
464 000 €
96 m²
4 pièces

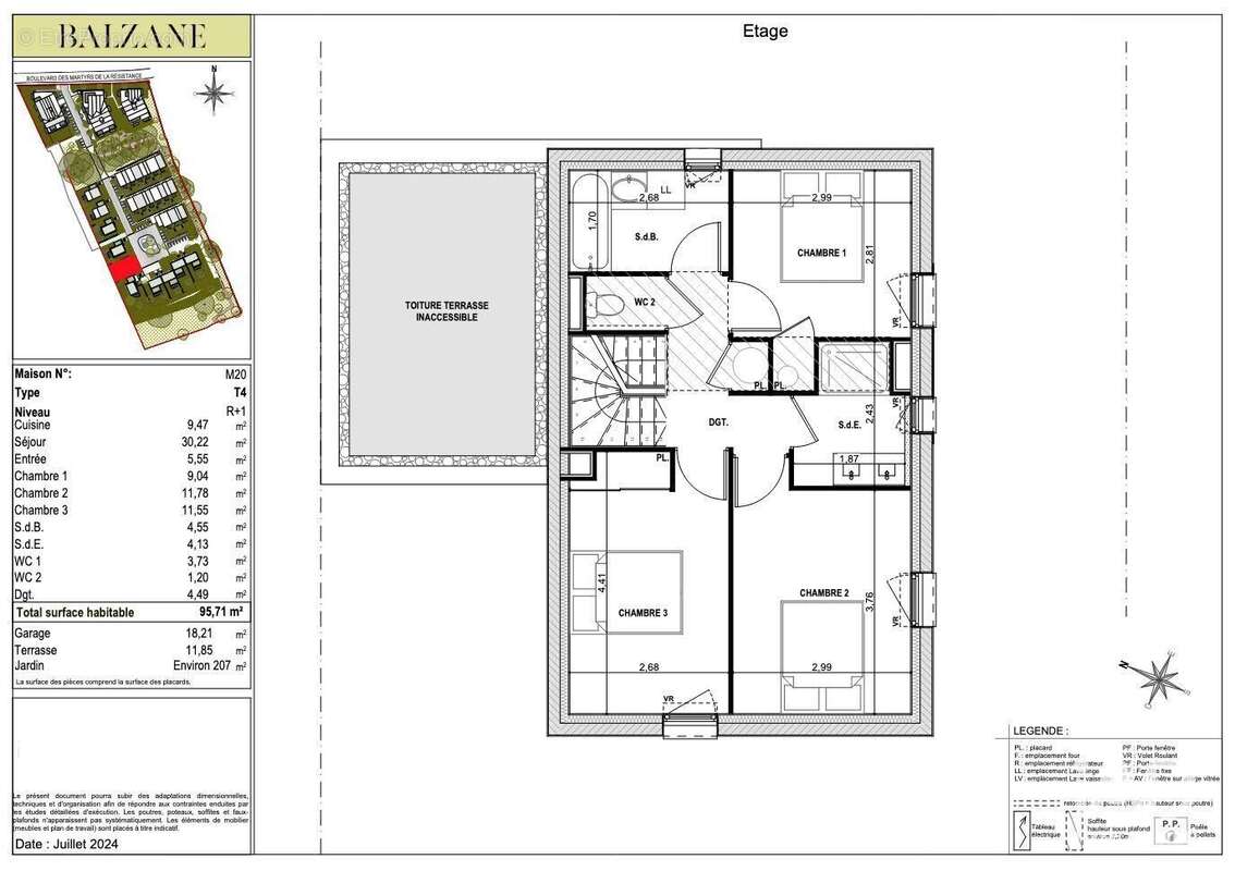
Iad France - Marc Franc ([Coordonnées masquées]) vous propose : === LIBRE IMMÉDIATEMENT - FRAIS NOTAIRE OFFERTS jusqu'au 31 mars 2026 ===OPPORTUNITÉ - villa T4 - Résidence 'BALZANE' à COUËRON : VOTRE RÉSIDENCE PRINCIPALE OU SECONDAIRE PROCHE DE NANTES. Résidence « BALZANE », un emplacement d'exception, au coeur de l'agglomération NANTAISE, à proximité de la côte ATLANTIQUE, à 15 min du centre de Nantes sur la rive nord de la Loire, 5 min de la gare.- maison 4 pièces, 3 chambres. orientation Sud / Ouest,. contenance totale de 96 m² environ,. Garage de 18 m² environ,. Jardin privatif de 207 m² environ,. Terrasse de 12 m² environ,. frais de notaire estimés à 11600 euros en moyenne. Ne manquez pas de concrétiser votre rêve, profitez en famille de cette opportunité à COUËRON, commune qui conjugue charmes authentiques et douceur de vivre, riche de ses multiples services, nombreux commerces, complexe sportif, écoles, collège, lycée, service à la santé, un environnement idéal pour les amoureux de la nature et de la randonnée, sur un territoire aux atouts économiques et culturels attractifs. La résidence 'BALZANE', 61 logements individuels et collectifs, lumineux et confortables, à l'architecture élégante, dans un cadre préservé, orientée sur les rives de l'estuaire de la Loire. Autres logements encore disponibles : - maisons individuelles de 4 pièces,- de 87 à 96 m² environ,- jardin privatif, terrasse,- Garage. Règlementation Environnementale RT 2012. Contactez-moi pour en savoir plus et réserver ! Honoraires d'agence à la charge du vendeur. Bien non soumis au DPE. Les informations sur les risques auxquels ce bien est exposé sont disponibles sur le site Géorisques : www.georisques.gouv.fr. La présente annonce immobilière a été rédigée sous la responsabilité éditoriale de M. Marc Franc EI (ID 83540), mandataire indépendant en immobilier (sans détention de fonds), agent commercial de la SAS I@D France immatriculé au RSAC de VANNES sous le numéro 931732952, titulaire de la carte de démarchage immobilier pour le compte de la société I@D France SAS. Retrouvez tous nos biens sur notre site internet. www.iadfrance.fr.Informations LOI ALUR : Honoraires charge vendeur. (gedeon_6727_32417992)
Voir plus

Référence: 1881340-11
Honoraires à la charge du vendeur.
Barème des honoraires
Photo 1 - Maison à COUERON
Photo 1
Photo 2 - Maison à COUERON
Photo 2
Photo 3 - Maison à COUERON
Photo 3
Photo 4 - Maison à COUERON
Photo 4
Photo 5 - Maison à COUERON
Photo 5
Photo 6 - Maison à COUERON
Photo 6
Photo 7 - Maison à COUERON
Photo 7
Photo 8 - Maison à COUERON
Photo 8
Photo 9 - Maison à COUERON
Photo 9
Géorisques

Les informations sur les risques auxquels ce bien est exposé sont disponibles sur le site Géorisques : www.georisques.gouv.fr

Ce site est protégé par hCaptcha Politique de confidentialité et Conditions d’utilisation s’appliquent.

En poursuivant votre navigation sans modifier vos paramètres, vous acceptez l'utilisation de cookies susceptibles de réaliser des statistiques de visite. Cliquez ici pour plus d'informations