Bénéficiez des services de nos partenaires locaux soigneusement sélectionnés
pour vous accompagner dans votre parcours d'achat immobilier

Maison 84 m² à Saint-Georges-De-Montaigu

— Saint-Georges-De-Montaigu 85600 —
247 500 €
84 m² / 134 m²
4 pièces
parkingjardin

Nos partenaires locaux
Iad France - Yvan Daniau ([Coordonnées masquées]) vous propose : St Georges de Montaigu

Investisseurs ou primo-accédants, ce programme de vente en VEFA (Vente en l'ETAT du Futur Achèvement) est pour vous.
Frais de notaire réduits et avantage fiscal nouvelle loi Jeanbrun.

Dans un environnement calme et résidentiel en hyper centre découvrez ce nouveau projet, alliant confort moderne et qualité de vie.

Nous vous proposons ce logement clé en main dont accès aux personnes à mobilité réduite, avec de belles prestations :
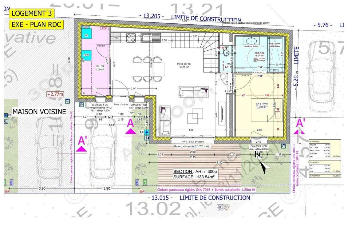
Au RDC
Une pièce de vie de 36.20 m² environ avec cuisine aménagée
Une Chambre de 11.04 m² environ
Une Salle de bain de 6.27 m² avec vasque et douche à l'italienne, faïence, paroi vitrée
Un WC
Un cellier avec évier de 7.09 m² environ
Un garage non attenant de 21.57 m² environ avec portail sectionnel motorisé
A L'ETAGE
Palier de 9.72 m² environ
WC
Une salle bain de 5.04 m² environ avec vasque et douche à l'italienne, faïence, paroi vitrée
2 chambres de 10.34 et 10.09 m² environ dont une avec placard aménagé
EXTERIEUR
Terrasse béton, clôtures et murets enduits.
Chauffage pompe à chaleur plancher chauffant rdc et étage
A réserver sans tarder

Honoraires d'agence à la charge du vendeur. Bien non soumis au DPE. Les informations sur les risques auxquels ce bien est exposé sont disponibles sur le site Géorisques : www.georisques.gouv.fr. La présente annonce immobilière a été rédigée sous la responsabilité éditoriale de M. Yvan Daniau EI (ID 21370), mandataire indépendant en immobilier (sans détention de fonds), agent commercial de la SAS I@D France immatriculé au RSAC de LA ROCHE SUR YON sous le numéro 504419409, titulaire de la carte de démarchage immobilier pour le compte de la société I@D France SAS.
Retrouvez tous nos biens sur notre site internet. www.iadfrance.fr.Informations LOI ALUR : Honoraires charge vendeur. (gedeon_6727_32827020)
Voir plus

Référence: 1964389-3
Honoraires à la charge du vendeur.
Barème des honoraires
Photo 1 - Maison à SAINT-GEORGES-DE-MONTAIGU
Photo 1
Photo 2 - Maison à SAINT-GEORGES-DE-MONTAIGU
Photo 2
Photo 3 - Maison à SAINT-GEORGES-DE-MONTAIGU
Photo 3
Photo 4 - Maison à SAINT-GEORGES-DE-MONTAIGU
Photo 4
Photo 5 - Maison à SAINT-GEORGES-DE-MONTAIGU
Photo 5
Photo 6 - Maison à SAINT-GEORGES-DE-MONTAIGU
Photo 6
Photo 7 - Maison à SAINT-GEORGES-DE-MONTAIGU
Photo 7
Géorisques

Les informations sur les risques auxquels ce bien est exposé sont disponibles sur le site Géorisques : www.georisques.gouv.fr

Ce site est protégé par hCaptcha Politique de confidentialité et Conditions d’utilisation s’appliquent.

En poursuivant votre navigation sans modifier vos paramètres, vous acceptez l'utilisation de cookies susceptibles de réaliser des statistiques de visite. Cliquez ici pour plus d'informations