Bénéficiez des services de nos partenaires locaux soigneusement sélectionnés
pour vous accompagner dans votre parcours d'achat immobilier

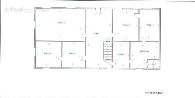
Maison 180 m² à Guebwiller

— Guebwiller 68500 —
145 000 €
180 m²
10 pièces

Nos partenaires locaux
Iad France - Maude Ruggeri vous propose : Située au cOEur de Guebwiller, cette maison d'environ 180 m² offre un fort potentiel d'aménagement. Idéale pour un investisseur ou une famille souhaitant s'y installer, elle peut être reconfigurée en plusieurs appartements ou transformée en un grand logement familial avec de beaux volumes.

Les atouts :

Volumes généreux avec une belle hauteur sous plafond

Plus de 180 m² habitables à repenser selon vos projets

Grand parking gratuit situé juste à côté

Proximité immédiate des commerces, écoles et services

Des travaux complets sont à prévoir pour remettre le bien aux normes et créer un espace de vie entièrement rénové. Ce bien brut constitue une base idéale pour un projet locatif ou résidentiel.

À noter :

Pas d'espace extérieur privatif (ni jardin, ni cour)

Pas de garage ni d'emplacement privé, mais stationnement aisé sur un grand parking à proximité immédiate

Emplacement pratique et central à Guebwiller, proche de toutes les commodités.



Honoraires d'agence à la charge du vendeur.
Bien non soumis au DPE. Les informations sur les risques auxquels ce bien est exposé, y compris l'obligation légale de débroussaillement, sont disponibles sur le site Géorisques : http://www.georisques.gouv.fr.
La présente annonce immobilière a été rédigée sous la responsabilité éditoriale de Mme Maude Ruggeri mandataire indépendant en immobilier (sans détention de fonds), agent commercial de la SAS I@D France immatriculé au RSAC de Colmar sous le numéro 931169759, titulaire de la carte de démarchage immobilier pour le compte de la société I@D France SAS.Informations LOI ALUR : Honoraires charge vendeur. (gedeon_6727_33066854)
Voir plus

Référence: 1755328
Honoraires à la charge du vendeur.
Barème des honoraires
Photo 1 - Maison à GUEBWILLER
Photo 1
Photo 2 - Maison à GUEBWILLER
Photo 2
Photo 3 - Maison à GUEBWILLER
Photo 3
Photo 4 - Maison à GUEBWILLER
Photo 4
Photo 5 - Maison à GUEBWILLER
Photo 5
Géorisques

Les informations sur les risques auxquels ce bien est exposé sont disponibles sur le site Géorisques : www.georisques.gouv.fr

Ce site est protégé par hCaptcha Politique de confidentialité et Conditions d’utilisation s’appliquent.

En poursuivant votre navigation sans modifier vos paramètres, vous acceptez l'utilisation de cookies susceptibles de réaliser des statistiques de visite. Cliquez ici pour plus d'informations