Appartement 80 m² à Castelginest

— Castelginest 31780 —
305 000 €
80 m²
4 pièces

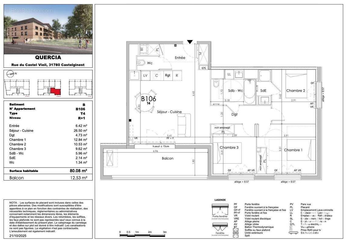
Iad France - Marc Franc ([Coordonnées masquées]) vous propose : === FRAIS NOTAIRE OFFERTS jusqu'au 31 mars 2026 ===OPPORTUNITÉ -T4 - Résidence 'QUERCIA' à CASTELGINESTRésidence 'QUERCIA', l'équilibre parfait, entre nature et vie citadine, CASTELGINEST aux portes de TOULOUSE.- 4 pièces de 80 m² environ, R + 1,. 3 chambres,. balcon 13 m² environ,. 2 places de parking couvert,. frais de notaire estimés à 7600 euros en moyenne. Accession libre. Vous l'avez rêvé, ne manquez pas de concrétiser votre projet, profitez en famille de cette opportunité à CASTELGINEST où se conjuguent authenticité et tranquillité. La résidence 'QUERCIA', logements à l'accession libre, lumineux et confortables, dans un cadre idéal où tout est pensé pour que vous puissiez jouir de logements aux nombreux avantages. Autres logements disponibles : - 3 et 4 pièces de 67 à 80 m² environ,. 2 et 3 chambres,. balcon ou terrasse,. 2 places de parking,. Accession libre. Règlementation Environnementale RE 2020. Livraison prévisionnelle 4eme T 2026. Contactez-moi pour en savoir plus et réserver ! Honoraires d'agence à la charge du vendeur. Bien non soumis au DPE. Les informations sur les risques auxquels ce bien est exposé sont disponibles sur le site Géorisques : www.georisques.gouv.fr. La présente annonce immobilière a été rédigée sous la responsabilité éditoriale de M. Marc Franc EI (ID 83540), mandataire indépendant en immobilier (sans détention de fonds), agent commercial de la SAS I@D France immatriculé au RSAC de VANNES sous le numéro 931732952, titulaire de la carte de démarchage immobilier pour le compte de la société I@D France SAS. Retrouvez tous nos biens sur notre site internet. www.iadfrance.fr.Informations LOI ALUR : Honoraires charge vendeur. (gedeon_6727_33066902)
Voir plus

Référence: 1905615-5
Honoraires à la charge du vendeur.
Barème des honoraires
Photo 1 - Appartement à CASTELGINEST
Photo 1
Photo 2 - Appartement à CASTELGINEST
Photo 2
Photo 3 - Appartement à CASTELGINEST
Photo 3
Photo 4 - Appartement à CASTELGINEST
Photo 4
Photo 5 - Appartement à CASTELGINEST
Photo 5
Géorisques

Les informations sur les risques auxquels ce bien est exposé sont disponibles sur le site Géorisques : www.georisques.gouv.fr

Ce site est protégé par hCaptcha Politique de confidentialité et Conditions d’utilisation s’appliquent.

En poursuivant votre navigation sans modifier vos paramètres, vous acceptez l'utilisation de cookies susceptibles de réaliser des statistiques de visite. Cliquez ici pour plus d'informations