Havre de paix ! Appartement 3 pièces de 93 m² avec terrasse - Avenue Colombier Bernard, La Garenne-Colombes

— La Garenne-Colombes 92250 —
630 000 €
93 m²
3 pièces
balcon/terrasseascenseur

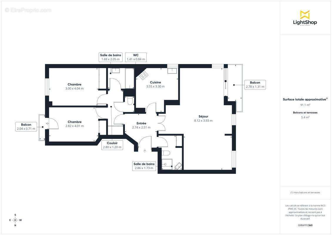
Hosman vous propose à la vente ce bel appartement 3 pièces de 92,91 m² carrez, situé au deuxième étage avec ascenseur d'un immeuble récent et bien entretenu, situé sur l'Avenue Colombier Bernard.
Les parties communes de l'immeuble ont été rénovées l'année dernière.

L'appartement, accessible PMR, se compose comme suit :
- Une entrée menant à une vaste pièce de vie de plus de 36 m² avec parquet en pointe de Hongrie, calme et lumineuse, orientée Sud/Sud-Ouest. Elle donne accès à une terrasse de 5,5 m², sur cour et sans vis-à-vis. Une climatisation inversée a été installée dans le séjour en 2016, et des volets roulants électriques y sont intégrés ;
- Une cuisine de 10,42 m² séparée, équipée d'un frigo, d'un congélateur, d'un four, de plaques à induction, d'une hotte à filtre et d'un lave-vaisselle ;
- La partie nuit dispose de placards de rangement et se compose de deux chambres. La première chambre de 12,7 m² inclut des placards intégrés et un accès à un balcon de 1,3 m² donnant sur une voie privée. La seconde chambre de 13,79 m² est orientée plein Est et équipée d'une grande armoire.
- Une salle de bain avec baignoire, vasque simple et aération naturelle ;
- Une salle d'eau avec douche, WC, emplacement pour machine à laver et sèche-serviette ;
- Des WC séparés.

Le chauffage et l'eau chaude sont au gaz individuel.

Une cave bétonnée complète ce bien.

La taxe foncière annuelle est de 2071 €.
Les charges de copropriété s'élèvent à 820 € par trimestre.

L'appartement est situé dans un quartier calme et familial, à proximité de nombreux commerces et restaurants. L'arrêt de tramway Les Fauvelles (ligne T2) est à quelques minutes à pied seulement de l'appartement, et mène à La Défense en 5 minutes. La gare de Transilien La Garenne-Colombes (ligne L) est à 10 minutes à pied, et vous permet de rejoindre la Gare Saint-Lazare en 15 minutes.

Le bien est soumis au statut de copropriété.

Planifiez facilement votre visite en choisissant le créneau qui vous convient depuis le site d'Hosman.

Hosman s'efforce de réinventer l'agence immobilière en offrant un service innovant et transparent aux acheteurs et aux vendeurs. Nos frais d'agence sont de 14900 euros fixes à la charge du vendeur.
Si vous êtes un professionnel de l'immobilier (agent, mandataire ou chasseur immobilier), sachez que toutes les annonces Hosman sont ouvertes à la collaboration. N'hésitez pas à nous contacter pour en discuter.
Voir plus

Référence: 7ae7ff
Bien en copropriété. Charges de copropriété : 273 €.
Honoraires à la charge du vendeur.
DPE
A
B
C
D
E
F
G
GES
A
B
C
D
E
F
G
Appartement à LA GARENNE-COLOMBES
Appartement à LA GARENNE-COLOMBES
Appartement à LA GARENNE-COLOMBES
Appartement à LA GARENNE-COLOMBES
Appartement à LA GARENNE-COLOMBES
Appartement à LA GARENNE-COLOMBES
Appartement à LA GARENNE-COLOMBES
Appartement à LA GARENNE-COLOMBES
Appartement à LA GARENNE-COLOMBES
Appartement à LA GARENNE-COLOMBES
Appartement à LA GARENNE-COLOMBES
Appartement à LA GARENNE-COLOMBES
Appartement à LA GARENNE-COLOMBES
Appartement à LA GARENNE-COLOMBES
Appartement à LA GARENNE-COLOMBES
Géorisques

Les informations sur les risques auxquels ce bien est exposé sont disponibles sur le site Géorisques : www.georisques.gouv.fr

Ce site est protégé par hCaptcha Politique de confidentialité et Conditions d’utilisation s’appliquent.

En poursuivant votre navigation sans modifier vos paramètres, vous acceptez l'utilisation de cookies susceptibles de réaliser des statistiques de visite. Cliquez ici pour plus d'informations