Bénéficiez des services de nos partenaires locaux soigneusement sélectionnés
pour vous accompagner dans votre parcours d'achat immobilier

Beau T3 neuf dernier étage - La Ciotat 72 m2 - 513 000

— La Ciotat 13600 —
513 000 €
72 m²
3 pièces
parkingbalcon/terrasseascenseur

Nos partenaires locaux
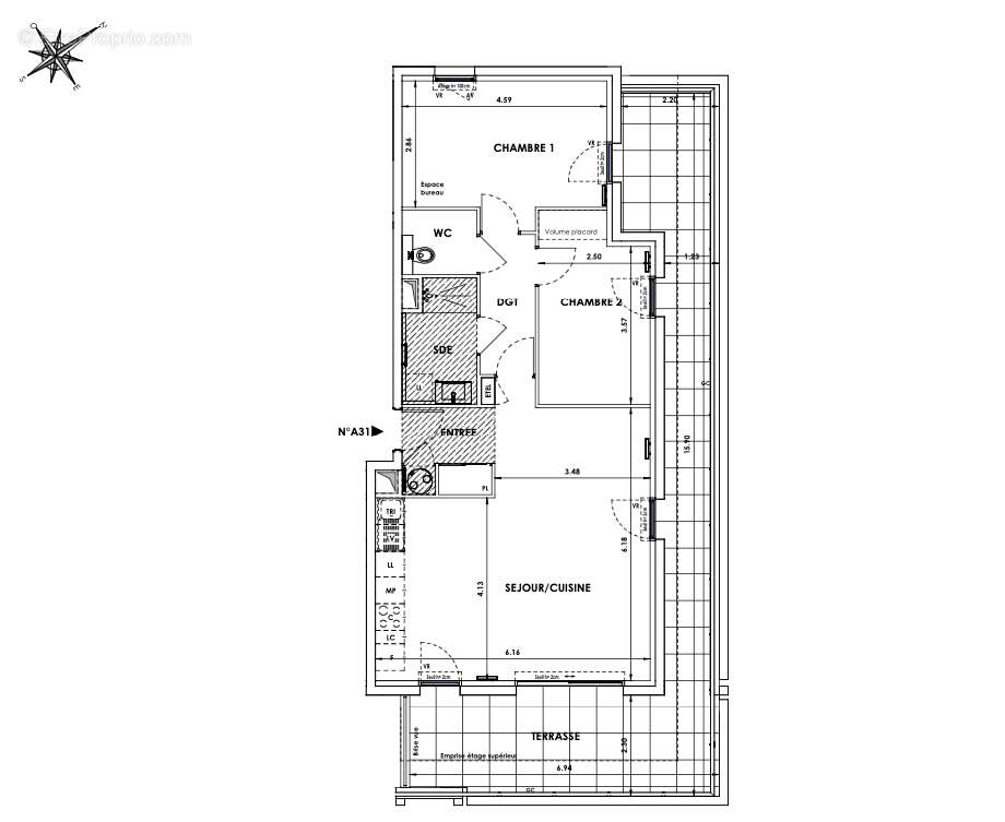
T3 lumineux de 72 m² avec terrasse de 32 m² en Dernier étage - Résidence intimiste et de standing à La Ciotat

Découvrez ce T3 de 72 m² situé au 3e et dernier étage d'une résidence moderne , calme et sécurisée, composée de seulement 17 logements avec ascenseur.

Idéalement situé à La Ciotat, à moins de 10 minutes à vélo des plages et du centre historique, ce bien offre un cadre de vie privilégié entre mer et nature.

Vous serez séduit dès l'entrée par la luminosité exceptionnelle qu'offre cet appartement grâce à sa terrasse de 32 m² faisant le tour complet du logement
un véritable espace de vie extérieur où il fait bon se détendre ou recevoir ses proches.

L'agencement a été pensé pour optimiser chaque mètre carré :

Une pièce de vie spacieuse ouverte sur la terrasse,
Une cuisine moderne,
Deux belles chambres,
Une salle d'eau fonctionnelle et WC séparés.

La résidence, entourée d'un terrain arboré, offre un environnement intimiste et verdoyant, à proximité immédiate de tous les commerces et services.

Vous profiterez de tous les avantages du neuf :

Dernières normes énergétiques (RE2020)
Frais de notaire réduits
Garanties constructeur (décennale, biennale, parfait achèvement)
Isolation phonique et thermique optimale

Un bien rare sur le secteur, idéal pour une résidence principale ou un investissement patrimonial de qualité.

Contactez-moi dès maintenant pour organiser une visite et découvrir tout le potentiel de ce superbe appartement à La Ciotat.

Charges courantes « prévisionnelles » de 1700 euros.
Procédures diligentées contre le syndicat de copropriété : NON.
513 000 euros (honoraires à la charge du vendeur)
Contact : [Coordonnées masquées]; [Coordonnées masquées].
Cette présente annonce a été rédigée sous la responsabilité éditoriale de Caroline GUIMOND agissant sous le statut d'agent commercial auprès de la SAS PROPRIETES PRIVEES, Réseau national immobilier, au capital de 40000 euros, 44 ALLÉE DES CINQ CONTINENTS - ZAC LE CHÊNE FERRÉ, 44120 VERTOU, RCS Nantes n° 487 624 777 00040, Carte professionnelle T et G n° CPI 44[Coordonnées masquées]10 388 CCI Nantes-Saint Nazaire. Garantie GALIAN - 89 rue de la Boétie, 75008 Paris

Mandat réf : 428588 - Le professionnel garantit et sécurise votre projet immobilier.

Copropriété de 17 lots - dont 17 lots habitation.

Charges annuelles : 1700 euros.
Caroline GUIMOND (EI) Agent Commercial - Numéro RSAC : TOULON 511 466 302 - .
Les informations sur les risques auxquels ce bien est exposé sont disponibles sur le site Géorisques : www. georisques. gouv. fr
Voir plus

Référence: 428588.18LND
Bien en copropriété. Nombre de lots : 17. Charges de copropriété : 141 €.
Honoraires à la charge du vendeur.
Appartement à LA CIOTAT
Appartement à LA CIOTAT
Appartement à LA CIOTAT
Appartement à LA CIOTAT
Géorisques

Les informations sur les risques auxquels ce bien est exposé sont disponibles sur le site Géorisques : www.georisques.gouv.fr

Ce site est protégé par hCaptcha Politique de confidentialité et Conditions d’utilisation s’appliquent.

En poursuivant votre navigation sans modifier vos paramètres, vous acceptez l'utilisation de cookies susceptibles de réaliser des statistiques de visite. Cliquez ici pour plus d'informations