Bénéficiez des services de nos partenaires locaux soigneusement sélectionnés
pour vous accompagner dans votre parcours d'achat immobilier

Bastide 160m² - jardin arbore 952m² - marseille 9eme

— Marseille-9e 13009 —
1 090 000 €
160 m²
6 pièces
parkingbalcon/terrassejardin

Nos partenaires locaux
L'agence Dakey's vous propose à la vente un bien rare sur le marché.

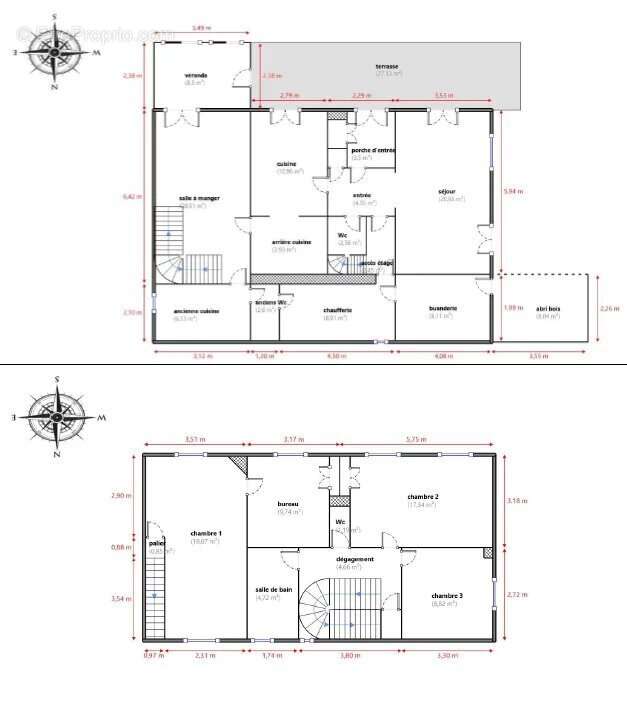
Idéalement située à proximité immédiate du cœur du village de Mazargues, dans un environnement calme et recherché, cette propriété de charme développe environ 160 m² habitables et s'ouvre sur un agréable jardin arboré.

Édifiée sur deux niveaux, cette maison de la fin du XIXème siècle séduit par son authenticité, sa luminosité et ses belles hauteurs sous plafond, offrant des volumes généreux.

Au rez-de-chaussée, la porte d'entrée, majestueuse, donne accès à un salon agrémenté d'une cheminée créant une atmosphère chaleureuse et conviviale.
L'entrée distribue également une cuisine et une salle à manger se prolongeant sur une superbe veranda.
Chacune de ces pièces s'ouvre sur un jardin arboré d'une surface d'environ 900m².
À l'arrière de ce niveau, un cellier, une buanderie, la chaufferie et une arrière cuisine complètent l'espace et offrent des possibilités d'agrandissement des volumes.

L'étage accueille trois chambres confortables dont une avec son escalier indépendant ainsi qu'un bureau.
Une salle de bains, un WC séparé et un placard complètent ce niveau.

À l'extérieur, le jardin paysager, véritable écrin de verdure, invite à la détente, dans un cadre paisible et sans nuisance. Un garage fermé ainsi qu'une aire permettant de garer plusieurs véhicules complètent ce bien rare à la vente.
Un véritable havre de paix, alliant charme, volumes et emplacement privilégié.

DPE: F
Taxe foncière : 2400€
Honoraires à la charge du vendeur
Montant estimé des dépenses annuelles d'énergie pour un usage standard : 5690€ - 7750€

Valentin EGLOFF
[Coordonnées masquées]
[Coordonnées masquées]
25 boulevard Vauban 13006 Marseille
RSAC 913719183

Les informations sur les risques auxquels ce bien est exposé sont disponibles sur le site Géorisques : www.georisques.gouv.fr
Voir plus

Référence: 86913002
Barème des honoraires
GES
A
B
C
D
E
F
G
Maison à MARSEILLE-9E
Maison à MARSEILLE-9E
Maison à MARSEILLE-9E
Maison à MARSEILLE-9E
Maison à MARSEILLE-9E
Maison à MARSEILLE-9E
Maison à MARSEILLE-9E
Maison à MARSEILLE-9E
Maison à MARSEILLE-9E
Maison à MARSEILLE-9E
Maison à MARSEILLE-9E
Maison à MARSEILLE-9E
Maison à MARSEILLE-9E
Maison à MARSEILLE-9E
Maison à MARSEILLE-9E
Maison à MARSEILLE-9E
Maison à MARSEILLE-9E
Maison à MARSEILLE-9E
Maison à MARSEILLE-9E
Maison à MARSEILLE-9E
Maison à MARSEILLE-9E
Maison à MARSEILLE-9E
Maison à MARSEILLE-9E
Maison à MARSEILLE-9E
Maison à MARSEILLE-9E
Géorisques

Les informations sur les risques auxquels ce bien est exposé sont disponibles sur le site Géorisques : www.georisques.gouv.fr

Ce site est protégé par hCaptcha Politique de confidentialité et Conditions d’utilisation s’appliquent.

En poursuivant votre navigation sans modifier vos paramètres, vous acceptez l'utilisation de cookies susceptibles de réaliser des statistiques de visite. Cliquez ici pour plus d'informations