Bénéficiez des services de nos partenaires locaux soigneusement sélectionnés
pour vous accompagner dans votre parcours d'achat immobilier

Duplex familial - Village Pernety - Paris XIVème

— Paris-14e 75014 —
725 000 €
73 m²
4 pièces
ascenseur

Nos partenaires locaux
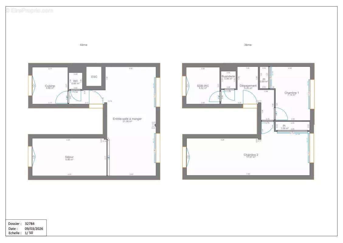
Au cœur du très recherché village Pernety, au sein d'un bel immeuble en pierre et brique avec ascenseur, découvrez ce charmant duplex traversant de 73 m² situé aux 3ème et 4ème étages.
L'appartement s'ouvre sur une entrée menant à une agréable pièce de vie baignée de lumière, exposée sud/ Ouest - Nord/Est. La cuisine, aménagée et indépendante, offre un espace fonctionnel et convivial. Un WC indépendant complète ce niveau.
À l'étage inférieur, l'espace nuit se compose de deux chambres, dont une facilement modulable pour créer une troisième chambre selon vos besoins. Vous y trouverez également une salle de bains avec WC ainsi qu'un espace buanderie.
La distribution en duplex permet une séparation harmonieuse entre les espaces de vie et de nuit, idéale pour une vie de famille.
En annexe, une cave saine complète ce bien.
Les informations sur les risques auxquels ce bien est exposé sont disponibles sur le site Géorisques : www. georisques. gouv. fr
Voir plus

Référence: 86786954F
Bien en copropriété. Nombre de lots : 7. Charges de copropriété : 32 €.
Honoraires d'agence de 5.07% à la charge de l'acquéreur
DPE
A
B
C
D
E
F
G
GES
A
B
C
D
E
F
G
Appartement à PARIS-14E
Appartement à PARIS-14E
Appartement à PARIS-14E
Appartement à PARIS-14E
Appartement à PARIS-14E
Appartement à PARIS-14E
Appartement à PARIS-14E
Appartement à PARIS-14E
Appartement à PARIS-14E
Appartement à PARIS-14E
Géorisques

Les informations sur les risques auxquels ce bien est exposé sont disponibles sur le site Géorisques : www.georisques.gouv.fr

Ce site est protégé par hCaptcha Politique de confidentialité et Conditions d’utilisation s’appliquent.

En poursuivant votre navigation sans modifier vos paramètres, vous acceptez l'utilisation de cookies susceptibles de réaliser des statistiques de visite. Cliquez ici pour plus d'informations