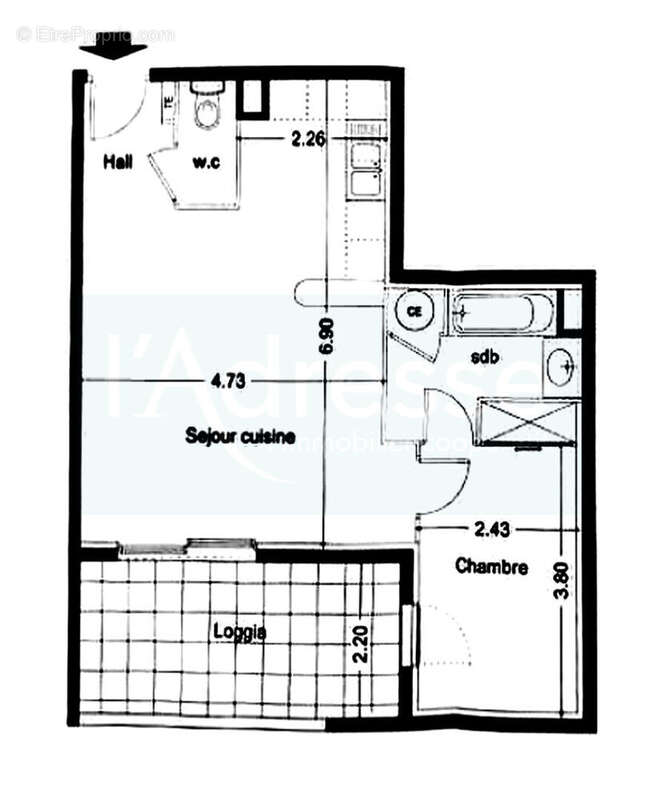
Castelnau le lez ? appartement 2 pièces 48,5 m² ? loggia 11 m² ? parking boxable ? résidence 2007.

— Castelnau-Le-Lez 34170 —
194 900 €
48 m²
2 pièces
parkingbalcon/terrasseascenseur

CASTELNAU LE LEZ ? APPARTEMENT 2 PIÈCES 48,5 m² ? LOGGIA 11 m² ? PARKING BOXABLE ? RÉSIDENCE 2007. Idéalement situé, à proximité immédiate des COMMERCES et du TRAMWAY arrêt Charles de Gaulle. Découvrez ce bel appartement deux pièces de 48,5 m² au sein d'une résidence avec ascenseur. Situé au 2? étage, ce bien lumineux et parfaitement agencé se compose : - d'une entrée - d'un séjour agréable ouvrant sur une loggia exposée OUEST, idéale pour profiter de la lumière naturelle - d'une cuisine équipée - d'une chambre avec placard de rangement - d'un WC séparé - d'une salle de bain avec baignoire et rangements. Un parking boxable en sous-sol complète ce bien. La résidence vous fera aussi profiter d'un local à vélos. Un appartement qui allie confort, fonctionnalité et emplacement recherché à Castelnau le Lez, idéal pour une résidence principale ou un investissement. * VISITE IMMERSIVE 360° DISPONIBLE * Copropriété de 233 lots - dont 110 lots habitation. Charges annuelles : 1258 euros.
Voir plus

Référence: 672
Bien en copropriété. Nombre de lots : 233. Charges de copropriété : 1258 €.
Honoraires à la charge du vendeur.
Barème des honoraires
Appartement à CASTELNAU-LE-LEZ
Appartement à CASTELNAU-LE-LEZ
Appartement à CASTELNAU-LE-LEZ
Appartement à CASTELNAU-LE-LEZ
Appartement à CASTELNAU-LE-LEZ
Appartement à CASTELNAU-LE-LEZ
Appartement à CASTELNAU-LE-LEZ
Appartement à CASTELNAU-LE-LEZ
Géorisques

Les informations sur les risques auxquels ce bien est exposé sont disponibles sur le site Géorisques : www.georisques.gouv.fr

Ce site est protégé par hCaptcha Politique de confidentialité et Conditions d’utilisation s’appliquent.

En poursuivant votre navigation sans modifier vos paramètres, vous acceptez l'utilisation de cookies susceptibles de réaliser des statistiques de visite. Cliquez ici pour plus d'informations