Bénéficiez des services de nos partenaires locaux soigneusement sélectionnés
pour vous accompagner dans votre parcours d'achat immobilier

SAINT-PAIR-SUR-MER - Maison d'architecte sur magnifique parc arboré à vendre - 50380

— Saint-Pair-Sur-Mer 50380 —
475 000 €
225 m² / 15 147 m²
7 pièces
jardin

Nos partenaires locaux
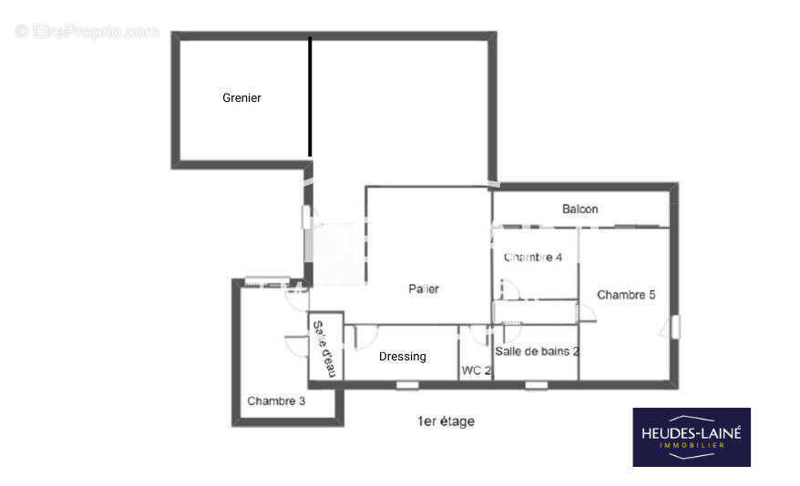
HEUDES-LAINÉ Immobilier vous présente : A 4 kms de la mer et à proximité immédiate de l'axe Avranches/Granville, une propriété rare nichée au coeur d'un écrin de verdure offrant calme, intimité et un cadre de vie exceptionnel avec son magnifique parc arboré de plus d'1,5 hectare. Cette maison d'architecte, de caractère avec un fort potentiel offre une véritable connexion avec l'extérieur par ses nombreuses ouvertures comprenant : Au rez-de-chaussée : une vaste entrée avec dressing, WC avec lave-mains, un grand séjour baigné de lumière et son chaleureux salon avec cheminée foyer ouvert, une grande cuisine conviviale, suite parentale (son dressing, sa salle de bains avec douche) traversante avec vue sur le parc. A l'étage : une mezzanine, 3 chambres dont 2 avec balcon commun offrant une vue imprenable sur le jardin. Sous-sol complet : garage, cave, chaufferie, salle d'eau et sauna ainsi qu'une chambre supplémentaire en rez-de-jardin. Une ancienne boulangerie en pierres complète la propriété que vous pouvez réinventer selon vos envies en gîte, atelier d'artiste, maison d'amis... Contactez votre agence HEUDES-LAINÉ Immobilier pour tout renseignement ou organiser une visite sur cette propriété unique pleine de charme à Saint-Pair-Sur-Mer qui vous assure tranquillité. Les informations sur les risques auxquels ce bien est exposé sont disponibles sur le site Géorisques : www. georisques.gouv.fr (4.40 % honoraires TTC à la charge de l'acquéreur.)
Voir plus

Référence: 7951
Honoraires d'agence de 4.4% à la charge de l'acquéreur
Barème des honoraires
DPE
A
B
C
D
E
F
G
GES
A
B
C
D
E
F
G
Maison à SAINT-PAIR-SUR-MER
Maison à SAINT-PAIR-SUR-MER
Maison à SAINT-PAIR-SUR-MER
Maison à SAINT-PAIR-SUR-MER
Maison à SAINT-PAIR-SUR-MER
Maison à SAINT-PAIR-SUR-MER
Maison à SAINT-PAIR-SUR-MER
Maison à SAINT-PAIR-SUR-MER
Maison à SAINT-PAIR-SUR-MER
Maison à SAINT-PAIR-SUR-MER
Maison à SAINT-PAIR-SUR-MER
Maison à SAINT-PAIR-SUR-MER
Maison à SAINT-PAIR-SUR-MER
Maison à SAINT-PAIR-SUR-MER
Maison à SAINT-PAIR-SUR-MER
Maison à SAINT-PAIR-SUR-MER
Maison à SAINT-PAIR-SUR-MER
Maison à SAINT-PAIR-SUR-MER
Géorisques

Les informations sur les risques auxquels ce bien est exposé sont disponibles sur le site Géorisques : www.georisques.gouv.fr

Ce site est protégé par hCaptcha Politique de confidentialité et Conditions d’utilisation s’appliquent.

En poursuivant votre navigation sans modifier vos paramètres, vous acceptez l'utilisation de cookies susceptibles de réaliser des statistiques de visite. Cliquez ici pour plus d'informations