Bénéficiez des services de nos partenaires locaux soigneusement sélectionnés
pour vous accompagner dans votre parcours d'achat immobilier

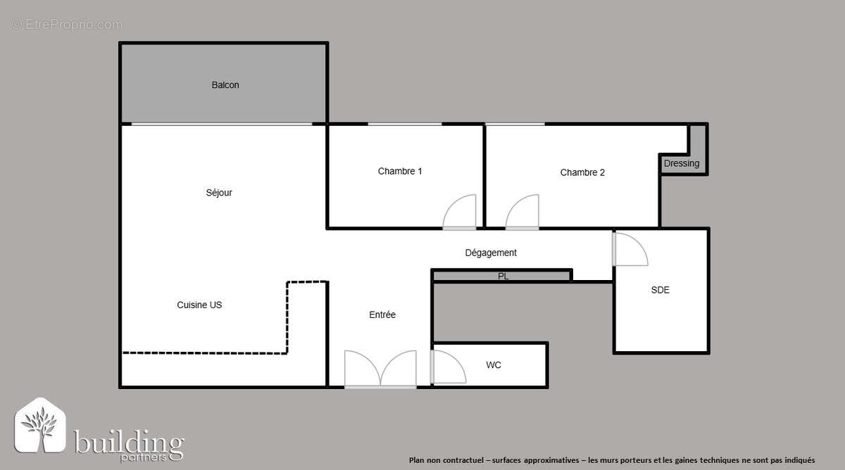
Bécon - Appartement 3 pièces de 60,20 m²

— Courbevoie 92400 —
520 000 €
60 m² / 3 m²
3 pièces
balcon/terrassejardinascenseur

Nos partenaires locaux
A proximité du parc des Bruyères, BUILDING PARTNERS vous propose à la vente ce bel appartement 3 pièces de 60.20 m², situé au 6e étage avec ascenseur d'une copropriété de standing, offrant les dernières normes en matière d'isolation phonique et thermique. Situé au calme, donnant entièrement sur cour, ce bien lumineux bénéficie d'un agencement fonctionnel et de prestations haut de gamme. Il se compose d'une entrée avec rangements, d'un agréable séjour d'environ 23 m² avec cuisine ouverte aménagée et équipée, ouvrant sur un balcon de 3 m² exposé sud-est, de deux chambres bien proportionnées dont une avec dressing, d'une salle d'eau moderne avec espace buanderie, et de WC séparés. L'appartement est en parfait état général, décoré avec goût, et prêt à accueillir ses futurs occupants sans aucun travaux à prévoir. Une place de parking en sous-sol vient compléter ce bien et un second est possible à l'achat dans l'immeuble. Local vélos dans la résidence. Idéalement situé dans un environnement calme et verdoyant, à deux pas du parc des Bruyères, des commerces, des écoles et des transports. Ce bien rare séduira aussi bien les jeunes familles que les investisseurs à la recherche d'un appartement récent, lumineux et parfaitement situé. N'hésitez pas à nous contacter pour plus d'informations ou organiser une visite.
Voir plus

Bien en copropriété. Charges de copropriété : 2568 €.
Honoraires à la charge du vendeur.
Barème des honoraires
DPE
A
B
C
D
E
F
G
GES
A
B
C
D
E
F
G
Appartement à COURBEVOIE
Appartement à COURBEVOIE
Appartement à COURBEVOIE
Appartement à COURBEVOIE
Géorisques

Les informations sur les risques auxquels ce bien est exposé sont disponibles sur le site Géorisques : www.georisques.gouv.fr

Ce site est protégé par hCaptcha Politique de confidentialité et Conditions d’utilisation s’appliquent.

En poursuivant votre navigation sans modifier vos paramètres, vous acceptez l'utilisation de cookies susceptibles de réaliser des statistiques de visite. Cliquez ici pour plus d'informations