Bénéficiez des services de nos partenaires locaux soigneusement sélectionnés
pour vous accompagner dans votre parcours d'achat immobilier

Appartement 65 m² à Corbeil-Essonnes

— Corbeil-Essonnes 91100 —
139 000 €
65 m²
3 pièces
parkingbalcon/terrasse

Nos partenaires locaux
Appartement T3 avec Vue Lac – Standing, Double Potentiel et Opportunité Investisseur
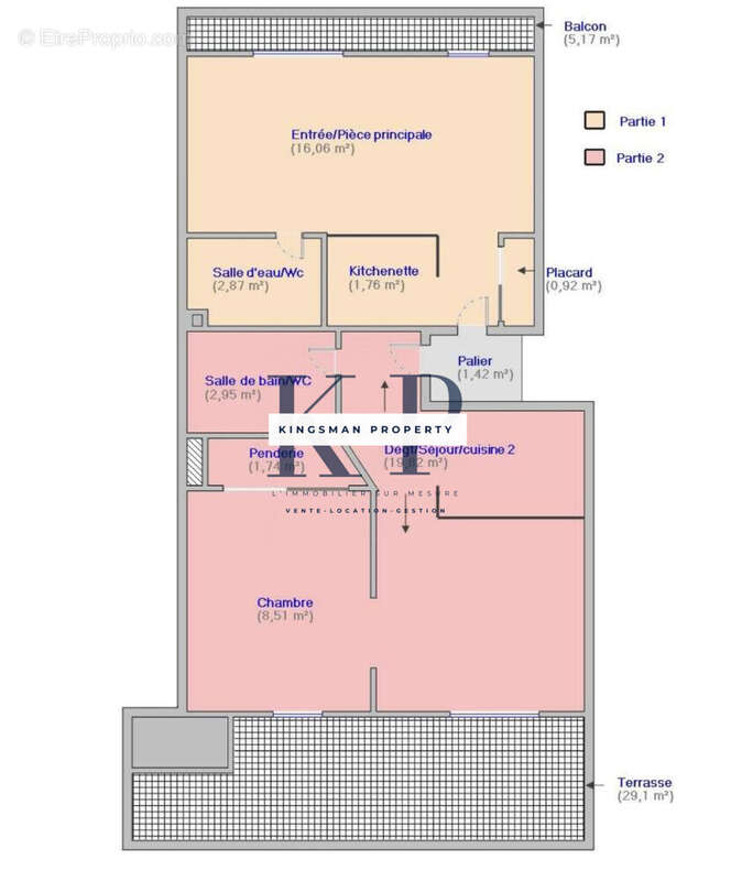
Découvrez ce bien rare au fort potentiel, composé actuellement de deux appartements distincts pouvant être réunis, offrant une flexibilité idéale pour un projet d'investissement ou une résidence principale sur mesure.
Situé au 1er étage d'un immeuble de standing de 3 étages, au sein d'une résidence sécurisée et en arrière-lot, ce bien développe une surface totale de 56 m². Il bénéficie d'un environnement calme et préservé, tout en restant proche de toutes les commodités.
L'ensemble se compose de deux chambres, d'une salle de bains lumineuse, et d'un séjour de 20 m² baigné de lumière, offrant une vue imprenable sur le lac. Les espaces extérieurs sont un véritable atout : un balcon de 5 m² et une spacieuse terrasse de 29 m², parfaits pour profiter pleinement des beaux jours.
La cuisine aménagée est fonctionnelle, tandis que l'état intérieur à rafraîchir laisse libre cours à vos envies d'aménagement, que ce soit pour une réunification des lots, une revente optimisée, ou un rendement locatif attractif.
Une Cave complète ce bien et Possibilité d'une place de parking en Sus.
Emplacement privilégié :
École élémentaire, commerces et restaurants à 5 minutes à pied
Maternelles et médecins généralistes à 10 minutes à pied
Parcs et jardins à 5 minutes en voiture
Hôpital à 10 minutes en voiture
Les + du bien :
Deux appartements séparés réunissables
Idéal investisseur ou projet patrimonial
Vue lac exceptionnelle
Grande terrasse
Résidence sécurisée, en arrière-lot
Calme et luminosité
Contactez-nous dès aujourd'hui pour organiser une visite et découvrir tout le potentiel de ce bien.

Honoraires inclus de 6.92% TTC à la charge de l'acquéreur. Prix hors honoraires 130 000 €. Dans une copropriété de 70 lots. Aucune procédure n'est en cours. Classe énergie E, Classe climat B Montant moyen estimé des dépenses annuelles d'énergie pour un usage standard, établi à partir des prix de l'énergie de l'année 2021 : entre 1192.00 et 1615.00 €. Les informations sur les risques auxquels ce bien est exposé sont disponibles sur le site Géorisques : georisques.gouv.fr.
Voir plus

Référence: V1106-139000-06-KINGSMAN
Bien en copropriété. Nombre de lots : 70.
Honoraires d'agence de 6.92% à la charge de l'acquéreur
Barème des honoraires
DPE
A
B
C
D
E
F
G
GES
A
B
C
D
E
F
G
Appartement à CORBEIL-ESSONNES
Appartement à CORBEIL-ESSONNES
Amélioration  - Appartement à CORBEIL-ESSONNES
Amélioration
Appartement à CORBEIL-ESSONNES
Appartement à CORBEIL-ESSONNES
Appartement à CORBEIL-ESSONNES
Appartement à CORBEIL-ESSONNES
Appartement à CORBEIL-ESSONNES
Appartement à CORBEIL-ESSONNES
Géorisques

Les informations sur les risques auxquels ce bien est exposé sont disponibles sur le site Géorisques : www.georisques.gouv.fr

Ce site est protégé par hCaptcha Politique de confidentialité et Conditions d’utilisation s’appliquent.

En poursuivant votre navigation sans modifier vos paramètres, vous acceptez l'utilisation de cookies susceptibles de réaliser des statistiques de visite. Cliquez ici pour plus d'informations