Bénéficiez des services de nos partenaires locaux soigneusement sélectionnés
pour vous accompagner dans votre parcours d'achat immobilier

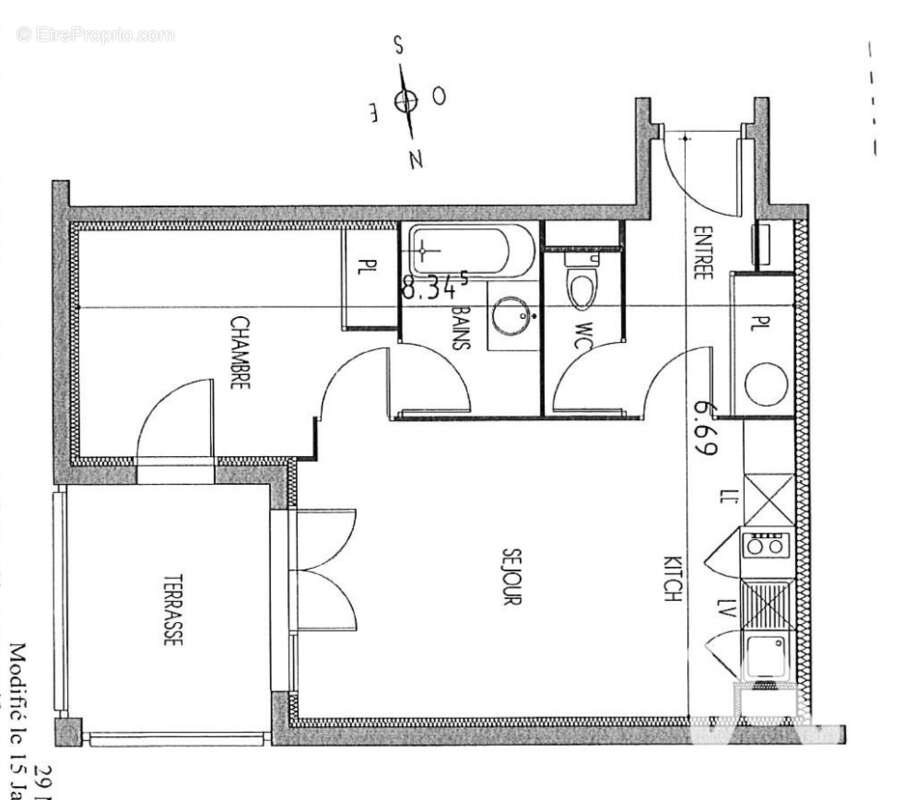
Appartement 40 m² à Parempuyre

— Parempuyre 33290 —
137 000 €
40 m²
2 pièces

Nos partenaires locaux
Iad France - Sylvain Dejoux vous propose : PAREMPUYRE - Résidence La Roseraie - T2 vendu loué avec balcon, parking et piscineSitué au sein de la résidence La Roseraie à Parempuyre, cet appartement T2 de 40 m², vendu loué, représente une belle opportunité pour un investissement locatif clé en main. Au 2e et dernier étage d'une copropriété agréable, il offre un cadre de vie lumineux et fonctionnel, avec une pièce de vie ouverte sur un balcon bien exposé, particulièrement apprécié des occupants. Son emplacement en étage élevé constitue également un vrai plus en termes de tranquillité. Une place de stationnement extérieure privative complète le bien. Autre atout recherché : la résidence dispose d'une piscine privée réservée aux résidents, renforçant l'attractivité locative de l'appartement. Déjà loué, ce bien permet de bénéficier d'un revenu immédiat, avec un loyer de 522 ¤ hors charges, auxquels s'ajoutent 37 ¤ de provisions sur charges. Prix de vente : 137 000 ¤Rentabilité brute : 4,6 %Côté emplacement, l'appartement profite d'un environnement pratique et bien desservi : ligne de bus 22 dans la rue, vers la gare de Blanquefort et le tram Ccommerces à 1,5 kmécole à 12 minutes à piedrocade à 8 kmUn bien idéal pour un investisseur souhaitant acquérir un appartement déjà loué, au sein d'une résidence recherchée, avec des prestations appréciées telles que balcon, stationnement et piscine. La presente annonce immobiliere vise 2 lots situés dans une copropriété de 310 lots au total et ne faisant l'objet d'aucune procédure en cours citée à l'article L. 721-1 du code de la construction et de l'habitation. Montant moyen mensuel de charges déclaré par le vendeur : 58.33¤ par mois (soit 700 ¤ annuel). Honoraires d'agence à la charge du vendeur. Information d'affichage énergétique sur ce bien : classe ENERGIE D indice 186 et classe CLIMAT B indice 7. Les informations sur les risques auxquels ce bien est exposé, y compris l'obligation légale de débroussaillement, sont disponibles sur le site Géorisques : http://www.georisques.gouv.fr.La présente annonce immobilière a été rédigée sous la responsabilité éditoriale de M Sylvain Dejoux mandataire indépendant en immobilier (sans détention de fonds), agent commercial de la SAS I@D France immatriculé au RSAC de Bordeaux sous le numéro 845108687, titulaire de la carte de démarchage immobilier pour le compte de la société I@D France SAS.Informations LOI ALUR : Soumis au régime de copropriété. Nombre de lots : 310. Quote part annuelle(moyenne) : 700 euros. Honoraires charge vendeur. (gedeon_6727_32878112)
Voir plus

Référence: 1974440
Bien en copropriété. Nombre de lots : 310. Charges de copropriété : 700 €.
Honoraires à la charge du vendeur.
Barème des honoraires
DPE
A
B
C
D
E
F
G
GES
A
B
C
D
E
F
G
Photo 1 - Appartement à PAREMPUYRE
Photo 1
Photo 2 - Appartement à PAREMPUYRE
Photo 2
Photo 3 - Appartement à PAREMPUYRE
Photo 3
Photo 4 - Appartement à PAREMPUYRE
Photo 4
Photo 5 - Appartement à PAREMPUYRE
Photo 5
Photo 6 - Appartement à PAREMPUYRE
Photo 6
Photo 7 - Appartement à PAREMPUYRE
Photo 7
Photo 8 - Appartement à PAREMPUYRE
Photo 8
Photo 9 - Appartement à PAREMPUYRE
Photo 9
Géorisques

Les informations sur les risques auxquels ce bien est exposé sont disponibles sur le site Géorisques : www.georisques.gouv.fr

Ce site est protégé par hCaptcha Politique de confidentialité et Conditions d’utilisation s’appliquent.

En poursuivant votre navigation sans modifier vos paramètres, vous acceptez l'utilisation de cookies susceptibles de réaliser des statistiques de visite. Cliquez ici pour plus d'informations