Bénéficiez des services de nos partenaires locaux soigneusement sélectionnés
pour vous accompagner dans votre parcours d'achat immobilier

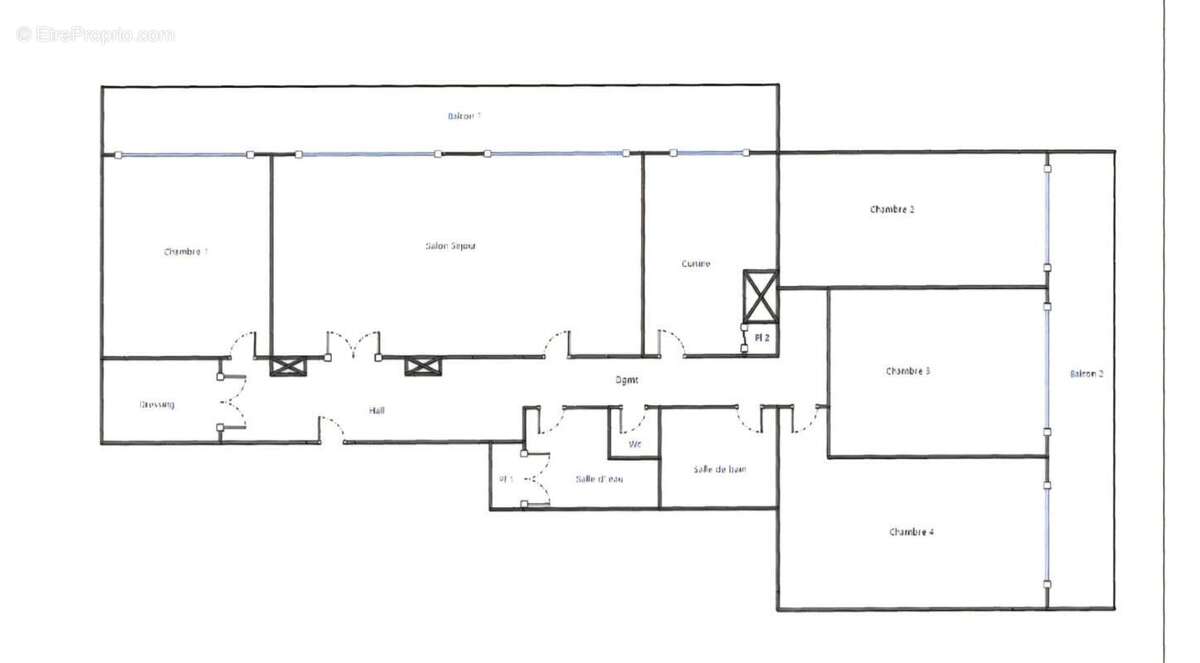
Appartement de T5 de 135 m2 À Vendre

— Caluire-Et-Cuire 69300 —
499 550 €
134 m²
5 pièces
parkingbalcon/terrasseascenseur

Nos partenaires locaux
Opportunité: Appartement T5 de 134 m² à Rénover.
Caluire-et-Cuire – Rue Coste à 10 minutes à pied du métro Cuire.

Situé au cœur d'un secteur résidentiel ORPI Bourg vous présente ce spacieux appartement de type 5 de 134 m², ce bien niché au 1er étage d'une copropriété sécurisée attend un projet de rénovation ambitieux pour révéler tout son éclat.

Un Potentiel Exceptionnel
Oubliez les contraintes et laissez place à votre imagination. Les volumes généreux permettent une redistribution totale des pièces selon vos besoins :

Vaste pièce de vie de 31,49 m2 baignée de lumière avec vue imprenable sur le parc( balcon de 17 m2).

Cuisine indépendante de 10m2 pouvant être ouverte sur la pièce de vie pour plus de convivialité.

Espace nuit : Quatre chambres spacieuses donnant sur balcon de 13,35 m2, salle de bains, WC et salle d'eau.

Annexes et Stationnement
Une cave : Un espace de stockage supplémentaire précieux pour compléter ce bien.

Stationnement : Parking libre au sein de la copropriété, un confort indispensable dans le secteur.

Vue Parc : Un véritable poumon vert visible depuis vos futures fenêtres.
Prêt à transformer ce potentiel en réalité ? Contactez ORPI Bourg pour organiser une visite .
Référence agence : 9601
Voir plus

Référence: VAOE-LQU-AVK
Bien en copropriété. Nombre de lots : 116. Charges de copropriété : 302 €.
Honoraires d'agence de 4% à la charge de l'acquéreur
DPE
A
B
C
D
E
F
G
GES
A
B
C
D
E
F
G
Appartement à CALUIRE-ET-CUIRE
Appartement à CALUIRE-ET-CUIRE
Appartement à CALUIRE-ET-CUIRE
Géorisques

Les informations sur les risques auxquels ce bien est exposé sont disponibles sur le site Géorisques : www.georisques.gouv.fr

Ce site est protégé par hCaptcha Politique de confidentialité et Conditions d’utilisation s’appliquent.

En poursuivant votre navigation sans modifier vos paramètres, vous acceptez l'utilisation de cookies susceptibles de réaliser des statistiques de visite. Cliquez ici pour plus d'informations