Bénéficiez des services de nos partenaires locaux soigneusement sélectionnés
pour vous accompagner dans votre parcours d'achat immobilier

PARIS 2ème - À VENDRE - Élégant Duplex de 3 Pièces - 92,22 m²

— Paris-2e 75002 —
1 150 000 €
92 m²
4 pièces

Nos partenaires locaux
Milan PETROVIC SARAIDARIAN vous propose ce bien :

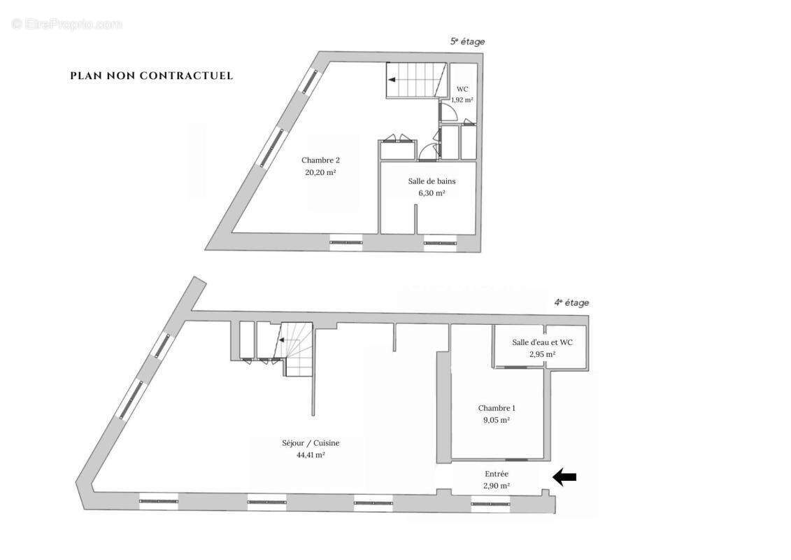
PARIS 2ème - À VENDRE - Élégant Duplex de 3 Pièces - 92,22 m²

Idéalement situé rue d'Aboukir, au cœur du quartier prisé de Montorgueil, à deux pas du métro Sentier, ce superbe appartement en duplex traversant de 92,22 m² habitables (87,73 m² Loi Carrez) refait par un architecte renommé occupe le 4ᵉ étage d'un bel immeuble entretenu.

Baigné de lumière et offrant une vue dégagée, il séduit par ses volumes généreux et son agencement harmonieux. L'appartement se compose d'une entrée, d'un vaste double séjour avec cuisine ouverte sur mesure, entièrement aménagée et équipée avec des prestations haut de gamme.

L'espace nuit comprend deux belles chambres, une salle de bain, une salle d'eau, ainsi que deux toilettes. De nombreux rangements complètent ce bien. Chauffage et eau chaude individuels au gaz.

Une adresse recherchée, un bien de charme et de caractère, à découvrir sans tarder.

DPE : E 308 kWh - E 65 kg

Bien soumis au statut de copropriété : 3/25 lots.
Quote part du budget prévisionnel annuel : 3 032 € (252 € mensuel)
Pas de procédure en cours.

Contact : Milan PETROVIC SARAIDARIAN
Tél : [Coordonnées masquées]
RSAC : 498 881 754 Paris EI

Les informations sur les risques auxquels ce bien est exposé sont disponibles sur le site Géorisques du gouvernement.\nLes informations sur les risques auxquels ce bien est exposé sont disponibles sur le site Géorisques : www.georisques.gouv.fr
Voir plus

Référence: MB6058814655
Bien en copropriété. Nombre de lots : 12. Charges de copropriété : 252 €.
DPE
A
B
C
D
E
F
G
GES
A
B
C
D
E
F
G
Appartement à PARIS-2E
Appartement à PARIS-2E
Appartement à PARIS-2E
Appartement à PARIS-2E
Appartement à PARIS-2E
Appartement à PARIS-2E
Appartement à PARIS-2E
Appartement à PARIS-2E
Appartement à PARIS-2E
Appartement à PARIS-2E
Appartement à PARIS-2E
Géorisques

Les informations sur les risques auxquels ce bien est exposé sont disponibles sur le site Géorisques : www.georisques.gouv.fr

Ce site est protégé par hCaptcha Politique de confidentialité et Conditions d’utilisation s’appliquent.

En poursuivant votre navigation sans modifier vos paramètres, vous acceptez l'utilisation de cookies susceptibles de réaliser des statistiques de visite. Cliquez ici pour plus d'informations