Bénéficiez des services de nos partenaires locaux soigneusement sélectionnés
pour vous accompagner dans votre parcours d'achat immobilier

Maison de plain-pied - Bois de Serres - DARDILLY

— Dardilly 69570 —
895 000 €
188 m²
8 pièces
parkingbalcon/terrassepiscine

Nos partenaires locaux
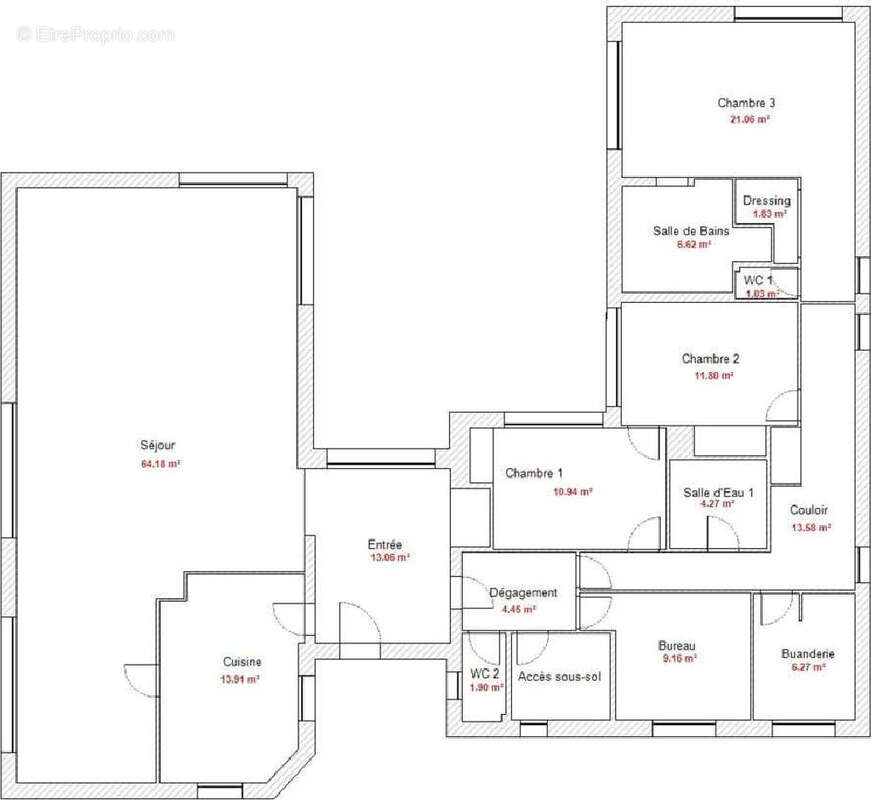
DARDILLY - En lisière du bois de Serres, découvrez cette maison d’architecte de plain-pied d’une superficie de 188 m2 habitables et utiles, édifiée sur un terrain de 1 142 m2 et élevée sur un sous-sol complet comprenant un garage de 48 m2, une salle de jeux avec espace de rangement, une cave, un cellier ainsi que des vides sanitaires.
Au sein d’un environnement privilégié, cette propriété se distingue par sa conception unique et une architecture pensée pour offrir une répartition des volumes en parfaite adéquation avec les modes de vie actuels. Elle s’articule autour d’une entrée centrale séparant harmonieusement les espaces de vie et l’espace nuit.
Toutes les pièces bénéficient d’une belle luminosité grâce à de larges ouvertures et baies coulissantes, prolongeant naturellement les espaces vers l’extérieur dans une parfaite continuité entre intérieur et extérieur.
L’espace de vie de 88 m2 se compose d’une cuisine équipée et d’un vaste espace de réception de 61 m2 réunissant salle à manger, séjour et salon, sublimé par une cheminée centrale, véritable signature architecturale du bien.
L’espace nuit comprend 3 chambres (possibilité 4), dont une suite parentale avec dressing et salle de bains complète avec baignoire et douche. Une seconde salle d’eau avec douche à l’italienne, deux toilettes indépendantes, un bureau, une buanderie et de nombreux rangements complètent cet espace.
Le sous-sol accueille un double garage avec portail motorisé et borne de recharge pour véhicule électrique, une pièce polyvalente, une cave, un cellier ainsi que les espaces techniques de la maison et de la piscine.
À l’extérieur, une terrasse prolonge les pièces et s’ouvre sur le jardin arboré et la piscine, dans un environnement résidentiel calme et sans vis-à-vis.
Les prestations sont de qualité : volets roulants électriques à commande centralisée, parquet massif, salles de bains modernes et intemporelles signées Porcelanosa, adoucisseur d’eau, thermostat dans chaque pièce, VMC double flux et pompe à chaleur. L’installation du système de chauffage est récente.
La qualité de la construction, sa bonne tenue dans le temps ainsi que l’entretien régulier réalisé, notamment sur la toiture et les façades, constituent un véritable gage de pérennité et témoignent de son état général.
Situation idéale : commerces accessibles à pied en 10 minutes, arrêt de bus, lignes Juniors et tram-train à 2 minutes, avec liaison rapide vers le métro Gorge de Loup et la gare de Saint-Paul.

Pour plus d’informations et une visite privée, Caroline GENEVOIS [Coordonnées masquées], Agent commercial RSAC no5[Coordonnées masquées]3
Voir plus

Référence: 1534
DPE
A
B
C
D
E
F
G
GES
A
B
C
D
E
F
G
Maison à DARDILLY
Maison à DARDILLY
Maison à DARDILLY
Maison à DARDILLY
Maison à DARDILLY
Maison à DARDILLY
Maison à DARDILLY
Maison à DARDILLY
Maison à DARDILLY
Maison à DARDILLY
Maison à DARDILLY
Maison à DARDILLY
Maison à DARDILLY
Maison à DARDILLY
Maison à DARDILLY
Maison à DARDILLY
Maison à DARDILLY
Géorisques

Les informations sur les risques auxquels ce bien est exposé sont disponibles sur le site Géorisques : www.georisques.gouv.fr

Ce site est protégé par hCaptcha Politique de confidentialité et Conditions d’utilisation s’appliquent.

En poursuivant votre navigation sans modifier vos paramètres, vous acceptez l'utilisation de cookies susceptibles de réaliser des statistiques de visite. Cliquez ici pour plus d'informations