Bénéficiez des services de nos partenaires locaux soigneusement sélectionnés
pour vous accompagner dans votre parcours d'achat immobilier

Appartement de 101m2 situé à 300m du métro Saint-Georges

— Paris-9e 75009 —
1 345 000 €
101 m²
5 pièces

Nos partenaires locaux
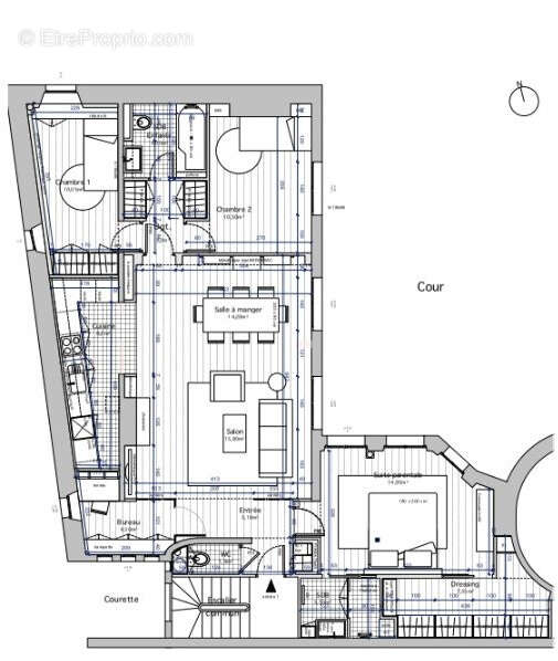
Exclusivité / Quartier Saint-Georges - Bossé & Mona Immobilier vous propose à la vente ce bel appartement de 101m2, situé rue Jean-Baptiste Pigalle, à 300 du métro Saint-Georges.
Le bien, au calme, sur cour, est situé au 3ème étage sans ascenseur. Il se compose d'une entrée, d'un double séjour de 38m2 exposé Est avec cuisine ouverte, d'une chambre parentale de 15m2 avec une salle d'eau et un dressing de 6m2, de 2 chambres de 11m2 et 9m2, d'une salle de bains avec coin buanderie et WC et d'un WC indépendant.
Le ravalement de l'immeuble et la réfection de la toiture datent de 2023. Le DPE est D. Local vélos dans l'immeuble.
L'appartement dispose de fenêtres en double vitrage, de parquet, de moulures, d'une cheminée, de nombreux rangements, d'une hauteur sous plafond de 2.85m et d'une cave de 6m2.
Les charges de 150 euros / mois incluent notamment l'eau et l'entretien des parties communes. Le chauffage est individuel et électrique.
Nous sommes à votre disposition si vous souhaitez vendre ou faire estimer un bien immobilier à Paris ou dans l'Ouest parisien.
Voir plus

Honoraires d'agence de 3.46% à la charge de l'acquéreur
Barème des honoraires
DPE
A
B
C
D
E
F
G
GES
A
B
C
D
E
F
G
Appartement à PARIS-9E
Appartement à PARIS-9E
Appartement à PARIS-9E
Appartement à PARIS-9E
Appartement à PARIS-9E
Appartement à PARIS-9E
Appartement à PARIS-9E
Appartement à PARIS-9E
Appartement à PARIS-9E
Appartement à PARIS-9E
Appartement à PARIS-9E
Appartement à PARIS-9E
Appartement à PARIS-9E
Appartement à PARIS-9E
Appartement à PARIS-9E
Géorisques

Les informations sur les risques auxquels ce bien est exposé sont disponibles sur le site Géorisques : www.georisques.gouv.fr

Ce site est protégé par hCaptcha Politique de confidentialité et Conditions d’utilisation s’appliquent.

En poursuivant votre navigation sans modifier vos paramètres, vous acceptez l'utilisation de cookies susceptibles de réaliser des statistiques de visite. Cliquez ici pour plus d'informations