Bénéficiez des services de nos partenaires locaux soigneusement sélectionnés
pour vous accompagner dans votre parcours d'achat immobilier

3 pièces avec vue lac et métro à 5 min

— Creteil 94000 —
273 000 €
72 m²
3 pièces
parkingbalcon/terrasse

Nos partenaires locaux
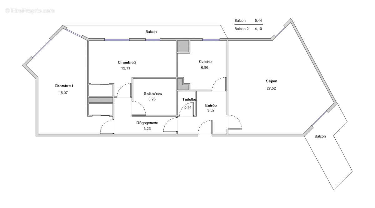
3 PIÈCES EN FRONT DE LAC Allée de la Toison d’Or. Dans un petit immeuble idéalement situé face au lac, découvrez ce beau 3 pièces offrant une vue dégagée et un cadre de vie recherché. Il se compose d’une entrée, d’un séjour lumineux de 27,52 m2 ouvrant sur un balcon plein lac, d’une cuisine équipée, ainsi que de deux grandes chambres (15,07 m2 et 12,11 m2), dont l’une avec accès au balcon. Salle d’eau et WC séparé. Les plus : box double, cave, tableau électrique récent, porte palière blindée. À deux pas du centre commercial Créteil Soleil et à 5 minutes à pied du métro Créteil?Préfecture, dans un environnement calme et verdoyant.
Voir plus

Bien en copropriété. Nombre de lots : 49. Charges de copropriété : 4434 €.
Honoraires d'agence de 5% à la charge de l'acquéreur
Barème des honoraires
DPE
A
B
C
D
E
F
G
GES
A
B
C
D
E
F
G
Appartement à CRETEIL
Appartement à CRETEIL
Appartement à CRETEIL
Appartement à CRETEIL
Appartement à CRETEIL
Appartement à CRETEIL
Appartement à CRETEIL
Appartement à CRETEIL
Appartement à CRETEIL
Appartement à CRETEIL
Appartement à CRETEIL
Géorisques

Les informations sur les risques auxquels ce bien est exposé sont disponibles sur le site Géorisques : www.georisques.gouv.fr

Ce site est protégé par hCaptcha Politique de confidentialité et Conditions d’utilisation s’appliquent.

En poursuivant votre navigation sans modifier vos paramètres, vous acceptez l'utilisation de cookies susceptibles de réaliser des statistiques de visite. Cliquez ici pour plus d'informations