Bénéficiez des services de nos partenaires locaux soigneusement sélectionnés
pour vous accompagner dans votre parcours d'achat immobilier

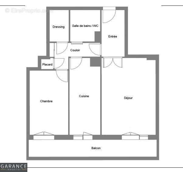
Appartement 53 m² à Paris-12e

— Paris-12e 75012 —
500 000 €
53 m² / 10 m²
2 pièces
parkingbalcon/terrasseascenseur

Nos partenaires locaux
Métro Michel Bizot, proche de tous commerces, des écoles et du bois de Vincennes - Rue de Picpus - Dans une résidence de standing avec GARDIEN et accès PMR, un appartement avec une luminosité et vue exceptionnelle, en étage avec ascenseur, avec un BALCON/TERRASSE de plus de 10m2 très ensoleillée avec vue dégagée sur la coulée verte et SANS AUCUN VIS A VIS, très calme et modulable (pas de mur porteurs) de 2 pièces principales, comprenant une entrée, un séjour, une cuisine indépendante équipée (ouverture possible sur le séjour pour faire un espace de presque 30m2), d'une chambre, d'un dressing, d'une salle de bains avec WC (possibilité de les séparer). Nombreux rangements intégrés, faibles charges. Une cave saine complète ce bien. Local vélos dans l'immeuble. Un box en sus dans l'immeuble accessible par ascenseur.

Les informations sur les risques auxquels ce bien est exposé sont disponibles sur le site Géorisques : www.georisques.gouv.fr
Voir plus

Référence: GARD4733G
Honoraires à la charge du vendeur.
Barème des honoraires
DPE
A
B
C
D
E
F
G
GES
A
B
C
D
E
F
G
Appartement à PARIS-12E
Appartement à PARIS-12E
Appartement à PARIS-12E
Appartement à PARIS-12E
Appartement à PARIS-12E
Appartement à PARIS-12E
Appartement à PARIS-12E
Appartement à PARIS-12E
Appartement à PARIS-12E
Géorisques

Les informations sur les risques auxquels ce bien est exposé sont disponibles sur le site Géorisques : www.georisques.gouv.fr

Ce site est protégé par hCaptcha Politique de confidentialité et Conditions d’utilisation s’appliquent.

En poursuivant votre navigation sans modifier vos paramètres, vous acceptez l'utilisation de cookies susceptibles de réaliser des statistiques de visite. Cliquez ici pour plus d'informations