Bénéficiez des services de nos partenaires locaux soigneusement sélectionnés
pour vous accompagner dans votre parcours d'achat immobilier

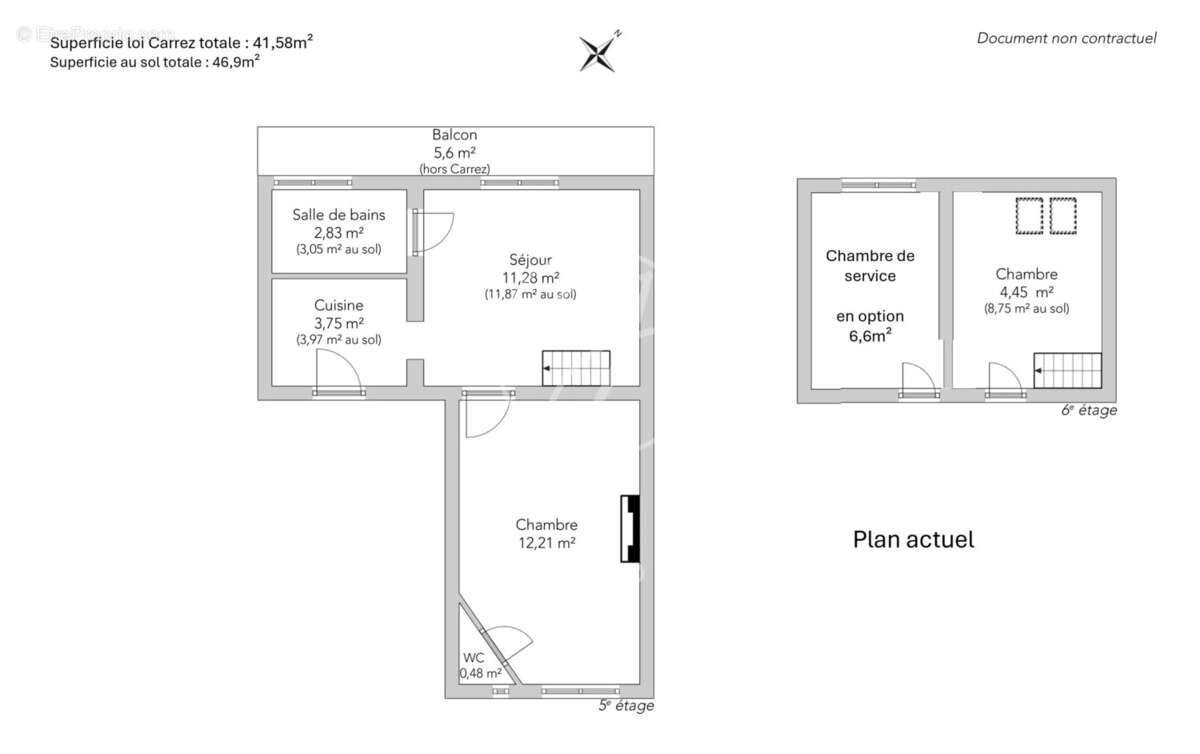
Paris 9e - SAINT-GEORGES / SOPI - Appartement à vendre - 2 Pièces - 41,58m² Carrez - 46,9m² au sol - 1 Chambre - Balcon.

— Paris-9e 75009 —
540 000 €
41 m²
3 pièces
balcon/terrasse

Nos partenaires locaux
Au sein d'un immeuble de 1830 à la magnifique façade fraichement ravalée, appartement trois pièces de 41,56m² loi Carrez, 46,9m² au sol aux cinquième et sixième étages par escalier avec balcon terrasse.

Ce bien en très bon état et au charme ancien préservé comprend : une cuisine semi ouverte, un double séjour traversant donnant sur un large balcon filant de 5,60m² aux vues dégagées, une salle de bains avec toilettes. A l'étage, une chambre et une chambre de service à rénover..

Vous serez séduit par son environnement recherché en plein cœur du 9e arrondissement, son espace extérieur et son plan compact. Rare.
EXCLUSIVITÉ
Voir plus

Référence: 3558/3626MARDUP
Barème des honoraires
DPE
A
B
C
D
E
F
G
GES
A
B
C
D
E
F
G
Appartement à PARIS-9E
Appartement à PARIS-9E
Appartement à PARIS-9E
Appartement à PARIS-9E
Appartement à PARIS-9E
Appartement à PARIS-9E
Appartement à PARIS-9E
Appartement à PARIS-9E
Appartement à PARIS-9E
Appartement à PARIS-9E
Appartement à PARIS-9E
Appartement à PARIS-9E
Appartement à PARIS-9E
Appartement à PARIS-9E
Appartement à PARIS-9E
Géorisques

Les informations sur les risques auxquels ce bien est exposé sont disponibles sur le site Géorisques : www.georisques.gouv.fr

Ce site est protégé par hCaptcha Politique de confidentialité et Conditions d’utilisation s’appliquent.

En poursuivant votre navigation sans modifier vos paramètres, vous acceptez l'utilisation de cookies susceptibles de réaliser des statistiques de visite. Cliquez ici pour plus d'informations