Bénéficiez des services de nos partenaires locaux soigneusement sélectionnés
pour vous accompagner dans votre parcours d'achat immobilier

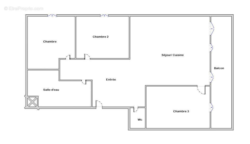
Gratte-Ciel - Villeurbanne 4 pièces 60,83m2 - Balcon

— Villeurbanne 69100 —
219 000 €
60 m²
4 pièces
balcon/terrasseascenseur

Nos partenaires locaux
Votre agence Guy Hoquet l'Immobilier Lyon 6e vous propose en exclusivité : Au coeur du quartier des Gratte-Ciel, au 5e étage avec ascenseur, un charmant appartement type 4 de 60,83m2 Carrez, situé dans une résidence sécurisée, avec ascenseur. L'appartement vous offre une belle vue dégagée sur les Gratte-Ciel et une belle luminosité. Parfait état, refait à neuf. Il se compose d'une entrée desservant un bel espace de vie avec coin séjour et une cuisine moderne, entièrement équipée. Côté nuit, trois belles chambres, une salle d'eau, W.C. séparés. Vous disposez d'un spacieux balcon, exposé plein Sud, vous offrant une belle vue dégagée. Possibilité d'acquérir un garage dans la résidence, rare à la vente. Les plus de cet appartement sont : son excellent état qui permet un emménagement ou une location, collocation, sans aucun travaux, l'espace extérieur idéalement exposé et son excellent emplacement de qualité, proche de toutes les commodités. Volets électriques, fenêtres récentes PVC double vitrage. Métro ligne A - Gratte-Ciel au pied de la résidence. Plus d'informations, nous contacter. GUY HOQUET L'IMMOBILIER Lyon 6e l'agence spécialiste de l'immobilier Lyonnais Achat/vente/location/gestion d'appartements, maisons et terrains. Estimation offerte sur simple demande. https://www.guy-hoquet.com/agence-immobiliere/lyon-6-rhone Copropriété de 402 lots - dont 219 lots habitation. Charges annuelles : 3186 euros. AMBRE FERCHICHE TOMASSINI (EI) Agent Commercial - Numéro RSAC : - .
Voir plus

Bien en copropriété. Nombre de lots : 402. Charges de copropriété : 3186 €.
Honoraires à la charge du vendeur.
DPE
A
B
C
D
E
F
G
GES
A
B
C
D
E
F
G
Appartement à VILLEURBANNE
Appartement à VILLEURBANNE
Appartement à VILLEURBANNE
Appartement à VILLEURBANNE
Appartement à VILLEURBANNE
Appartement à VILLEURBANNE
Appartement à VILLEURBANNE
Appartement à VILLEURBANNE
Géorisques

Les informations sur les risques auxquels ce bien est exposé sont disponibles sur le site Géorisques : www.georisques.gouv.fr

Ce site est protégé par hCaptcha Politique de confidentialité et Conditions d’utilisation s’appliquent.

En poursuivant votre navigation sans modifier vos paramètres, vous acceptez l'utilisation de cookies susceptibles de réaliser des statistiques de visite. Cliquez ici pour plus d'informations