Bénéficiez des services de nos partenaires locaux soigneusement sélectionnés
pour vous accompagner dans votre parcours d'achat immobilier

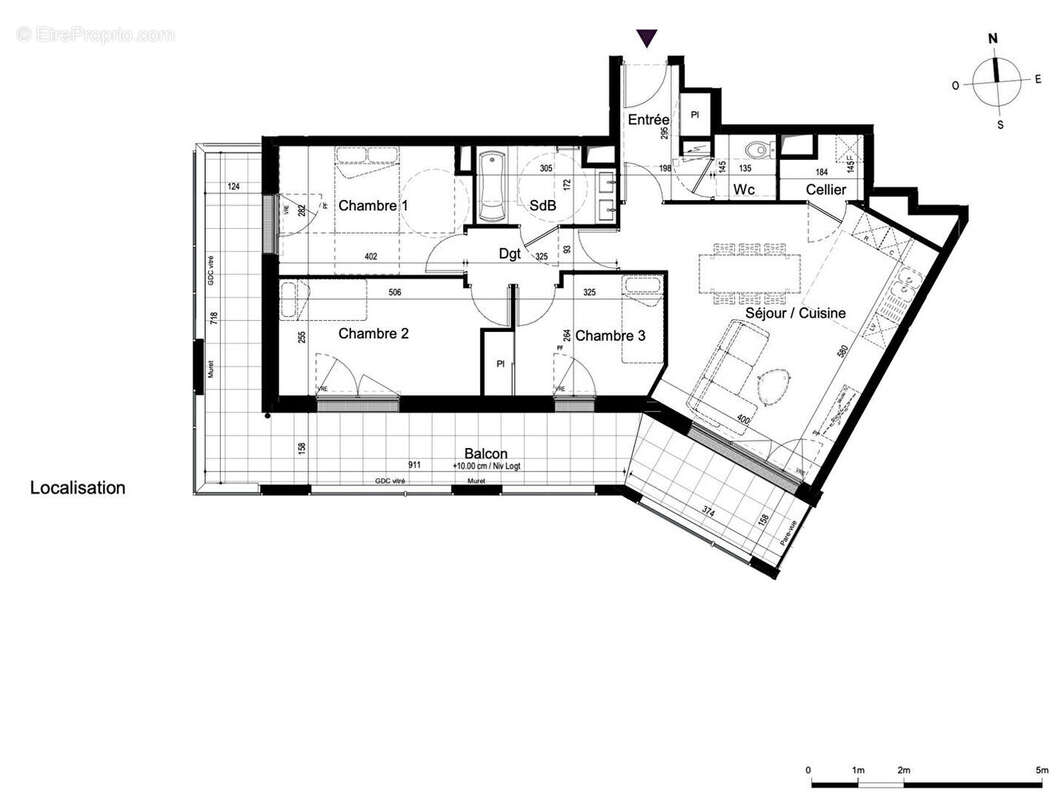
SAINT-MALO LA GARE / MEDIATHEQUE - Appartement 4 pièces avec grand balcon de 28 m2 et deux stationnements privatifs en sous-sol

— Saint-Malo 35400 —
435 000 €
77 m²
4 pièces
parkingbalcon/terrasseascenseur

Nos partenaires locaux
SAINT-MALO LA GARE / MEDIATHEQUE - Appartement 4 pièces avec grand balcon de 28 m2 et deux stationnements privatifs en sous-sol A proximité immédiate des transports, commerces et services, découvrez ce superbe appartement 4 pièces localisé dans une résidence neuve de standing alliant confort, modernité et fonctionnalité. Implantée le long d'un mail piéton paysager, la résidence offre un cadre de vie agréable et verdoyant grâce à son jardin partagé, clos et sécurisé. Elle se compose de plusieurs bâtiments contemporains aux prestations soignées, avec ascenseurs, stationnements en sous-sol et local vélos. Situé au deuxième étage, cet appartement spacieux et lumineux se distingue par une distribution optimisée : . un vaste séjour baigné de lumière grâce à de larges ouvertures, . trois chambres confortables, . une salle de bains aménagée avec faïence toute hauteur et mobilier équipé, . un grand balcon de 28 m² exposé sud-ouest, idéal pour profiter pleinement des beaux jours. Les prestations intérieures sont de qualité : volets roulants motorisés, chauffage performant avec thermostat d'ambiance, ainsi que des solutions énergétiques innovantes incluant des panneaux solaires. Deux places de stationnement en sous-sol complètent ce bien. Vous bénéficiez d'un emplacement privilégié dans un environnement dynamique à environ 20 minutes à pied de la plage du Sillon et d'Intra-Muros. La gare est accessible en seulement 10 minutes: Rennes est à 45 minutes en train et Paris à environ 2h15. Copropriété de 221 lots - dont 82 lots habitation.
Voir plus

Référence: 2021184
Bien en copropriété. Nombre de lots : 221.
Honoraires à la charge du vendeur.
Barème des honoraires
Appartement à SAINT-MALO
Appartement à SAINT-MALO
Appartement à SAINT-MALO
Appartement à SAINT-MALO
Appartement à SAINT-MALO
Appartement à SAINT-MALO
Appartement à SAINT-MALO
Appartement à SAINT-MALO
Appartement à SAINT-MALO
Géorisques

Les informations sur les risques auxquels ce bien est exposé sont disponibles sur le site Géorisques : www.georisques.gouv.fr

Ce site est protégé par hCaptcha Politique de confidentialité et Conditions d’utilisation s’appliquent.

En poursuivant votre navigation sans modifier vos paramètres, vous acceptez l'utilisation de cookies susceptibles de réaliser des statistiques de visite. Cliquez ici pour plus d'informations