Dernier etage

— Toulouse 31300 —
650 000 €
107 m²
5 pièces
balcon/terrasseascenseur

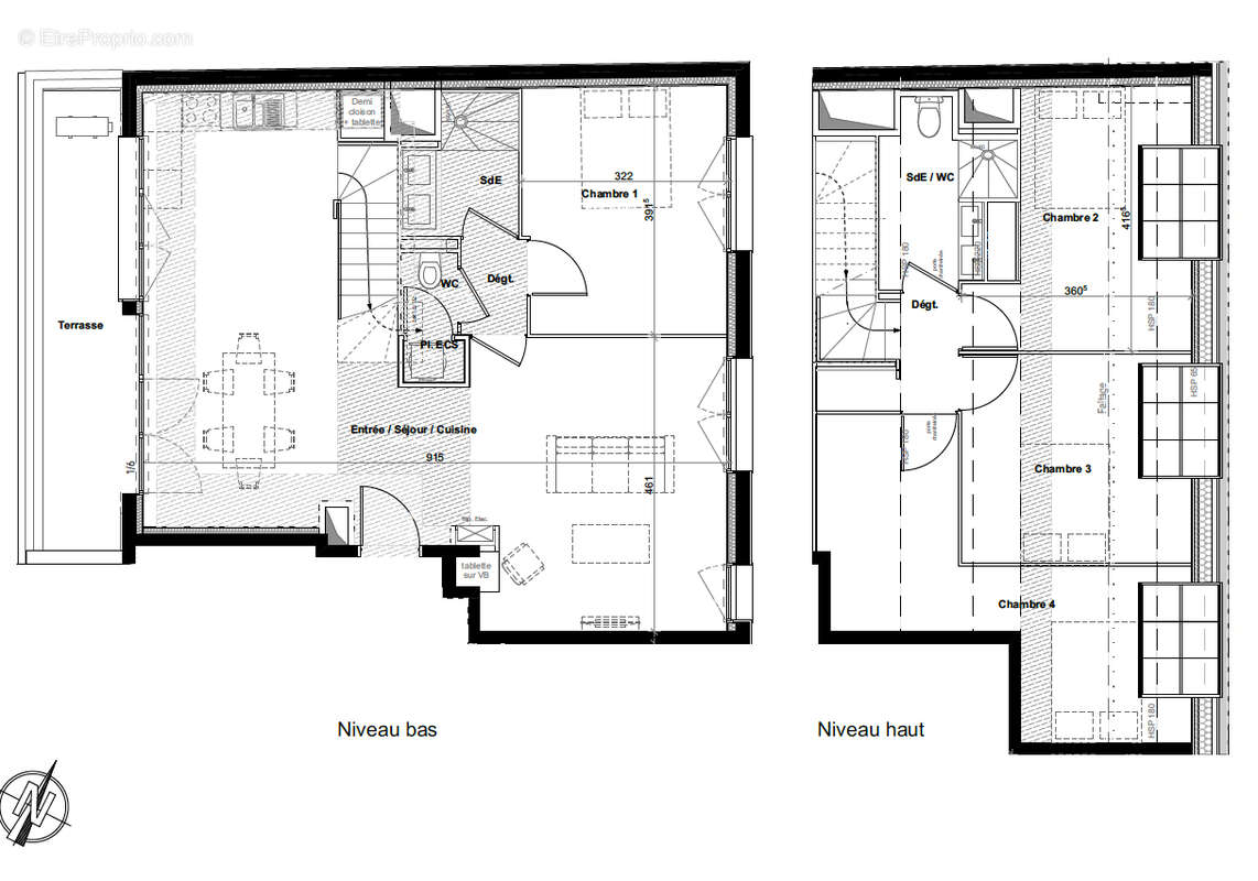
Toulouse Fer à cheval / St Cyprien, Découvrez une adresse d'exception à Toulouse au coeur du quartier emblématique de Saint-Cyprien - Fer à Cheval. 100,07m2 en carrez pour 107,84m2 au sol Appartement 5 pièces en duplex avec sur le niveau bas un séjour cuisine traversant de 44,62m2 sur terrasse de 9,72m2 exposée ouest, 1 chambre avec salle d'eau privative pour 15,89m2 et un wc indépendant. A l'étage on retrouve une salle d'eau-wc et 3 chambres de 10,47,10,03 et 10,02m2. LABEL RT2012 - prestations de qualité L'appartement vous offre un cadre de vie privilégié dans l'un des plus anciens quartiers de la Ville Rose. A quelques pas de la Prairie des Filtres et des quais de la Garonne, vous vivrez dans une ambiance villageoise proche de toutes les commodités. Marché, espaces verts et hypercentre sont accessibles à pied ou à vélo. Belle copropriété : façade en briques rouges, menuiseries élégantes et grands espaces lumineux. Idéalement située cette adresse prestigieuse offre un cadre de vie privilégié au coeur de l'un des quartiers les plus recherchés de Toulouse. Entre l'effervescence culturelle de Saint-Cyprien et la sérénité des bords de Garonne, profitez d'un emplacement stratégique où tout est accessible à pied. Une vie de quartier dynamique et authentique : le quotidien se facilite grâce à une offre de commerces et services d'une rare densité : commerces de proximité : Boulangeries artisanales, supermarchés (Casino, Carrefour City) et boutiques indépendantes jalonnent les allées. Marché Saint-Cyprien : A moins de 5 minutes à pied, retrouvez les célèbres halles couvertes et leur marché de plein vent, véritables institutions toulousaines. Loisirs et Culture : Proximité immédiate du Musée des Abattoirs, du Théâtre Garonne et de la Prairie des Filtres pour vos moments de détente en plein air. Carte Scolaire : Un environnement idéal pour les familles : l'adresse bénéficie d'une sectorisation scolaire de qualité, couvrant tous les cycles : Écoles maternelles et élémentaires : Groupe scolaire Molière ou Patte d'Oie (selon découpage précis). Secondaire : Collège Clémence Isaure et Lycée Déodat de Séverac ou Arènes, reconnus pour leurs filières d'excellence. Enseignement Supérieur : Accès rapide à l'Université Toulouse Capitole et aux écoles d'art environnantes. Transports : Une mobilité totale . Bénéficiez d'une connexion parfaite avec l'ensemble de la métropole : Métro : Station Saint-Cyprien République (Ligne A) à seulement 600 mètres, vous plaçant à 2 stations de la Place du Capitole. Tramway :T1 Fer à Cheval à 150m Bus : Lignes structurantes (L4, 34, 45, 66) au pied de l'immeuble pour un accès direct au centre-ville et aux pôles d'activités. Mobilités douces : Stations VélôToulouse à proximité et aménagement du Réseau Express Vélo (REV) sur les allées Charles de Fitte pour des déplacements sécurisés et écologiques. Possibilité d'achat de parking en sus du prix (nous consulter) BIEN NON SOUMIS AU DPE Pour tout renseignement : Féänor MAMEO [Coordonnées masquées]
Voir plus

Référence: SIE-51
Honoraires à la charge du vendeur.
Appartement à TOULOUSE
Appartement à TOULOUSE
Appartement à TOULOUSE
Appartement à TOULOUSE
Appartement à TOULOUSE
Géorisques

Les informations sur les risques auxquels ce bien est exposé sont disponibles sur le site Géorisques : www.georisques.gouv.fr

Ce site est protégé par hCaptcha Politique de confidentialité et Conditions d’utilisation s’appliquent.

En poursuivant votre navigation sans modifier vos paramètres, vous acceptez l'utilisation de cookies susceptibles de réaliser des statistiques de visite. Cliquez ici pour plus d'informations