Bénéficiez des services de nos partenaires locaux soigneusement sélectionnés
pour vous accompagner dans votre parcours d'achat immobilier

Maison neuve

— Toulouse 31500 —
394 000 €
93 m² / 18 m²
4 pièces
parkingbalcon/terrassejardin

Nos partenaires locaux
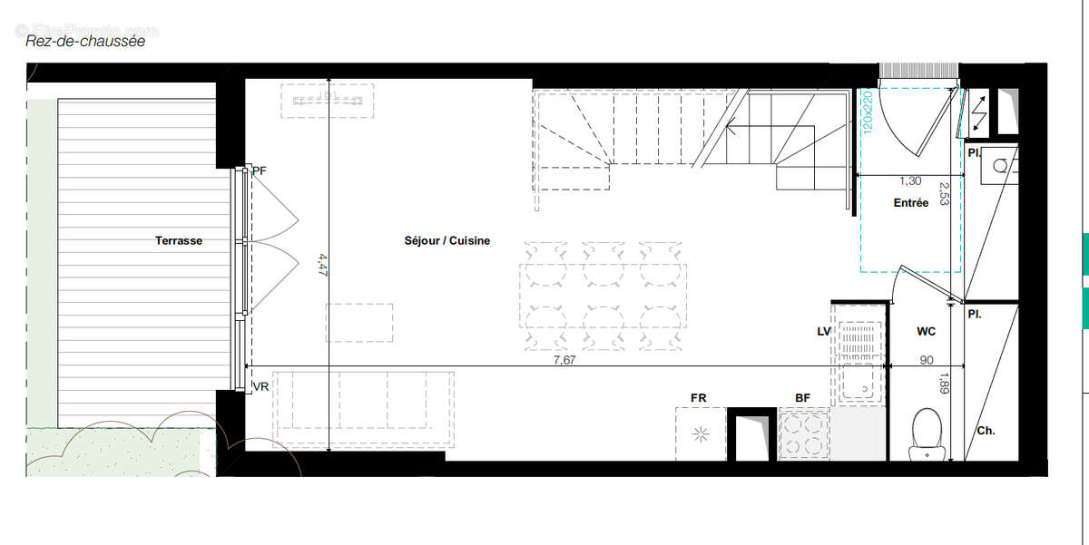
Toulouse Argoulets, Maison triplex aux abords du parc des Argoulets. Composée pour la partie basse d'une entrée avec placard, un wc, un séjour cuisine de 30,11m2 exposé sud sur terrasse de 7,51m2 et jardinet de 18m2. Le premier étage accueille 2 chambres de 10,33 et 12,60m2, une salle de bain-wc et une buanderie. La dernière chambre de 11,23m2 se trouve au 2ème étage. 2 places de parkings extérieures. Prestations soignées : Label RT2012, isolation renforcée, chaudière gaz condensation, carrelage 45*45 au sol, parquet dans les chambres, volets roulants motorisés ..... TVA 5,50% sous conditions de ressources destinée à la résidence principale. BIEN NON SOUMIS AU DPE Pour tout renseignement : Féänor MAMEO [Coordonnées masquées]
Voir plus

Référence: INS-V02
Maison à TOULOUSE
Maison à TOULOUSE
Maison à TOULOUSE
Maison à TOULOUSE
Maison à TOULOUSE
Maison à TOULOUSE
Maison à TOULOUSE
Maison à TOULOUSE
Maison à TOULOUSE
Maison à TOULOUSE
Maison à TOULOUSE
Géorisques

Les informations sur les risques auxquels ce bien est exposé sont disponibles sur le site Géorisques : www.georisques.gouv.fr

Ce site est protégé par hCaptcha Politique de confidentialité et Conditions d’utilisation s’appliquent.

En poursuivant votre navigation sans modifier vos paramètres, vous acceptez l'utilisation de cookies susceptibles de réaliser des statistiques de visite. Cliquez ici pour plus d'informations