Bénéficiez des services de nos partenaires locaux soigneusement sélectionnés
pour vous accompagner dans votre parcours d'achat immobilier

Grande terrasse

— Toulouse 31400 —
495 000 €
80 m²
3 pièces
parkingbalcon/terrasseascenseur

Nos partenaires locaux
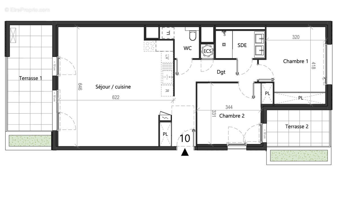
Toulouse Demoiselle - Busca Appartement de standing avec 1 terrasse de 15,22m2. En 2ème étage sur 5 cet appartement développe un séjour cuisine de 37,51m2 sur terrasse de 15,22m2 exposée sud, une salle d'eau, un wc indépendant, 2 chambres de 13,34 et 12,14m2 et une seconde terrasse de 4,92m2 1 place de parking double (une place derrière l'autre) accessible depuis un monte voiture. Label RT2012, isolation renforcée, parquet contre-collé au sol, peinture lisse, volets roulants électriques, pompe à chaleur air, ballon thermodynamique ...... Quartier résidentiel très apprécié, le Busca abrite plusieurs sites incontournables tel que le jardin des plantes, le muséum d'histoire naturelle, le centre multiculturel le Quai des Savoirs ainsi que l'emblématique théâtre Sorano. Il offre d'agréables ballades au fil des rues, où artisans locaux et petites boutiques viennent compléter cet environnement exceptionnel. L'appartement est face aux Cales de Radoub et offre une vue imprenable sur cet ensemble classé monument historique ainsi que sur le Canal du Midi. Découvrez un environnement d'exception alliant sérénité résidentielle et effervescence urbaine. Ce quartier prisé offre une qualité de vie incomparable, idéale pour les familles et les citadins exigeants. Éducation et Carte Scolaire : L'Excellence à Portée de Main Le secteur bénéficie d'une offre éducative de premier plan, garantissant un parcours d'excellence de la maternelle au lycée : Écoles maternelles et primaires : Sectorisation sur le groupe scolaire public Demoiselles, reconnu pour son cadre agréable. Enseignement Secondaire : Proximité immédiate du réputé Collège et Lycée Bellevue, ainsi que de l'ensemble scolaire privé Saint-Joseph. Enseignement Supérieur : Accès rapide au quartier des facultés (Université Paul Sabatier) et aux grandes écoles du sud toulousain. Commerces et Services : Un Quotidien Facilité Vivre ici, c'est profiter d'une vie de quartier authentique où tout se fait à pied : Commerces de bouche : Boulangeries artisanales, primeurs, boucheries et supermarchés de proximité (Casino, Carrefour City) jalonnent l'avenue. Marchés : Accès direct au Marché de la place de l'Ormeau et à celui du Cherche-Midi. Loisirs et Culture : A quelques minutes de la place de l'Ormeau et du Jardin des Plantes pour vos sorties dominicales. Mobilité et Transports : Une Connectivité Optimale Le quartier profite d'une desserte actuelle complète et de projets d'envergure : Bus à haut niveau de service : Lignes L7 et L9 (accès direct et rapide au centre-ville, Place Esquirol et François Verdier). Métro : Station Saouzelong (Ligne B) accessible en moins de 10 minutes à pied. Mobilité douce : Stations VélôToulouse au pied de l'immeuble et pistes cyclables sécurisées le long du Canal du Midi. BIEN NON SOUMIS AU DPE Pour tout renseignement : Féänor MAMEO [Coordonnées masquées]
Voir plus

Référence: VDE-07
Appartement à TOULOUSE
Appartement à TOULOUSE
Appartement à TOULOUSE
Appartement à TOULOUSE
Géorisques

Les informations sur les risques auxquels ce bien est exposé sont disponibles sur le site Géorisques : www.georisques.gouv.fr

Ce site est protégé par hCaptcha Politique de confidentialité et Conditions d’utilisation s’appliquent.

En poursuivant votre navigation sans modifier vos paramètres, vous acceptez l'utilisation de cookies susceptibles de réaliser des statistiques de visite. Cliquez ici pour plus d'informations