Bénéficiez des services de nos partenaires locaux soigneusement sélectionnés
pour vous accompagner dans votre parcours d'achat immobilier

Grande terrasse

— Colomiers 31770 —
364 600 €
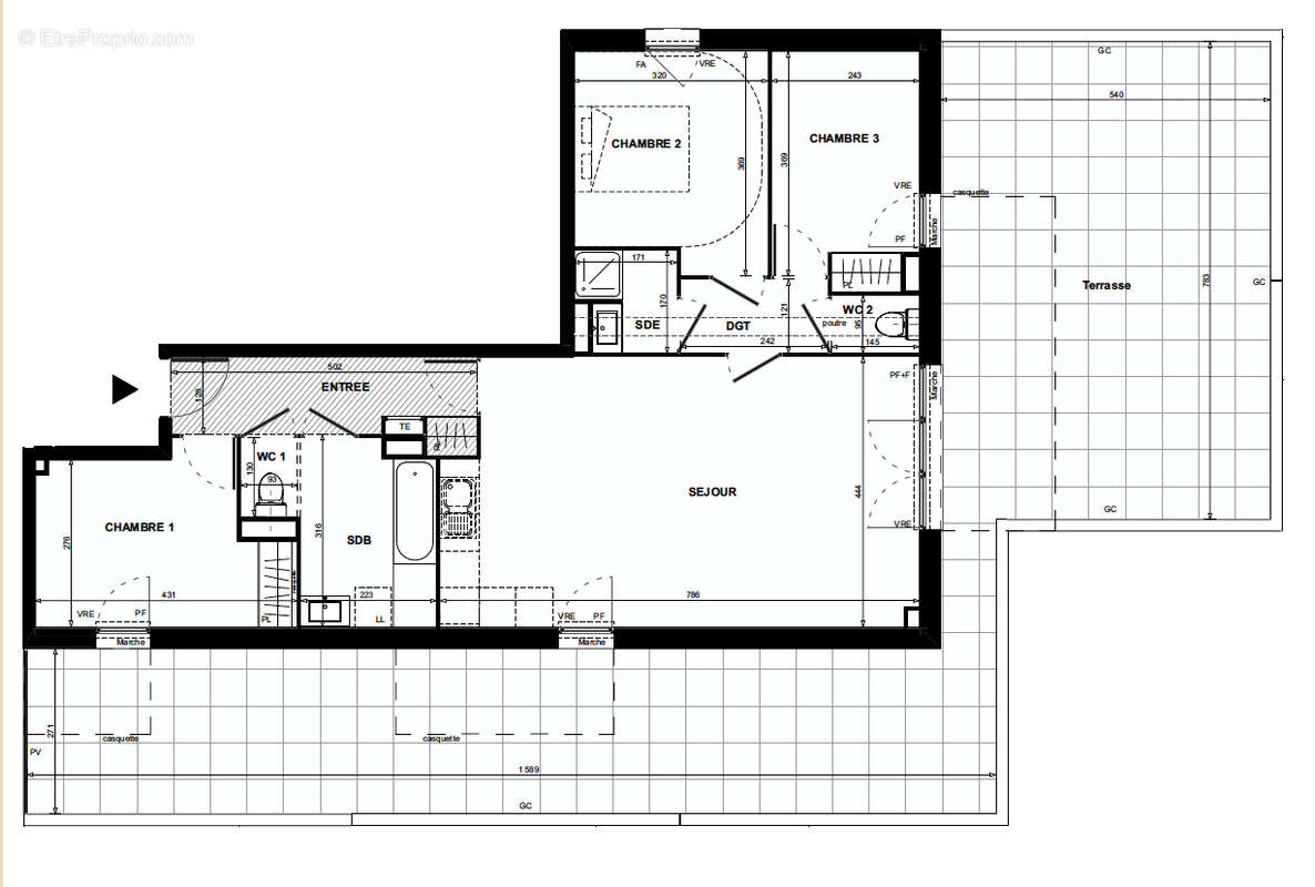
85 m²
4 pièces
parkingbalcon/terrasseascenseur

Nos partenaires locaux
Colomiers, GRANDE TERRASSE DE 87,36m2 En dernier étage sur 4 venez découvrir cet appartement T'4 avec une grande terrasse. Composé d'une entrée avec placard, séjour cuisine de 33,69m2 exposé sud-ouest sur terrasse de 87,36m2, une salle de bain-wc, un wc, 2 chambres de 10,86 et 9,11m2 et une suite parentale de 13,55mé salle d'eau incluse. 2 places de parking en sous-sol. TVA 5,50% destiné à la résidence principale sous conditions de ressources zone ANRU (voir en agence) Prestations soignées : carrelage 45*45 au sol, parquet flottant dans les chambres, eau chaude thermodynamique, chauffage électrique .... Situé à moins de 10 min à pied du coeur historique, cet appartement vous assure quiétude à vivre au quotidien, mais aussi connexion aisée à la ville, à son animation et à ses nombreuses commodités : commerces, marché, écoles, infrastructures sportives et culturelles ? Ilcest aussi localisé à 4 min en bus, ou à 16 min à pied, de la gare de Colomiers dont le parvis accueillera prochainement le terminus de la 3e ligne de métro. A la clé : une desserte optimale vers le coeur de Toulouse et les principaux bassins d'emploi de l'est de la métropole ! cette adresse bénéficie d'un environnement privilégié, idéal pour les familles et les actifs de la zone aéronautique. Entre dynamisme urbain et sérénité, ce secteur offre une qualité de vie remarquable avec toutes les commodités accessibles au quotidien. ? Vie Scolaire : De la Maternelle au Lycée L'adresse est idéalement sectorisée pour offrir un parcours éducatif complet à moins de 10 minutes à pied ou à vélo : Écoles maternelles et primaires : Groupe scolaire Jean Macé et Lamartine. Enseignement secondaire : Collège Jean Macé et Lycée International Victor Hugo (réputé pour ses sections bilingues). Enseignement supérieur : Proximité immédiate de l'école de commerce et de management. ?? Commerces et Services : Tout à Portée de Main Le quartier profite de la vitalité commerciale du centre-ville de Colomiers : A quelques minutes : Supermarchés (Casino, Aldi), pharmacies, boulangeries et banques. Marché de plein vent : Profitez des produits locaux sur la place de la mairie (jeudi et samedi matin). Loisirs : Proximité immédiate de la Médiathèque Pavillon Blanc, du complexe cinématographique et de l'Espace Nautique Jean Vauchère. ? Transports et Mobilité : Une Connectivité Optimale Le secteur est parfaitement desservi pour faciliter vos déplacements vers Toulouse et les pôles d'activités (Airbus, ATR) : Bus (Tisséo) : Plusieurs lignes à proximité immédiate (L3, 21, 32, 63) reliant le métro toulousain et les zones d'emplois. Train (SNCF) : Gare de Colomiers (Ligne C) accessible rapidement, permettant de rejoindre la station Arènes en moins de 15 minutes. Accès Routier : Accès direct à la RN124 (axe Toulouse-Auch) et au périphérique. Perspectives : Connexion facilitée à la future Ligne C du métro (prévue pour 2028), renforçant encore l'attractivité et la valeur patrimoniale du secteur. BIEN NON SOUMIS AU DPE Pour tout renseignement : Féänor MAMEO [Coordonnées masquées]
Voir plus

Référence: TCO-A402
Appartement à COLOMIERS
Appartement à COLOMIERS
Appartement à COLOMIERS
Appartement à COLOMIERS
Appartement à COLOMIERS
Géorisques

Les informations sur les risques auxquels ce bien est exposé sont disponibles sur le site Géorisques : www.georisques.gouv.fr

Ce site est protégé par hCaptcha Politique de confidentialité et Conditions d’utilisation s’appliquent.

En poursuivant votre navigation sans modifier vos paramètres, vous acceptez l'utilisation de cookies susceptibles de réaliser des statistiques de visite. Cliquez ici pour plus d'informations