Bénéficiez des services de nos partenaires locaux soigneusement sélectionnés
pour vous accompagner dans votre parcours d'achat immobilier

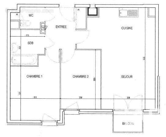
Appartement 56 m² à Vitry-Sur-Seine

— Vitry-Sur-Seine 94400 —
323 000 €
56 m²
3 pièces
parkingbalcon/terrasseascenseur

Nos partenaires locaux
Iad France - Eloïse Xia vous propose : Bâtiment récent de 2013. Situé à 3 minutes de la station Beethoven-Concorde (T9). Appartement de type F3. Un séjour avec la cuisine ouverte et un balcon. Grande baie vitrée. 2 chambres, 1 SDB, 1 WC. Appartement au 5e étage / 5, avec ascenseur, comprenant un parking. Chauffage collectif. Exposition plein sud.

La presente annonce immobiliere vise 2 lots situés dans une copropriété de 70 lots au total et ne faisant l'objet d'aucune procédure en cours citée à l'article L. 721-1 du code de la construction et de l'habitation. Montant moyen mensuel de charges déclaré par le vendeur : 247.33¤ par mois (soit 2968 ¤ annuel). Honoraires d'agence à la charge du vendeur.
Information d'affichage énergétique sur ce bien : classe ENERGIE C indice 2 et classe CLIMAT C indice 2. Les informations sur les risques auxquels ce bien est exposé, y compris l'obligation légale de débroussaillement, sont disponibles sur le site Géorisques : http://www.georisques.gouv.fr.
La présente annonce immobilière a été rédigée sous la responsabilité éditoriale de Mme Eloïse Xia mandataire indépendant en immobilier (sans détention de fonds), agent commercial de la SAS I@D France immatriculé au RSAC de CRETEIL sous le numéro 791792526, titulaire de la carte de démarchage immobilier pour le compte de la société I@D France SAS.Informations LOI ALUR : Soumis au régime de copropriété. Nombre de lots : 70. Quote part annuelle(moyenne) : 2968 euros. Honoraires charge vendeur. (gedeon_6727_33078465)
Voir plus

Référence: 1997487
Bien en copropriété. Nombre de lots : 70. Charges de copropriété : 2968 €.
Honoraires à la charge du vendeur.
Barème des honoraires
DPE
A
B
C
D
E
F
G
GES
A
B
C
D
E
F
G
Photo 1 - Appartement à VITRY-SUR-SEINE
Photo 1
Photo 2 - Appartement à VITRY-SUR-SEINE
Photo 2
Photo 3 - Appartement à VITRY-SUR-SEINE
Photo 3
Photo 4 - Appartement à VITRY-SUR-SEINE
Photo 4
Photo 5 - Appartement à VITRY-SUR-SEINE
Photo 5
Géorisques

Les informations sur les risques auxquels ce bien est exposé sont disponibles sur le site Géorisques : www.georisques.gouv.fr

Ce site est protégé par hCaptcha Politique de confidentialité et Conditions d’utilisation s’appliquent.