Bénéficiez des services de nos partenaires locaux soigneusement sélectionnés
pour vous accompagner dans votre parcours d'achat immobilier

Zoo de Lunaret / Vert Bois - Spacieux T2 double exposition avec terrasse et parking privatif !

— Montpellier 34090 —
159 000 €
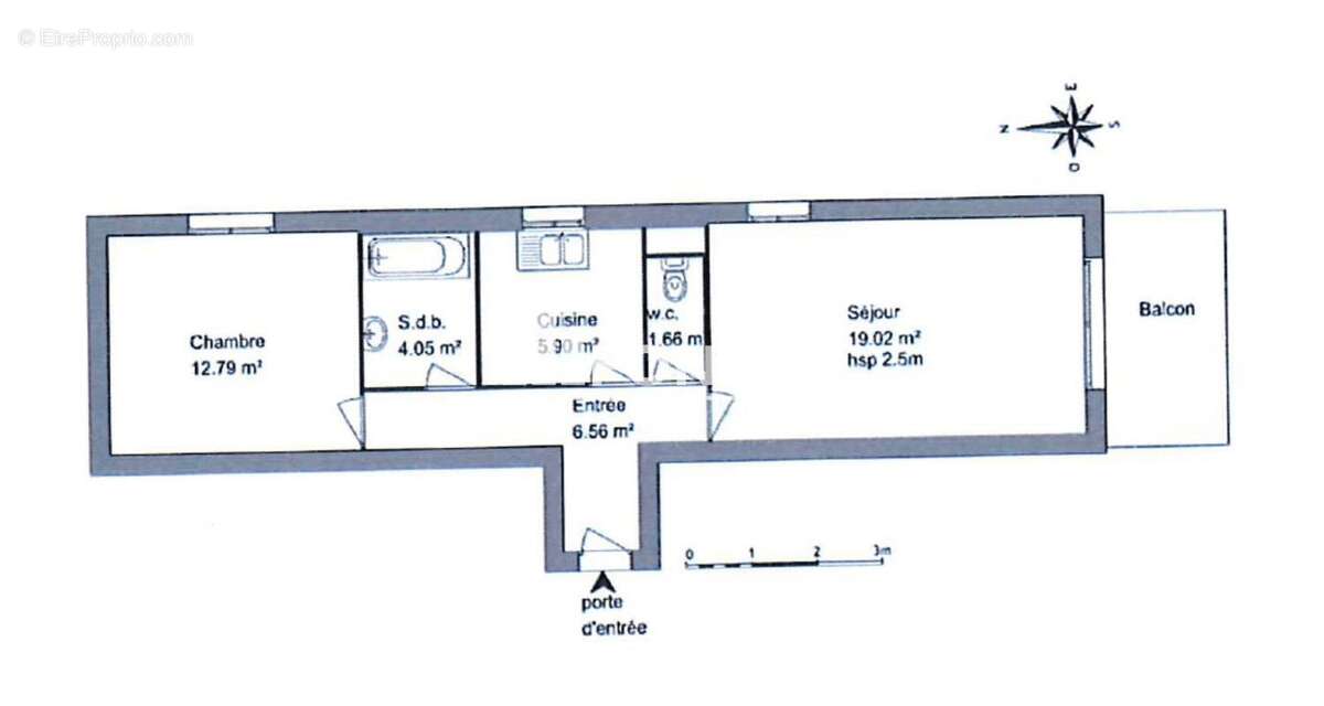
49 m²
2 pièces
balcon/terrasseascenseur

Nos partenaires locaux
Zoo de Lunaret / Vert Bois - FONCIA Transaction vous invite en exclusivité à recharger vos batteries avec ce spacieux et lumineux T2 au sein d'un environnement verdoyant et privilégié !

Envie de lumière, de verdure et d'un projet à votre image ?

Ce n'est pas sans fierté que nous lançons la vente de ce 2 pièces de 50 m², au sein de la résidence de standing "La Chênaie" (1980). Situé au 805 avenue du Val de Montferrand, cette résidence offre l'un cadre de vie les plus recherchés sur Montpellier pour sa verdure, où la ville s'efface au profit de la nature.

Les points forts qui vont vous faire craquer :

Un appartement qui suit la trajectoire du soleil grâce à sa double exposition Sud/Est !

Une lumineuse pièce de vie sans aucun vis-à-vis !

Une terrasse de 6m2 exposée plein Sud bénéficiant d'une vue imprenable sur le parc arboré de la copropriété. Un panorama verdoyant pour vos petits-déjeuners au soleil et votre droit à la déconnexion en rentrant de votre dure journée de labeur !

Luminosité matinale : La chambre, la cuisine et la salle d'eau sont orientées à l'Est : c'est accompagné de la douce lumière naturelle de l'aube que vous pourrez vous réveiller chaque matin.

Budget maîtrisé : C'est vous le patron ! Chauffage et production d'eau chaude individuels. Vous ne payez que ce que vous consommez (DPE classé D). Et toc !

Dans l'ère du multimodal : Si les solutions gratuites du bus (ligne 13) au pied de la résidence et l'arrêt "Pôle Chimie Balard" de la toute nouvelle ligne 5 de tramway (seulement 20min porte à porte de l'Arc de Triomphe/Place du Peyrou) s'avèrent trop loins pour vous les rares jours de pluie sous nos latitudes, l'appartement est aussi vendu avec une place de parking privative dans l'enceinte sécurisée de la résidence ;)

Un emplacement stratégique et bucolique. Une adresse idéale pour les amoureux de l'outdoor et les actifs. À deux pas du Zoo du Lunaret, du Bois de Montmaur et des berges du Lez pour vos footings ou balades en vélo et sorties digestives.

Emplacement stratégique et dynamique : Au coeur des grands centres de recherche scientifique, CNRS, Hôpitaux, Universités qui comptent sur Montpellier, etc....

L'appartement étant à rafraîchir, voici l'opportunité parfaite pour :

- vous, primo-accédants, de créer un intérieur qui vous ressemble. La base est là. Niveau cosmétique, on vous l'a déjà dit plus haut : c'est vous le patron !

- mais aussi pour vous investisseurs : Un secteur à forte demande locative (chercheurs, cadres, étudiants), l'assurance d'un placement serein et pérenne, garantissant une rentabilité stable sur le long terme. Loyer maximal encadré en meublé : 898€ HC. Confortable n'est-ce pas ;)

En somme, LE produit que vous recherchiez !
Voir plus

Référence: 00735954
Bien en copropriété. Nombre de lots : 97. Charges de copropriété : 132 €.
Honoraires à la charge du vendeur.
Barème des honoraires
DPE
A
B
C
D
E
F
G
GES
A
B
C
D
E
F
G
Appartement à MONTPELLIER
Appartement à MONTPELLIER
Appartement à MONTPELLIER
Appartement à MONTPELLIER
Appartement à MONTPELLIER
Appartement à MONTPELLIER
Appartement à MONTPELLIER
Appartement à MONTPELLIER
Appartement à MONTPELLIER
Géorisques

Les informations sur les risques auxquels ce bien est exposé sont disponibles sur le site Géorisques : www.georisques.gouv.fr

Ce site est protégé par hCaptcha Politique de confidentialité et Conditions d’utilisation s’appliquent.