Bénéficiez des services de nos partenaires locaux soigneusement sélectionnés
pour vous accompagner dans votre parcours d'achat immobilier

Montmartre / plan optimal / calme et lumineux

— Paris-18e 75018 —
618 000 €
51 m²
2 pièces

Nos partenaires locaux
Situé rue Berthe, au cœur du quartier emblématique de Montmartre, à seulement 5 minutes du métro Abbesses (ligne 12), dans un environnement vivant et recherché, à proximité immédiate des commerces, restaurants et lieux typiques de la Butte.
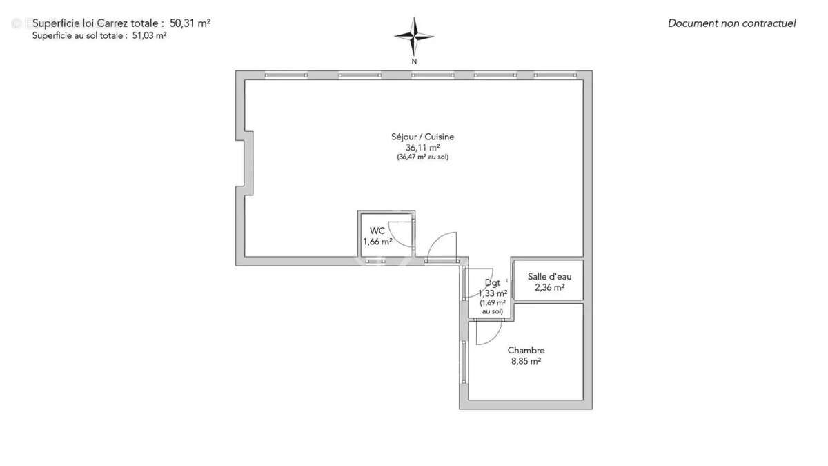
Le Cabinet BR Immobilier vous propose ce CHARMANT 2 pièces TRAVERSANT, situé au 2ème étage d’un immeuble ancien typique du quartier.
Il se compose d’un grand séjour dégagé avec cuisine américaine ÉQUIPÉE, bénéficiant d’une BELLE LUMINOSITÉ grâce à son exposition SUD et à ses nombreuses fenêtres, offrant un espace de vie convivial et spacieux, avec possibilité d’aménager une 2ÈME CHAMBRE dans la continuité du séjour.
Une chambre confortable exposée EST avec rangements intégrés, une salle d’eau, un WC séparé, ainsi qu’un dégagement complètent ce bien.
L’appartement bénéficie d’un PLAN OPTIMAL, d’un agréable volume de réception, avec parquet dans les pièces de vie. DEUX CAVES complètent ce bien.
CALME ET LUMINEUX.
Voir plus

Référence: 3952
Bien en copropriété. Nombre de lots : 23.
Honoraires à la charge du vendeur.
Barème des honoraires
DPE
A
B
C
D
E
F
G
GES
A
B
C
D
E
F
G
Appartement à PARIS-18E
Appartement à PARIS-18E
Appartement à PARIS-18E
Appartement à PARIS-18E
Appartement à PARIS-18E
Appartement à PARIS-18E
Appartement à PARIS-18E
Appartement à PARIS-18E
Appartement à PARIS-18E
Appartement à PARIS-18E
Appartement à PARIS-18E
Appartement à PARIS-18E
Appartement à PARIS-18E
Géorisques

Les informations sur les risques auxquels ce bien est exposé sont disponibles sur le site Géorisques : www.georisques.gouv.fr

Ce site est protégé par hCaptcha Politique de confidentialité et Conditions d’utilisation s’appliquent.

En poursuivant votre navigation sans modifier vos paramètres, vous acceptez l'utilisation de cookies susceptibles de réaliser des statistiques de visite. Cliquez ici pour plus d'informations