Bénéficiez des services de nos partenaires locaux soigneusement sélectionnés
pour vous accompagner dans votre parcours d'achat immobilier

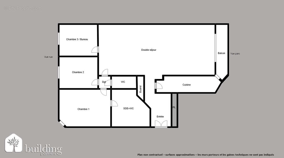
Courbevoie Hôtel de Ville - Appartement 4 pièces de 81.09 m² et un balcon de 5.17 m²

— Courbevoie 92400 —
620 000 €
81 m² / 6 m²
4 pièces
balcon/terrassejardinascenseur

Nos partenaires locaux
Situé dans le quartier très recherché de l'Hôtel de Ville à Courbevoie, à proximité immédiate du parc de Lattre de Tassigny, Building Partners vous propose à la vente cet appartement 4 pièces de 81,09 m² avec balcon se trouvant au 8e étage avec ascenseur d'un immeuble semi-récent de bon standing, sécurisé avec gardien. Traversant, calme et baigné de lumière, ce bien en très bon état général bénéficie d'un agencement optimisé sans perte de place. Il se compose d'une entrée, d'un double séjour lumineux donnant accès à un balcon de 5,17 m², d'une cuisine indépendante aménagée et équipée, de trois chambres dont une suite parentale avec salle d'eau et WC, d'un WC séparé, ainsi que de nombreux rangements. Une cave en sous-sol complète ce bien. Un double emplacement de parking en enfilade dans l'immeuble est inclus. Son plan fonctionnel, sa luminosité, sa situation en étage élevé avec vue dégagée et son emplacement privilégié à proximité des écoles, des commerces, des transports (gare de Courbevoie, métro ligne 1 via La Défense) et des espaces verts, en font une opportunité rare sur le secteur. Ce bien séduira les familles, les actifs ou tout acquéreur à la recherche d'un cadre de vie paisible et central à Courbevoie. N'hésitez pas à nous contacter pour plus d'informations ou organiser une visite. Copropriété de 550 lots - dont 196 lots habitation. Charges annuelles : 3360 euros.
Voir plus

Référence: 17282
Bien en copropriété. Nombre de lots : 550. Charges de copropriété : 3360 €.
Honoraires à la charge du vendeur.
Barème des honoraires
DPE
A
B
C
D
E
F
G
GES
A
B
C
D
E
F
G
Appartement à COURBEVOIE
Appartement à COURBEVOIE
Appartement à COURBEVOIE
Appartement à COURBEVOIE
Appartement à COURBEVOIE
Appartement à COURBEVOIE
Appartement à COURBEVOIE
Appartement à COURBEVOIE
Appartement à COURBEVOIE
Appartement à COURBEVOIE
Appartement à COURBEVOIE
Appartement à COURBEVOIE
Appartement à COURBEVOIE
Appartement à COURBEVOIE
Géorisques

Les informations sur les risques auxquels ce bien est exposé sont disponibles sur le site Géorisques : www.georisques.gouv.fr

Ce site est protégé par hCaptcha Politique de confidentialité et Conditions d’utilisation s’appliquent.

En poursuivant votre navigation sans modifier vos paramètres, vous acceptez l'utilisation de cookies susceptibles de réaliser des statistiques de visite. Cliquez ici pour plus d'informations