Bénéficiez des services de nos partenaires locaux soigneusement sélectionnés
pour vous accompagner dans votre parcours d'achat immobilier

Exclusivite : a vendre brest kerbonne lot de 3 appartements t2 total 149m2

— Brest 29200 —
325 000 €
149 m²
6 pièces

Nos partenaires locaux
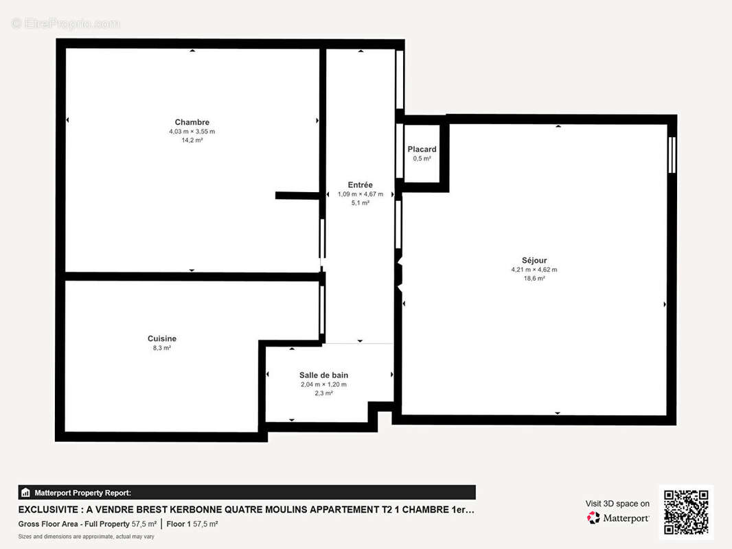
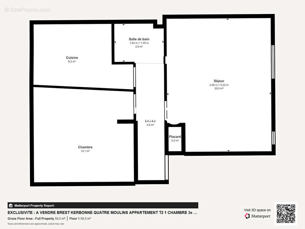
A VENDRE BREST KERBONNE QUATRE MOULINS Référence : TSI00516-DS Découvrez ce lot de 3 appartement T2 situés à Brest plus précisément rive droite dans le quartier de Kerbonne et des Quatre Moulins au sein d'un même immeuble. Les 3 appartements sont disposés comme ceci : Une entrée avec un placard de rangement, un salon séjour exposé SUD, une cuisine indépendante, une chambre avec placard de rangement, une salle de bains ou une salle d'eau avec WC. L'appartement du 1er étage fait : 48.00m2 L'appartement du 2e étage fait : 51.35m2 L'appartement du 3e étage fait : 49.95m2 Le chauffage de chaque appartement est assuré par des radiateurs électriques, avec un ballon d'eau chaude. Les fenêtres en PVC double vitrage et les volets roulants garantissent confort et isolation. Ce lot est idéal pour une personne qui recherche un investissement locatif localisé et pratique. L'emplacement est central, à seulement 3 minutes du tramway (arrêts Polygone et Vali Hir), 1 minute du bus, et à proximité immédiate des commerces (0,10 km). Les établissements scolaires tels que L'échappée belle, École maternelle Quatre Moulins, École primaire publique Quatre Moulins, Gymnase des Quatre Moulins et Collège Les Quatre Moulins sont accessibles en quelques minutes. La piscine est également à seulement 1 km. Pour plus d'informations ou pour organiser une visite, contactez Barraine IMMO Brest Siam. (5.86 % honoraires TTC à la charge de l'acquéreur.) Copropriété de 8 lots - dont 8 lots habitation. Charges annuelles : 720 euros.
Voir plus

Bien en copropriété. Nombre de lots : 8. Charges de copropriété : 720 €.
Honoraires d'agence de 5.86% à la charge de l'acquéreur
Barème des honoraires
DPE
A
B
C
D
E
F
G
GES
A
B
C
D
E
F
G
Appartement à BREST
Appartement à BREST
Appartement à BREST
Appartement à BREST
Appartement à BREST
Appartement à BREST
Appartement à BREST
Appartement à BREST
Appartement à BREST
Appartement à BREST
Appartement à BREST
Appartement à BREST
Appartement à BREST
Appartement à BREST
Appartement à BREST
Géorisques

Les informations sur les risques auxquels ce bien est exposé sont disponibles sur le site Géorisques : www.georisques.gouv.fr

Ce site est protégé par hCaptcha Politique de confidentialité et Conditions d’utilisation s’appliquent.

En poursuivant votre navigation sans modifier vos paramètres, vous acceptez l'utilisation de cookies susceptibles de réaliser des statistiques de visite. Cliquez ici pour plus d'informations