Bénéficiez des services de nos partenaires locaux soigneusement sélectionnés
pour vous accompagner dans votre parcours d'achat immobilier

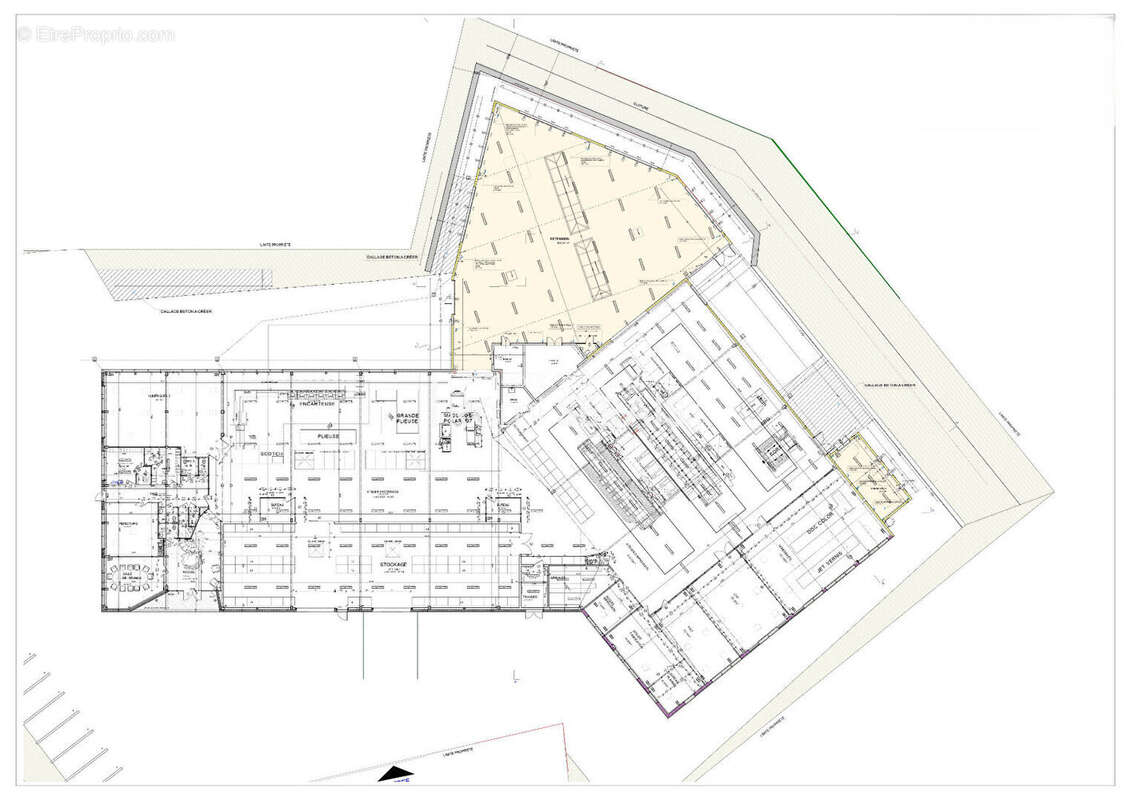
Local Industriel 3000 m2 env. Berd'Huis

— Nogent-Le-Rotrou 28400 —
1 626 000 €
3 000 m² / 7 500 m²
14 pièces
jardin

Nos partenaires locaux
Réf 13698 A Vendre un bâtiment à usage industriel de 3 000 m² environ situé sur la commune de Berd'Huis comprenant : -Au rez-de-chaussée : un hall d'accueil, une salle de réunion, un réfectoire, un vestiaire homme, un vestiaire femme, quatre sanitaires, une circulation pour l'accès du personnel, un atelier. -A l'étage : six bureaux, salle de réunion, un local archive et comptabilité, un local archive, deux sanitaires. Le tout sur un terrain de 7 500 m² environ. Année de construction : 2013.
Voir plus

Référence: 5453
Honoraires à la charge du vendeur.
Barème des honoraires
Commerce à NOGENT-LE-ROTROU
Commerce à NOGENT-LE-ROTROU
Commerce à NOGENT-LE-ROTROU
Commerce à NOGENT-LE-ROTROU
Commerce à NOGENT-LE-ROTROU
Commerce à NOGENT-LE-ROTROU
Commerce à NOGENT-LE-ROTROU
Géorisques

Les informations sur les risques auxquels ce bien est exposé sont disponibles sur le site Géorisques : www.georisques.gouv.fr

Ce site est protégé par hCaptcha Politique de confidentialité et Conditions d’utilisation s’appliquent.