Bénéficiez des services de nos partenaires locaux soigneusement sélectionnés
pour vous accompagner dans votre parcours d'achat immobilier

Secteur recherché - Maison à rénover à Marly Le Roi 8 pièces 180 m2 - 6 chambres, jardin, sous-sol total

— Marly-Le-Roi 78160 —
790 000 €
180 m²
8 pièces
parkingbalcon/terrasse

Nos partenaires locaux
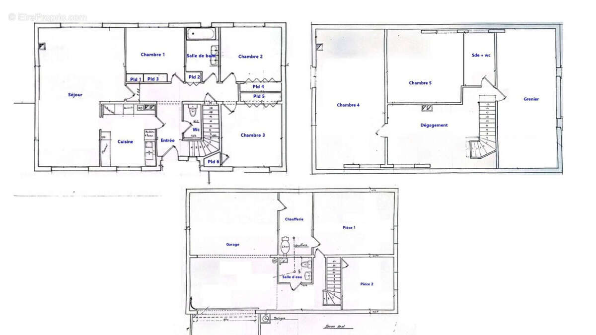
Votre agence Stéphane Plaza Immobilier de Marly-le-Roi vous propose en exclusivité cette maison individuelle de 180 m², située dans un quartier calme et recherché. A l'abri des regards et des nuisances, elle offre un cadre de vie paisible, idéal pour une famille, sur un beau terrain arboré propice aux moments de détente et aux jeux des enfants. Lumineuse toute la journée grâce à sa bonne exposition, elle dispose d'un jardin et d'une terrasse ensoleillée, parfaits pour profiter des beaux jours en toute intimité. A l'intérieur, la maison offre de beaux volumes adaptés à la vie de famille. Le double séjour traversant, lumineux et chaleureux, est parfait pour se retrouver au quotidien. La cuisine indépendante peut facilement être ouverte afin de créer une grande pièce de vie moderne et conviviale. Le rez-de-chaussée propose une configuration particulièrement adaptée à la vie familiale avec : - une suite parentale - une chambre supplémentaire (idéale pour un enfant ou des invités) - un espace bureau pour le télétravail - et des toilettes séparées A l'étage, chacun trouve facilement son espace : - un vaste palier pouvant accueillir un coin travail ou détente - une grande pièce dédiée aux loisirs (salle de jeux, cinéma, espace ado?) - possibilité de trois chambres confortables - et une salle de bain avec WC Un sous-sol total entièrement bétonné complète ce bien. Il permet de stationner jusqu'à trois véhicules et dispose de trois espaces distincts avec fenêtres pouvant être aménagés selon vos envies : zone de stockage, atelier de bricolage, salle de sport ou encore espace de loisirs. A seulement 12 minutes à pied de la gare de l'Étang-la-Ville, avec les écoles et les commerces facilement accessibles dans le quartier. Des travaux de rénovation sont à prévoir (électricité, chauffage, sols, cuisine, salles d'eau) offrant une belle opportunité de repenser entièrement la maison et de l'aménager selon vos envies, pour créer un lieu de vie familial unique et personnalisé. REF : FRANSISCO
Voir plus

Référence: 729
Honoraires à la charge du vendeur.
Barème des honoraires
DPE
A
B
C
D
E
F
G
GES
A
B
C
D
E
F
G
Maison à MARLY-LE-ROI
Maison à MARLY-LE-ROI
Maison à MARLY-LE-ROI
Maison à MARLY-LE-ROI
Maison à MARLY-LE-ROI
Maison à MARLY-LE-ROI
Maison à MARLY-LE-ROI
Maison à MARLY-LE-ROI
Maison à MARLY-LE-ROI
Maison à MARLY-LE-ROI
Maison à MARLY-LE-ROI
Maison à MARLY-LE-ROI
Maison à MARLY-LE-ROI
Maison à MARLY-LE-ROI
Maison à MARLY-LE-ROI
Maison à MARLY-LE-ROI
Géorisques

Les informations sur les risques auxquels ce bien est exposé sont disponibles sur le site Géorisques : www.georisques.gouv.fr

Ce site est protégé par hCaptcha Politique de confidentialité et Conditions d’utilisation s’appliquent.

En poursuivant votre navigation sans modifier vos paramètres, vous acceptez l'utilisation de cookies susceptibles de réaliser des statistiques de visite. Cliquez ici pour plus d'informations